Contemporary House Plans - 3 Bed, 2 Bath, 3391 Sq Ft | Plan 12-264 | Monster House Plans

New plans now available on

dreambook-head-logo See all available plans
SHARE ON

All plans are copyrighted by the individual designer.

Photographs may reflect custom changes that were not included in the original design.

3 Bedroom, 2 Bath Contemporary House Plan #12-264

Plan Purchase Options

Price: $0

Please uncheck first "Purchase MML without any plan package" under MONSTER MATERIAL LIST

Monster Material List
Optional Add-Ons
guaranted-label.png

Best Price Guarantee

*Payment Plans Now
Available Through

img See if you qualify

Floor Plans

What's included?
  • Main Floor

    Reverse

    Clicking the Reverse button does not mean you are ordering your plan reversed. It is for visualization purposes only. You may reverse the plan by ordering under “Optional Add-ons”.

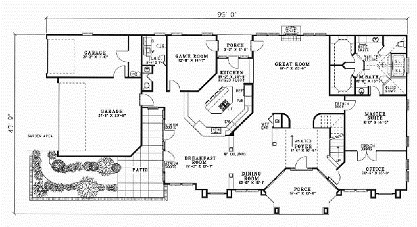
    Main Floor Plan: 12-264
  • Upper/Second Floor

    Reverse

    Clicking the Reverse button does not mean you are ordering your plan reversed. It is for visualization purposes only. You may reverse the plan by ordering under “Optional Add-ons”.

    Upper/Second Floor Plan: 12-264

Rear/Alternate Elevations

  • Rear Elevation

    Reverse

    Clicking the Reverse button does not mean you are ordering your plan reversed. It is for visualization purposes only. You may reverse the plan by ordering under “Optional Add-ons”.

    Rear Elevation Plan: 12-264

House Plan Highlights

Picture yourself living in this home. Walking into the foyer, you'll notice beautiful columns, French doors and a convenient wet bar located in the spacious dining room. Your game room will provide countless hours of entertainment with fluid access to the kitchen for refreshments. French doors access your master suite, complete with a huge master bath with "his and her" walk-in closets and an adjoining office. Traveling upstairs, you'll discover two more bedrooms and a future bonus area that can be used as a kids room.

This floor plan is found in our Contemporary house plans section

Full Specs and Features

icon Total Living Area

  • Main floor: 2634
  • Upper floor: 757
  • Basement: 2634
  • Porches: 305
  • Total Finished Sq. Ft.: 3391

icon Beds/Baths

  • Bedrooms: 3
  • Full Baths: 2
  • Half Baths: 1

icon Garage

  • Garage: 681
  • Garage Stalls: 3

icon Levels

  • 2 stories

Dimension

  • Width: 95' 0"
  • Depth: 47' 9"
  • Height: 26' 2"

Roof slope

  • 7:12 (primary)
  • 7:12 (secondary)

Walls (exterior)

  • 2"x4"

Ceiling heights

  • 10' (Main)
    8' (Upper)

Foundation Options

  • Basement $299
  • Daylight basement $399
  • Crawlspace Standard With Plan
  • Slab Standard With Plan

How Much Will It Cost To Build?

Wondering what it will actually cost to bring this home to life? Get an instant, customized estimate based on your chosen plan and location.

GET MY COST TO BUILD ESTIMATE

Modify This Plan

"Need Content here about modifying your plan"

Customize This Plan

House Plan Features

Suited for corner lots Suited for a back view
Main floor Master
Island Eating bar Nook / breakfast
Bonus room Great room Main Floor laundry No formal living/dining Den / office / computer Unfinished/future space
Covered front porch Covered rear porch
Oversized garage (3+) Side-entry garage

Reviews

How Much Will It Cost To Build?

Wondering what it will actually cost to bring this home to life? Get an instant, customized estimate based on your chosen plan and location.

GET MY COST TO BUILD ESTIMATE

Modify This Plan

Need changes to the layout or features? Our team can modify any plan to match your vision.

Customize This Plan

House Plan Features

Suited for corner lots Suited for a back view
Main floor Master
Island Eating bar Nook / breakfast
Bonus room Great room Main Floor laundry No formal living/dining Den / office / computer Unfinished/future space
Covered front porch Covered rear porch
Oversized garage (3+) Side-entry garage

Need Some Quick Tips Or Advice?

We want to help you design the house of your dreams as best as we can. If you can't find the answers you're looking for here, get in touch with our licensed architect or a designer!