Contemporary House Plans - 4 Bed, 6 Bath, 6888 Sq Ft | Plan 63-381 | Monster House Plans

New plans now available on

dreambook-head-logo See all available plans
SHARE ON

All plans are copyrighted by the individual designer.

Photographs may reflect custom changes that were not included in the original design.

4 Bedroom, 6 Bath Contemporary House Plan #63-381

Plan Purchase Options

Price: $0

Please uncheck first "Purchase MML without any plan package" under MONSTER MATERIAL LIST

Monster Material List
Optional Add-Ons
guaranted-label.png

Best Price Guarantee

*Payment Plans Now
Available Through

img See if you qualify

Floor Plans

What's included?
  • Main Floor

    Reverse

    Clicking the Reverse button does not mean you are ordering your plan reversed. It is for visualization purposes only. You may reverse the plan by ordering under “Optional Add-ons”.

    Main Floor Plan: 63-381
  • Upper/Second Floor

    Reverse

    Clicking the Reverse button does not mean you are ordering your plan reversed. It is for visualization purposes only. You may reverse the plan by ordering under “Optional Add-ons”.

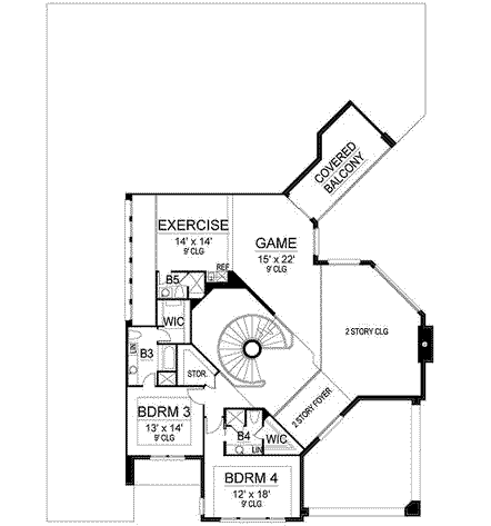
    Upper/Second Floor Plan: 63-381

Rear/Alternate Elevations

  • Rear Elevation

    Reverse

    Clicking the Reverse button does not mean you are ordering your plan reversed. It is for visualization purposes only. You may reverse the plan by ordering under “Optional Add-ons”.

    Rear Elevation Plan: 63-381

House Plan Highlights

This luxury colonial house plan comes in brick or a traditional stone with plenty of windows to let the light in, trey ceilings, and large decorative pillars making for a continuous feel, seamlessly integrating the dining room, music room, two-story grand foyer, family room, breakfast room, kitchen and butlery. The extraordinary spiral staircase is flanked by a two-story ceiling family room with warming fireplace and access to the covered veranda, an elegant dining room, the wine grotto, butlery, and the breakfast room. The elegant dining room, set off by the large decorative pillars, has close access to the butlery with sink and dishwasher for ease in serving and cleaning up after family and guests. The gourmet kitchen offers plenty of granite counter space, stainless steel appliances, and a freestanding island. An eating bar separates the kitchen from the breakfast room. This is an open sunlight-filled space and accommodates both casual gatherings and dining. A wall of floor-to-ceiling windows blurs the lines between indoors and out. Through the breakfast room you will access the outdoor cooking area through the covered veranda. There, enjoy the outdoor grilling area with a bar, refrigerator, ice maker, and a cooking grill. Off of the outdoor cooking area is a half bath. A luxurious master suite with trey ceiling boasts a two-way fireplace, shared with the master bath. The master bath offers his and hers vanities, linen closet, centered luxury tub, and separate glass shower. A large wardrobe off the master suite has plenty of built-ins and access to the utility room. A front family bedroom with full bath, trey ceiling, and walk-in closet could also be used as a guest room. At the front of the house, a large media room and music room with trey ceiling and gorgeous chandelier flank the private court. The spiral staircase leads you to two family bedrooms, each with trey ceilings, full baths, and walk-in closets. An exercise room with refrigerator and sink and a half bath share space with the game room and access to the covered balcony. Views to the first story family room and grand foyer below are dynamic.

This floor plan is found in our Contemporary house plans section

Full Specs and Features

icon Total Living Area

  • Main floor: 5208
  • Upper floor: 1680
  • Porches: 1022
  • Total Finished Sq. Ft.: 6888

icon Beds/Baths

  • Bedrooms: 4
  • Full Baths: 6
  • Half Baths: 1

icon Garage

  • Garage: 672
  • Garage Stalls: 3

icon Levels

  • 2 stories

Dimension

  • Width: 90' 0"
  • Depth: 109' 0"
  • Height: 39' 0"

Walls (exterior)

  • 2"x4"

Ceiling heights

  • 12' (Main)
    9' (Upper)

Foundation Options

  • Slab Standard With Plan

How Much Will It Cost To Build?

Wondering what it will actually cost to bring this home to life? Get an instant, customized estimate based on your chosen plan and location.

GET MY COST TO BUILD ESTIMATE

Modify This Plan

"Need Content here about modifying your plan"

Customize This Plan

House Plan Features

Suited for corner lots
Main floor Master Guest suite Teen suite/Jack & Jill bath
Island Butler's pantry Eating bar Nook / breakfast
Hobby / rec-room Gym / exercise room Media room Loft / balcony Open concept floor plan Library
Covered front porch Covered rear porch Porte Cochere Grilling porch/outdoor kitchen
Grand Entry Wine cellar Circular / dual staircases Vaulted/Volume/Dramatic ceilings Photos Available
Oversized garage (3+) Rear garage Rear-entry garage

Reviews

How Much Will It Cost To Build?

Wondering what it will actually cost to bring this home to life? Get an instant, customized estimate based on your chosen plan and location.

GET MY COST TO BUILD ESTIMATE

Modify This Plan

Need changes to the layout or features? Our team can modify any plan to match your vision.

Customize This Plan

House Plan Features

Suited for corner lots
Main floor Master Guest suite Teen suite/Jack & Jill bath
Island Butler's pantry Eating bar Nook / breakfast
Hobby / rec-room Gym / exercise room Media room Loft / balcony Open concept floor plan Library
Covered front porch Covered rear porch Porte Cochere Grilling porch/outdoor kitchen
Grand Entry Wine cellar Circular / dual staircases Vaulted/Volume/Dramatic ceilings Photos Available
Oversized garage (3+) Rear garage Rear-entry garage

Need Some Quick Tips Or Advice?

We want to help you design the house of your dreams as best as we can. If you can't find the answers you're looking for here, get in touch with our licensed architect or a designer!