Contemporary House Plans - 0 Bed, 1 Bath, 840 Sq Ft | Plan 26-115 | Monster House Plans

New plans now available on

dreambook-head-logo See all available plans
SHARE ON

All plans are copyrighted by the individual designer.

Photographs may reflect custom changes that were not included in the original design.

Design Comments

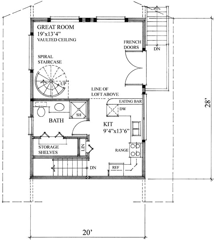
The versatile two story great room features a window wall enhancing all the available rear views. A spiral staircase helps maximize the living space and adds a charming detail to the living area

0 Bedroom, 1 Bath Contemporary House Plan #26-115

Plan Purchase Options

Price: $0

Please uncheck first "Purchase MML without any plan package" under MONSTER MATERIAL LIST

Monster Material List
Optional Add-Ons
guaranted-label.png

Best Price Guarantee

*Payment Plans Now
Available Through

img See if you qualify

Floor Plans

What's included?
  • Main Floor

    Reverse

    Clicking the Reverse button does not mean you are ordering your plan reversed. It is for visualization purposes only. You may reverse the plan by ordering under “Optional Add-ons”.

    Main Floor Plan: 26-115
  • Upper/Second Floor

    Reverse

    Clicking the Reverse button does not mean you are ordering your plan reversed. It is for visualization purposes only. You may reverse the plan by ordering under “Optional Add-ons”.

    Upper/Second Floor Plan: 26-115

Rear/Alternate Elevations

  • Rear Elevation

    Reverse

    Clicking the Reverse button does not mean you are ordering your plan reversed. It is for visualization purposes only. You may reverse the plan by ordering under “Optional Add-ons”.

    Rear Elevation Plan: 26-115

House Plan Highlights

Full Specs and Features

icon Total Living Area

  • Main floor: 560
  • Upper floor: 280
  • Porches: 32
  • Total Finished Sq. Ft.: 840

icon Beds/Baths

  • Full Baths: 1

icon Garage

  • Garage: 560
  • Garage Stalls: 1

icon Levels

  • 2 stories

Dimension

  • Width: 20' 0"
  • Depth: 28' 0"
  • Height: 30' 0"

Roof slope

  • 12:12 (primary)

Walls (exterior)

  • 2"x6"

Foundation Options

  • Basement Standard With Plan
  • Daylight basement Standard With Plan

How Much Will It Cost To Build?

Wondering what it will actually cost to bring this home to life? Get an instant, customized estimate based on your chosen plan and location.

GET MY COST TO BUILD ESTIMATE

Modify This Plan

"Need Content here about modifying your plan"

Customize This Plan

House Plan Features

Suited for corner lots Suited for a narrow lot Suited For A Vacation Home
Eating bar
Great room Loft / balcony Open concept floor plan No formal living/dining
Vaulted/Volume/Dramatic ceilings
Side-entry garage Garage under

Reviews

How Much Will It Cost To Build?

Wondering what it will actually cost to bring this home to life? Get an instant, customized estimate based on your chosen plan and location.

GET MY COST TO BUILD ESTIMATE

Modify This Plan

Need changes to the layout or features? Our team can modify any plan to match your vision.

Customize This Plan

House Plan Features

Suited for corner lots Suited for a narrow lot Suited For A Vacation Home
Eating bar
Great room Loft / balcony Open concept floor plan No formal living/dining
Vaulted/Volume/Dramatic ceilings
Side-entry garage Garage under

Need Some Quick Tips Or Advice?

We want to help you design the house of your dreams as best as we can. If you can't find the answers you're looking for here, get in touch with our licensed architect or a designer!