Cottage House Plans - 4 Bed, 2 Bath, 1680 Sq Ft | Plan 35-200 | Monster House Plans

New plans now available on

dreambook-head-logo See all available plans
  • MEMORIAL DAY SALE! - 15% OFF Most Plans

    Some exceptions apply. Prices as marked.

SHARE ON

All plans are copyrighted by the individual designer.

Photographs may reflect custom changes that were not included in the original design.

4 Bedroom, 2 Bath Cottage House Plan #35-200

Plan Purchase Options

Price: $0

Please uncheck first "Purchase MML without any plan package" under MONSTER MATERIAL LIST

Monster Material List
Optional Add-Ons
guaranted-label.png

Best Price Guarantee

*Payment Plans Now
Available Through

img See if you qualify

Floor Plans

What's included?
  • Main Floor

    Reverse

    Clicking the Reverse button does not mean you are ordering your plan reversed. It is for visualization purposes only. You may reverse the plan by ordering under “Optional Add-ons”.

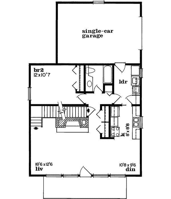
    Main Floor Plan: 35-200
  • Upper/Second Floor

    Reverse

    Clicking the Reverse button does not mean you are ordering your plan reversed. It is for visualization purposes only. You may reverse the plan by ordering under “Optional Add-ons”.

    Upper/Second Floor Plan: 35-200

House Plan Highlights

Invites Relaxation:The master bedroom of this leisure home invites relaxation around the fireplace or on the private balcony. The second fireplace warms the living room and dining room. A galley kitchen adjacent to the dining room features a window sink, and the laundry room, which provides access to the garage, is just across the hall. There\'s one family bedroom on the first floor, next to a full bath. The second floor contains two more family bedrooms, the master bedroom and a full bath.
The master bedroom of this leisure home invites relaxation around the fireplace or on the private balcony. The second fireplace warms the living room and dining room.

This floor plan is found in our Cottage house plans section

Full Specs and Features

icon Total Living Area

  • Main floor: 900
  • Upper floor: 780
  • Total Finished Sq. Ft.: 1680

icon Beds/Baths

  • Bedrooms: 4
  • Full Baths: 2

icon Garage

  • Garage: 378
  • Garage Stalls: 1

icon Levels

  • 2 stories

Dimension

  • Width: 30' 0"
  • Depth: 46' 5"
  • Height: 22' 0"

Roof slope

  • 7:12 (primary)
  • 3:12 (secondary)

Walls (exterior)

  • 2"x4"

Ceiling heights

  • 8' (Main)

Foundation Options

  • Basement Standard With Plan
  • Walk-out basement $425
  • Crawlspace $295
  • Slab $295

How Much Will It Cost To Build?

Wondering what it will actually cost to bring this home to life? Get an instant, customized estimate based on your chosen plan and location.

GET MY COST TO BUILD ESTIMATE

Modify This Plan

"Need Content here about modifying your plan"

Customize This Plan

House Plan Features

Suited for corner lots Suited for a narrow lot Suited For A Vacation Home
Upstairs Master
Great room Main Floor laundry Loft / balcony Open concept floor plan No formal living/dining
Side-entry garage

Reviews

How Much Will It Cost To Build?

Wondering what it will actually cost to bring this home to life? Get an instant, customized estimate based on your chosen plan and location.

GET MY COST TO BUILD ESTIMATE

Modify This Plan

Need changes to the layout or features? Our team can modify any plan to match your vision.

Customize This Plan

House Plan Features

Suited for corner lots Suited for a narrow lot Suited For A Vacation Home
Upstairs Master
Great room Main Floor laundry Loft / balcony Open concept floor plan No formal living/dining
Side-entry garage

Need Some Quick Tips Or Advice?

We want to help you design the house of your dreams as best as we can. If you can't find the answers you're looking for here, get in touch with our licensed architect or a designer!