Country House Plans - 4 Bed, 2 Bath, 1458 Sq Ft | Plan 12-551 | Monster House Plans

New plans now available on

dreambook-head-logo See all available plans
SHARE ON

All plans are copyrighted by the individual designer.

Photographs may reflect custom changes that were not included in the original design.

4 Bedroom, 2 Bath Country House Plan #12-551

Plan Purchase Options

Price: $0

Please uncheck first "Purchase MML without any plan package" under MONSTER MATERIAL LIST

Monster Material List
Optional Add-Ons
guaranted-label.png

Best Price Guarantee

*Payment Plans Now
Available Through

img See if you qualify

Floor Plans

What's included?
  • Main Floor

    Reverse

    Clicking the Reverse button does not mean you are ordering your plan reversed. It is for visualization purposes only. You may reverse the plan by ordering under “Optional Add-ons”.

    Main Floor Plan: 12-551
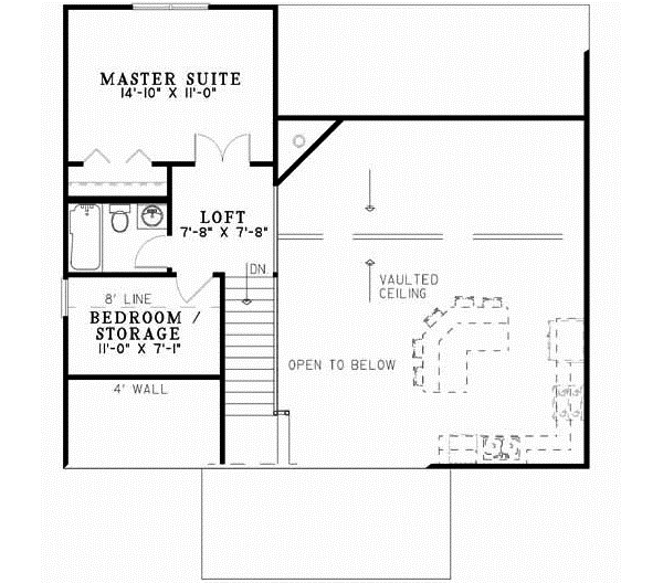
  • Upper/Second Floor

    Reverse

    Clicking the Reverse button does not mean you are ordering your plan reversed. It is for visualization purposes only. You may reverse the plan by ordering under “Optional Add-ons”.

    Upper/Second Floor Plan: 12-551

House Plan Highlights

My great grandparents built this cabin back in the fifties and we still spend our summers and fall weekends there enjoying the lake and playing cards at night. My granddad told me about the time my great-grandfather caught a wild turkey and let it go inside the cabin. Good think it was blind in one eye - he finally caught it an hour later but couldn't find grandma awhile! And the old stone fireplace is actually made of the rock they found on their fishing trips. This family cabin we call Carol's Cabin is full of wonderful memories that we'll never forget.

This floor plan is found in our Country house plans section

Full Specs and Features

icon Total Living Area

  • Main floor: 1070
  • Upper floor: 388
  • Porches: 347
  • Total Finished Sq. Ft.: 1458

icon Beds/Baths

  • Bedrooms: 4
  • Full Baths: 2

icon Levels

  • 2 stories

Dimension

  • Width: 38' 0"
  • Depth: 41' 6"
  • Height: 22' 7"

Roof slope

  • 10:12 (primary)

Walls (exterior)

  • 2"x4"

Ceiling heights

  • 8' (Main)
    8' (Upper)

Foundation Options

  • Basement $299
  • Daylight basement $399
  • Crawlspace Standard With Plan
  • Slab Standard With Plan

How Much Will It Cost To Build?

Wondering what it will actually cost to bring this home to life? Get an instant, customized estimate based on your chosen plan and location.

GET MY COST TO BUILD ESTIMATE

Modify This Plan

"Need Content here about modifying your plan"

Customize This Plan

House Plan Features

Suited for a back view Suited for a narrow lot
Upstairs Master
Island Eating bar
Great room Main Floor laundry Loft / balcony Open concept floor plan No formal living/dining
Covered front porch Covered rear porch Grilling porch/outdoor kitchen
Vaulted/Volume/Dramatic ceilings Photos Available

Reviews

How Much Will It Cost To Build?

Wondering what it will actually cost to bring this home to life? Get an instant, customized estimate based on your chosen plan and location.

GET MY COST TO BUILD ESTIMATE

Modify This Plan

Need changes to the layout or features? Our team can modify any plan to match your vision.

Customize This Plan

House Plan Features

Suited for a back view Suited for a narrow lot
Upstairs Master
Island Eating bar
Great room Main Floor laundry Loft / balcony Open concept floor plan No formal living/dining
Covered front porch Covered rear porch Grilling porch/outdoor kitchen
Vaulted/Volume/Dramatic ceilings Photos Available

Need Some Quick Tips Or Advice?

We want to help you design the house of your dreams as best as we can. If you can't find the answers you're looking for here, get in touch with our licensed architect or a designer!