Country House Plans - 4 Bed, 2 Bath, 1599 Sq Ft | Plan 77-282 | Monster House Plans

New plans now available on

dreambook-head-logo See all available plans
SHARE ON

All plans are copyrighted by the individual designer.

Photographs may reflect custom changes that were not included in the original design.

4 Bedroom, 2 Bath Country House Plan #77-282

Plan Purchase Options

Price: $0

Please uncheck first "Purchase MML without any plan package" under MONSTER MATERIAL LIST

Monster Material List
Optional Add-Ons
guaranted-label.png

Best Price Guarantee

*Payment Plans Now
Available Through

img See if you qualify

Floor Plans

What's included?
  • Main Floor

    Reverse

    Clicking the Reverse button does not mean you are ordering your plan reversed. It is for visualization purposes only. You may reverse the plan by ordering under “Optional Add-ons”.

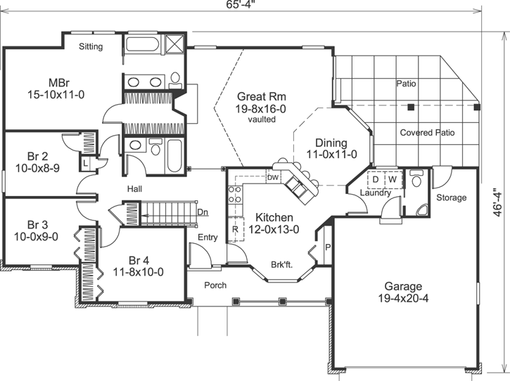
    Main Floor Plan: 77-282

Rear/Alternate Elevations

  • Rear Elevation

    Reverse

    Clicking the Reverse button does not mean you are ordering your plan reversed. It is for visualization purposes only. You may reverse the plan by ordering under “Optional Add-ons”.

    Rear Elevation Plan: 77-282

House Plan Highlights

Inviting Ranch1599 total square feet of living areaSpecial featuresThe vaulted great room boasts a fireplace and an octagon-shaped dining area with handsome views to the covered patioA built-in pantry snack counter that opens to the dining area and a breakfast area in a bay window are amenities of the lovely kitchenThe exquisite master bedroom includes a luxury bath sitting area and spacious walk-in closet A convenient half bath and the garage storage area are accessible through the laundry room4 bedrooms 2 12 baths 2-car garageBasement foundation

This floor plan is found in our Country house plans section

Full Specs and Features

icon Total Living Area

  • Main floor: 1599
  • Basement: 1565
  • Porches: 226
  • Total Finished Sq. Ft.: 1599

icon Beds/Baths

  • Bedrooms: 4
  • Full Baths: 2
  • Half Baths: 1

icon Garage

  • Garage: 433
  • Garage Stalls: 2

icon Levels

  • 1 story

Dimension

  • Width: 65' 4"
  • Depth: 46' 4"
  • Height: 23' 0"

Roof slope

  • 10:12 (primary)
  • 5:12 (secondary)

Walls (exterior)

  • 2"x4"

Ceiling heights

  • 8' (Main)

Foundation Options

  • Basement Standard With Plan

How Much Will It Cost To Build?

Wondering what it will actually cost to bring this home to life? Get an instant, customized estimate based on your chosen plan and location.

GET MY COST TO BUILD ESTIMATE

Modify This Plan

"Need Content here about modifying your plan"

Customize This Plan

House Plan Features

Suited for a back view
Master sitting area/Nursery
Eating bar Nook / breakfast
Great room Open concept floor plan No formal living/dining
Covered front porch Covered rear porch
Vaulted/Volume/Dramatic ceilings

Reviews

How Much Will It Cost To Build?

Wondering what it will actually cost to bring this home to life? Get an instant, customized estimate based on your chosen plan and location.

GET MY COST TO BUILD ESTIMATE

Modify This Plan

Need changes to the layout or features? Our team can modify any plan to match your vision.

Customize This Plan

House Plan Features

Suited for a back view
Master sitting area/Nursery
Eating bar Nook / breakfast
Great room Open concept floor plan No formal living/dining
Covered front porch Covered rear porch
Vaulted/Volume/Dramatic ceilings

Need Some Quick Tips Or Advice?

We want to help you design the house of your dreams as best as we can. If you can't find the answers you're looking for here, get in touch with our licensed architect or a designer!