Country House Plans - 3 Bed, 2 Bath, 1671 Sq Ft | Plan 7-156 | Monster House Plans

New plans now available on

dreambook-head-logo See all available plans
SHARE ON

All plans are copyrighted by the individual designer.

Photographs may reflect custom changes that were not included in the original design.

3 Bedroom, 2 Bath Country House Plan #7-156

Plan Purchase Options

Price: $0

Please uncheck first "Purchase MML without any plan package" under MONSTER MATERIAL LIST

Monster Material List
Optional Add-Ons
guaranted-label.png

Best Price Guarantee

*Payment Plans Now
Available Through

img See if you qualify

Floor Plans

What's included?
  • Main Floor

    Reverse

    Clicking the Reverse button does not mean you are ordering your plan reversed. It is for visualization purposes only. You may reverse the plan by ordering under “Optional Add-ons”.

    Main Floor Plan: 7-156
  • Upper/Second Floor

    Reverse

    Clicking the Reverse button does not mean you are ordering your plan reversed. It is for visualization purposes only. You may reverse the plan by ordering under “Optional Add-ons”.

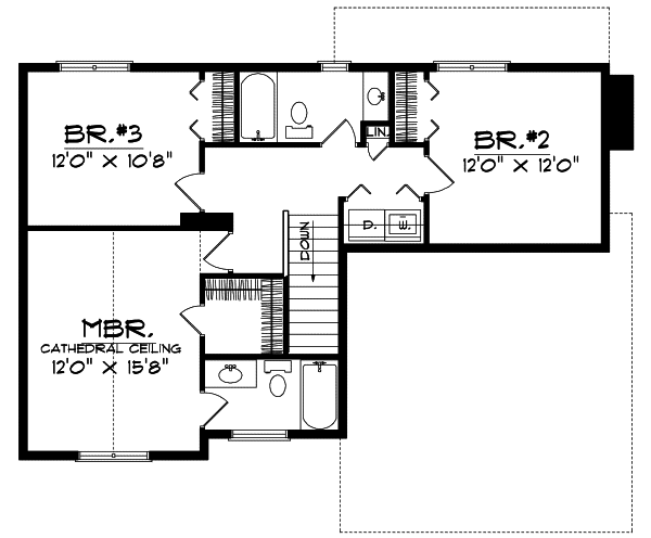
    Upper/Second Floor Plan: 7-156

Rear/Alternate Elevations

  • Rear Elevation

    Reverse

    Clicking the Reverse button does not mean you are ordering your plan reversed. It is for visualization purposes only. You may reverse the plan by ordering under “Optional Add-ons”.

    Rear Elevation Plan: 7-156

House Plan Highlights

The traditional faade of this two-story three-bedroom home combined with a practical floor plan fits the lifestyle of today's homebuyers. The main floor is the perfect place to relax with family or entertain friends. The main floor offers both a family room with a fireplace and a livingdining room perfect for entertaining. The kitchen with wrap-around counters and a large pantry also opens directly into a dining area perfect for family meals. The main floor also offers a two-stall garage and a half bath. A master bedroom with a cathedral ceiling private bath and large walk-in closet shares space upstairs with two family bedrooms an additional full bath and a convenient second-floor laundry closet.

This floor plan is found in our Country house plans section

Full Specs and Features

icon Total Living Area

  • Main floor: 864
  • Upper floor: 807
  • Total Finished Sq. Ft.: 1671

icon Beds/Baths

  • Bedrooms: 3
  • Full Baths: 2
  • Half Baths: 1

icon Garage

  • Garage: 454
  • Garage Stalls: 2

icon Levels

  • 2 stories

Dimension

  • Width: 42' 8"
  • Depth: 36' 8"
  • Height: 25' 1"

Roof slope

  • 8:12 (primary)

Walls (exterior)

  • 2"x6"

Ceiling heights

  • 8' (Main)
    8' (Upper)

Foundation Options

  • Basement Standard With Plan
  • Crawlspace $415
  • Slab $415

How Much Will It Cost To Build?

Wondering what it will actually cost to bring this home to life? Get an instant, customized estimate based on your chosen plan and location.

GET MY COST TO BUILD ESTIMATE

Modify This Plan

"Need Content here about modifying your plan"

Customize This Plan

House Plan Features

Suited for a down-sloping lot
Split bedrooms
Eating bar Nook / breakfast
Family room No formal living/dining Den / office / computer
Covered front porch
Vaulted/Volume/Dramatic ceilings

Reviews

How Much Will It Cost To Build?

Wondering what it will actually cost to bring this home to life? Get an instant, customized estimate based on your chosen plan and location.

GET MY COST TO BUILD ESTIMATE

Modify This Plan

Need changes to the layout or features? Our team can modify any plan to match your vision.

Customize This Plan

House Plan Features

Suited for a down-sloping lot
Split bedrooms
Eating bar Nook / breakfast
Family room No formal living/dining Den / office / computer
Covered front porch
Vaulted/Volume/Dramatic ceilings

Need Some Quick Tips Or Advice?

We want to help you design the house of your dreams as best as we can. If you can't find the answers you're looking for here, get in touch with our licensed architect or a designer!