Country House Plans - 3 Bed, 2 Bath, 1683 Sq Ft | Plan 35-164 | Monster House Plans

New plans now available on

dreambook-head-logo See all available plans
  • MEMORIAL DAY SALE! - 15% OFF Most Plans

    Some exceptions apply. Prices as marked.

SHARE ON

All plans are copyrighted by the individual designer.

Photographs may reflect custom changes that were not included in the original design.

3 Bedroom, 2 Bath Country House Plan #35-164

Plan Purchase Options

Price: $0

Please uncheck first "Purchase MML without any plan package" under MONSTER MATERIAL LIST

Monster Material List
Optional Add-Ons
guaranted-label.png

Best Price Guarantee

*Payment Plans Now
Available Through

img See if you qualify

Floor Plans

What's included?
  • Main Floor

    Reverse

    Clicking the Reverse button does not mean you are ordering your plan reversed. It is for visualization purposes only. You may reverse the plan by ordering under “Optional Add-ons”.

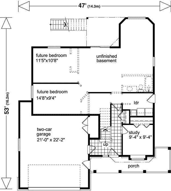
    Main Floor Plan: 35-164
  • Upper/Second Floor

    Reverse

    Clicking the Reverse button does not mean you are ordering your plan reversed. It is for visualization purposes only. You may reverse the plan by ordering under “Optional Add-ons”.

    Upper/Second Floor Plan: 35-164

House Plan Highlights

Columned front porch with railing introduces this three bedroom basement-entry home. Main foyer provides access to the double garage and a conveniently located study or in-home office. Vaulted living room features a multi-paned bay window and direct vent gas fireplace. Double french doors welcome you to a family room and spacious kitchen with angled island and bay windows. Master suite includes full three piece bath and walk-in closet. The 903 square foot unfinished first level is easily transformed into an in-law suite or extra bedrooms and recreation room. Finished foyer and study total 262 square feet.

This floor plan is found in our Country house plans section

Full Specs and Features

icon Total Living Area

  • Main floor: 263
  • Upper floor: 1420
  • Total Finished Sq. Ft.: 1683

icon Beds/Baths

  • Bedrooms: 3
  • Full Baths: 2

icon Garage

  • Garage: 530
  • Garage Stalls: 2

icon Levels

  • 2 stories

Dimension

  • Width: 47' 0"
  • Depth: 53' 0"
  • Height: 26' 9"

Roof slope

  • 6:12 (primary)

Walls (exterior)

  • 2"x6"

Ceiling heights

  • 8' (Main)
    8' (Upper)

Foundation Options

  • Basement $395
  • Walk-out basement $425
  • Crawlspace $295
  • Slab Standard With Plan

How Much Will It Cost To Build?

Wondering what it will actually cost to bring this home to life? Get an instant, customized estimate based on your chosen plan and location.

GET MY COST TO BUILD ESTIMATE

Modify This Plan

"Need Content here about modifying your plan"

Customize This Plan

House Plan Features

Suited for a back view Suited for a narrow lot
Upstairs Master
Island Eating bar Nook / breakfast
Family room Main Floor laundry Open concept floor plan No formal living/dining Den / office / computer Unfinished/future space
Covered front porch Sun-deck
Vaulted/Volume/Dramatic ceilings Inverted living

Reviews

How Much Will It Cost To Build?

Wondering what it will actually cost to bring this home to life? Get an instant, customized estimate based on your chosen plan and location.

GET MY COST TO BUILD ESTIMATE

Modify This Plan

Need changes to the layout or features? Our team can modify any plan to match your vision.

Customize This Plan

House Plan Features

Suited for a back view Suited for a narrow lot
Upstairs Master
Island Eating bar Nook / breakfast
Family room Main Floor laundry Open concept floor plan No formal living/dining Den / office / computer Unfinished/future space
Covered front porch Sun-deck
Vaulted/Volume/Dramatic ceilings Inverted living

Need Some Quick Tips Or Advice?

We want to help you design the house of your dreams as best as we can. If you can't find the answers you're looking for here, get in touch with our licensed architect or a designer!