Country House Plans - 3 Bed, 2 Bath, 1775 Sq Ft | Plan 30-412 | Monster House Plans

New plans now available on

dreambook-head-logo See all available plans
SHARE ON

All plans are copyrighted by the individual designer.

Photographs may reflect custom changes that were not included in the original design.

Design Comments

Super Energy Saving Southern Style
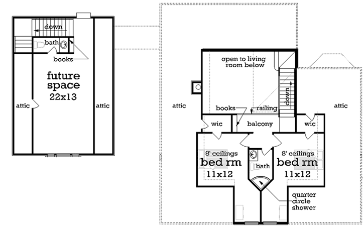
This 3 bedroom, 2.5 bath home is designed to cut the cost of heating and cooling in half. The construction documents contain dozens of energy saving features that cost very little extra but will save enormous amounts of energy over the life of the home. Some of the energy saving features includes 2x6 exterior walls, modified raised plate to allow 12” of ceiling insulation, insulated doors and windows, duct work located to insure no heat loss or gain and a host of other features. The living room has sloped ceilings to the upper level which allows the upper level balcony to have a view of the living room below. The upper level balcony has built in book shelves for the students in the family. There are also built in book shelves in the living room. The kitchen is fully appointed and has an island with a raised bar, book shelves and a trash compactor. The adjacent utility room has a laundry sink and a large pantry. The master suite bath has an appliance garage, glass shower, whirlpool tub, private toilet and dual sink vanity. The mbr closet, with dual clothes rods, has 32’ of hanging space. The dining room has a coffered ceiling and it is open to the kitchen and living room. The front and rear porches feature beamed ceilings with beaded board ceiling finish. The garage is a man’s delight with a built-in work bench, tons of storage and a large future room above which includes a half bath. With large front and rear porches, this is an excellent home to sit and relax and leave your cares behind.

3 Bedroom, 2 Bath Country House Plan #30-412

Plan Purchase Options

Price: $0

Please uncheck first "Purchase MML without any plan package" under MONSTER MATERIAL LIST

Optional Add-Ons
guaranted-label.png

Best Price Guarantee

*Payment Plans Now
Available Through

img See if you qualify

Floor Plans

What's included?
  • Main Floor

    Reverse

    Clicking the Reverse button does not mean you are ordering your plan reversed. It is for visualization purposes only. You may reverse the plan by ordering under “Optional Add-ons”.

    Main Floor Plan: 30-412
  • Upper/Second Floor

    Reverse

    Clicking the Reverse button does not mean you are ordering your plan reversed. It is for visualization purposes only. You may reverse the plan by ordering under “Optional Add-ons”.

    Upper/Second Floor Plan: 30-412

Rear/Alternate Elevations

  • Rear Elevation

    Reverse

    Clicking the Reverse button does not mean you are ordering your plan reversed. It is for visualization purposes only. You may reverse the plan by ordering under “Optional Add-ons”.

    Rear Elevation Plan: 30-412

House Plan Highlights

Allow up to 4 weeks for delivery of right reading reverse or alternate basement or slab foundation.

This floor plan is found in our Country house plans section

Full Specs and Features

icon Total Living Area

  • Main floor: 1253
  • Upper floor: 522
  • Bonus: 369
  • Porches: 684
  • Total Finished Sq. Ft.: 1775

icon Beds/Baths

  • Bedrooms: 3
  • Full Baths: 2

icon Garage

  • Garage: 660
  • Garage Stalls: 2

icon Levels

  • 2 stories

Dimension

  • Width: 76' 0"
  • Depth: 48' 0"
  • Height: 26' 0"

Roof slope

  • 10:12 (primary)

Walls (exterior)

  • 2"x6"

Ceiling heights

  • 10' (Main)
    8' (Upper)

Exterior Finish

  • Combination

Roof Framing

  • Stick Frame

Foundation Options

  • Basement $175
  • Crawlspace Standard With Plan
  • Slab $175

How Much Will It Cost To Build?

Wondering what it will actually cost to bring this home to life? Get an instant, customized estimate based on your chosen plan and location.

GET MY COST TO BUILD ESTIMATE

Modify This Plan

"Need Content here about modifying your plan"

Customize This Plan

House Plan Features

Suited for corner lots
Main floor Master
Island Butler's pantry Eating bar
Bonus room Main Floor laundry Loft / balcony Open concept floor plan Mud room No formal living/dining Unfinished/future space
Covered front porch Covered rear porch Screened porch/sunroom Breezeway
Vaulted/Volume/Dramatic ceilings Photos Available
Workshop Detached garage Side-entry garage

Reviews

How Much Will It Cost To Build?

Wondering what it will actually cost to bring this home to life? Get an instant, customized estimate based on your chosen plan and location.

GET MY COST TO BUILD ESTIMATE

Modify This Plan

Need changes to the layout or features? Our team can modify any plan to match your vision.

Customize This Plan

House Plan Features

Suited for corner lots
Main floor Master
Island Butler's pantry Eating bar
Bonus room Main Floor laundry Loft / balcony Open concept floor plan Mud room No formal living/dining Unfinished/future space
Covered front porch Covered rear porch Screened porch/sunroom Breezeway
Vaulted/Volume/Dramatic ceilings Photos Available
Workshop Detached garage Side-entry garage

Need Some Quick Tips Or Advice?

We want to help you design the house of your dreams as best as we can. If you can't find the answers you're looking for here, get in touch with our licensed architect or a designer!