Country House Plans - 4 Bed, 3 Bath, 1914 Sq Ft | Plan 77-245 | Monster House Plans

New plans now available on

dreambook-head-logo See all available plans
SHARE ON

All plans are copyrighted by the individual designer.

Photographs may reflect custom changes that were not included in the original design.

4 Bedroom, 3 Bath Country House Plan #77-245

Plan Purchase Options

Price: $0

Please uncheck first "Purchase MML without any plan package" under MONSTER MATERIAL LIST

Monster Material List
Optional Add-Ons
guaranted-label.png

Best Price Guarantee

*Payment Plans Now
Available Through

img See if you qualify

Floor Plans

What's included?
  • Main Floor

    Reverse

    Clicking the Reverse button does not mean you are ordering your plan reversed. It is for visualization purposes only. You may reverse the plan by ordering under “Optional Add-ons”.

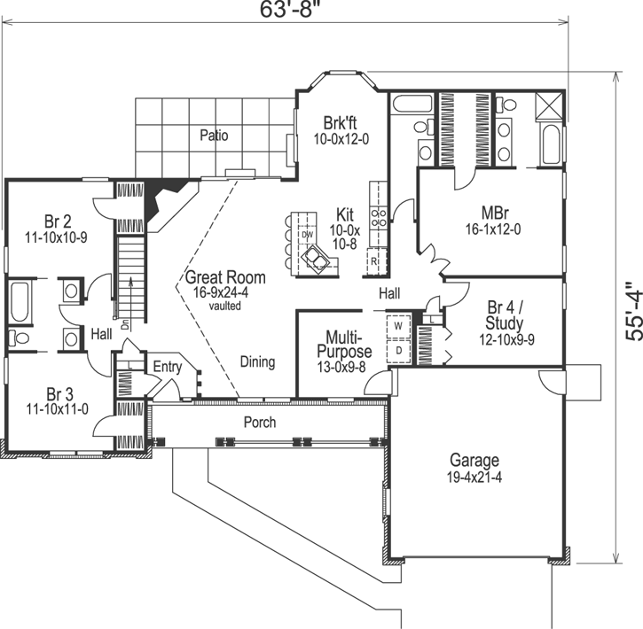
    Main Floor Plan: 77-245

Rear/Alternate Elevations

  • Rear Elevation

    Reverse

    Clicking the Reverse button does not mean you are ordering your plan reversed. It is for visualization purposes only. You may reverse the plan by ordering under “Optional Add-ons”.

    Rear Elevation Plan: 77-245

House Plan Highlights

A Design For Privacy And Flexibility1914 total square feet of living areaSpecial featuresThe vaulted great room features a dining area entry foyer a corner fireplace and 9' wide sliding doors to the rear patioThe multi-purpose room has a laundry alcove and can easily be used as a hobby room sewing room or small office The private secondary bedrooms include walk-in closets and share a Jack and Jill style bathThe bedroom #4study can be open to the master bedroom suite and used as a private home office or nursery4 bedrooms 3 baths 2-car garageBasement foundation

This floor plan is found in our Country house plans section

Full Specs and Features

icon Total Living Area

  • Main floor: 1914
  • Basement: 1902
  • Porches: 144
  • Total Finished Sq. Ft.: 1914

icon Beds/Baths

  • Bedrooms: 4
  • Full Baths: 3

icon Garage

  • Garage: 412
  • Garage Stalls: 2

icon Levels

  • 1 story

Dimension

  • Width: 63' 8"
  • Depth: 55' 4"
  • Height: 23' 4"

Roof slope

  • 10:12 (primary)
  • 8:12 (secondary)

Walls (exterior)

  • 2"x4"

Ceiling heights

  • 8' (Main)

Foundation Options

  • Basement Standard With Plan

How Much Will It Cost To Build?

Wondering what it will actually cost to bring this home to life? Get an instant, customized estimate based on your chosen plan and location.

GET MY COST TO BUILD ESTIMATE

Modify This Plan

"Need Content here about modifying your plan"

Customize This Plan

House Plan Features

Eating bar Nook / breakfast
Hobby / rec-room Great room Open concept floor plan No formal living/dining Den / office / computer
Covered front porch
Vaulted/Volume/Dramatic ceilings

Reviews

How Much Will It Cost To Build?

Wondering what it will actually cost to bring this home to life? Get an instant, customized estimate based on your chosen plan and location.

GET MY COST TO BUILD ESTIMATE

Modify This Plan

Need changes to the layout or features? Our team can modify any plan to match your vision.

Customize This Plan

House Plan Features

Eating bar Nook / breakfast
Hobby / rec-room Great room Open concept floor plan No formal living/dining Den / office / computer
Covered front porch
Vaulted/Volume/Dramatic ceilings

Need Some Quick Tips Or Advice?

We want to help you design the house of your dreams as best as we can. If you can't find the answers you're looking for here, get in touch with our licensed architect or a designer!