Country House Plan - 3 Bedrooms, 2 Bath, 1924 Sq Ft Plan 35-493

New plans now available on

dreambook-head-logo See all available plans
SHARE ON

All plans are copyrighted by the individual designer.

Photographs may reflect custom changes that were not included in the original design.

3 Bedroom, 2 Bath Country House Plan #35-493

Plan Purchase Options

Price: $0

Please uncheck first "Purchase MML without any plan package" under MONSTER MATERIAL LIST

Monster Material List
Optional Add-Ons
guaranted-label.png

Best Price Guarantee

*Payment Plans Now
Available Through

img See if you qualify

Floor Plans

What's included?
  • Main Floor

    Reverse

    Clicking the Reverse button does not mean you are ordering your plan reversed. It is for visualization purposes only. You may reverse the plan by ordering under “Optional Add-ons”.

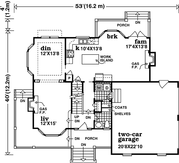
    Main Floor Plan: 35-493
  • Upper/Second Floor

    Reverse

    Clicking the Reverse button does not mean you are ordering your plan reversed. It is for visualization purposes only. You may reverse the plan by ordering under “Optional Add-ons”.

    Upper/Second Floor Plan: 35-493

House Plan Highlights

This charming country exterior conceals an elegant interior, starting with formal living and dining rooms, each with a bay window. Decorative columns help define an elegant dining room. The gourmet kitchen features a work island and a breakfast area with its own bay window. A fireplace warms the family room, which opens to the rear porch through French doors. Upstairs, two family bedrooms share a full bath and a gallery hall with a balcony overlook to the foyer. Also on this floor, a master suite boasts a vaulted ceiling, a walk-in closet and a tiled bath. Please specify basement, crawlspace or slab foundation when ordering.

This floor plan is found in our Country house plans section

Full Specs and Features

icon Total Living Area

  • Main floor: 1007
  • Upper floor: 917
  • Bonus: 325
  • Total Finished Sq. Ft.: 1924

icon Beds/Baths

  • Bedrooms: 3
  • Full Baths: 2
  • Half Baths: 1

icon Garage

  • Garage: 492
  • Garage Stalls: 2

icon Levels

  • 2 stories

Dimension

  • Width: 53' 0"
  • Depth: 44' 0"
  • Height: 30' 0"

Roof slope

  • 7:12 (primary)
  • 12:12 (secondary)

Walls (exterior)

  • 2"x6"

Ceiling heights

  • 9' (Main)

Foundation Options

  • Basement Standard With Plan
  • Walk-out basement $425
  • Crawlspace Standard With Plan
  • Slab $295

How Much Will It Cost To Build?

Wondering what it will actually cost to bring this home to life? Get an instant, customized estimate based on your chosen plan and location.

GET MY COST TO BUILD ESTIMATE

Modify This Plan

"Need Content here about modifying your plan"

Customize This Plan

House Plan Features

Suited for corner lots Suited for a back view
Upstairs Master
Island Eating bar Nook / breakfast Hearth room
Bonus room Family room Great room Main Floor laundry Open concept floor plan No formal living/dining
Covered front porch Covered rear porch Wrap-around porch
Vaulted/Volume/Dramatic ceilings
Side-entry garage

Reviews

How Much Will It Cost To Build?

Wondering what it will actually cost to bring this home to life? Get an instant, customized estimate based on your chosen plan and location.

GET MY COST TO BUILD ESTIMATE

Modify This Plan

Need changes to the layout or features? Our team can modify any plan to match your vision.

Customize This Plan

House Plan Features

Suited for corner lots Suited for a back view
Upstairs Master
Island Eating bar Nook / breakfast Hearth room
Bonus room Family room Great room Main Floor laundry Open concept floor plan No formal living/dining
Covered front porch Covered rear porch Wrap-around porch
Vaulted/Volume/Dramatic ceilings
Side-entry garage

Need Some Quick Tips Or Advice?

We want to help you design the house of your dreams as best as we can. If you can't find the answers you're looking for here, get in touch with our licensed architect or a designer!