Country House Plans - 4 Bed, 3 Bath, 1929 Sq Ft | Plan 77-271 | Monster House Plans

New plans now available on

dreambook-head-logo See all available plans
SHARE ON

All plans are copyrighted by the individual designer.

Photographs may reflect custom changes that were not included in the original design.

4 Bedroom, 3 Bath Country House Plan #77-271

Plan Purchase Options

Price: $0

Please uncheck first "Purchase MML without any plan package" under MONSTER MATERIAL LIST

Monster Material List
Optional Add-Ons
guaranted-label.png

Best Price Guarantee

*Payment Plans Now
Available Through

img See if you qualify

Floor Plans

What's included?
  • Main Floor

    Reverse

    Clicking the Reverse button does not mean you are ordering your plan reversed. It is for visualization purposes only. You may reverse the plan by ordering under “Optional Add-ons”.

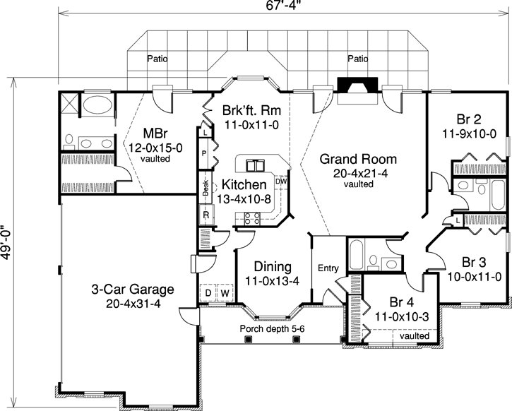
    Main Floor Plan: 77-271

Rear/Alternate Elevations

  • Rear Elevation

    Reverse

    Clicking the Reverse button does not mean you are ordering your plan reversed. It is for visualization purposes only. You may reverse the plan by ordering under “Optional Add-ons”.

    Rear Elevation Plan: 77-271

House Plan Highlights

The Plan That Has It All1929 total square feet of living areaSpecial featuresThe classic traditional exterior of this home creates a timeless eleganceThe vaulted grand room boasts a wood and brick mantle fireplace flanked by doors to the comfortable rear patioThe efficient U-shaped kitchen features a computer desk snack bar built-in pantry and breakfast room that sits in a bay windowThe vaulted master bedroom has a spacious walk-in closet luxurious bath and access to the rear patio4 bedrooms 3 baths 3-car side entry garageCrawl space foundation drawings also include slab and basement foundations

This floor plan is found in our Country house plans section

Full Specs and Features

icon Total Living Area

  • Main floor: 1929
  • Porches: 132
  • Total Finished Sq. Ft.: 1929

icon Beds/Baths

  • Bedrooms: 4
  • Full Baths: 3

icon Garage

  • Garage: 576
  • Garage Stalls: 3

icon Levels

  • 1 story

Dimension

  • Width: 68' 0"
  • Depth: 49' 8"
  • Height: 21' 10"

Roof slope

  • 9:12 (primary)
  • 10:12 (secondary)

Walls (exterior)

  • 2"x4"

Ceiling heights

  • 8' (Main)

Foundation Options

  • Basement $250
  • Crawlspace Standard With Plan
  • Slab $250

How Much Will It Cost To Build?

Wondering what it will actually cost to bring this home to life? Get an instant, customized estimate based on your chosen plan and location.

GET MY COST TO BUILD ESTIMATE

Modify This Plan

"Need Content here about modifying your plan"

Customize This Plan

House Plan Features

Suited for corner lots Suited for a back view
Split bedrooms
Eating bar Nook / breakfast
Great room Open concept floor plan Formal dining room
Covered front porch
Vaulted/Volume/Dramatic ceilings
Oversized garage (3+) Side-entry garage

Reviews

How Much Will It Cost To Build?

Wondering what it will actually cost to bring this home to life? Get an instant, customized estimate based on your chosen plan and location.

GET MY COST TO BUILD ESTIMATE

Modify This Plan

Need changes to the layout or features? Our team can modify any plan to match your vision.

Customize This Plan

House Plan Features

Suited for corner lots Suited for a back view
Split bedrooms
Eating bar Nook / breakfast
Great room Open concept floor plan Formal dining room
Covered front porch
Vaulted/Volume/Dramatic ceilings
Oversized garage (3+) Side-entry garage

Need Some Quick Tips Or Advice?

We want to help you design the house of your dreams as best as we can. If you can't find the answers you're looking for here, get in touch with our licensed architect or a designer!