Country House Plans - 4 Bed, 2 Bath, 1996 Sq Ft | Plan 35-226 | Monster House Plans

New plans now available on

dreambook-head-logo See all available plans
  • MEMORIAL DAY SALE! - 15% OFF Most Plans

    Some exceptions apply. Prices as marked.

SHARE ON

All plans are copyrighted by the individual designer.

Photographs may reflect custom changes that were not included in the original design.

4 Bedroom, 2 Bath Country House Plan #35-226

Plan Purchase Options

Price: $0

Please uncheck first "Purchase MML without any plan package" under MONSTER MATERIAL LIST

Monster Material List
Optional Add-Ons
guaranted-label.png

Best Price Guarantee

*Payment Plans Now
Available Through

img See if you qualify

Floor Plans

What's included?
  • Main Floor

    Reverse

    Clicking the Reverse button does not mean you are ordering your plan reversed. It is for visualization purposes only. You may reverse the plan by ordering under “Optional Add-ons”.

    Main Floor Plan: 35-226
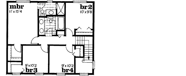
  • Upper/Second Floor

    Reverse

    Clicking the Reverse button does not mean you are ordering your plan reversed. It is for visualization purposes only. You may reverse the plan by ordering under “Optional Add-ons”.

    Upper/Second Floor Plan: 35-226

House Plan Highlights

Winding Staircase Leads to Living Area
This traditional farmhouse has great outdoor livability in a covered veranda
and a rear sun deck. The foyer leads to a sunken living room, which offers a
fireplace, and the adjoining dining room. A U-shaped kitchen features a
pass-through snack bar to the breakfast room. The family room is also sunken
and has a fireplace and double-door access to the rear yard. Bedrooms on the
second floor include the master suite with a private bath and three family
bedrooms sharing a full bath. Two of the family bedrooms have walk-in closets,
as does the master bedroom. To accommodate narrow lots, this design may be
easily adapted to 32 feet wide by building without the family room, utility
room and garage.
This traditional farmhouse has great outdoor livability in a covered veranda
and a rear sun deck. The foyer leads to a sunken living room, which offers a
fireplace, and the adjoining dining room.

This floor plan is found in our Country house plans section

Full Specs and Features

icon Total Living Area

  • Main floor: 1132
  • Upper floor: 864
  • Total Finished Sq. Ft.: 1996

icon Beds/Baths

  • Bedrooms: 4
  • Full Baths: 2
  • Half Baths: 1

icon Garage

  • Garage: 538
  • Garage Stalls: 2

icon Levels

  • 2 stories

Dimension

  • Width: 65' 6"
  • Depth: 31' 0"
  • Height: 33' 0"

Roof slope

  • 6:12 (primary)

Walls (exterior)

  • 2"x6"

Ceiling heights

  • 8' (Main)

Foundation Options

  • Basement Standard With Plan
  • Walk-out basement $425
  • Crawlspace $295
  • Slab $295

How Much Will It Cost To Build?

Wondering what it will actually cost to bring this home to life? Get an instant, customized estimate based on your chosen plan and location.

GET MY COST TO BUILD ESTIMATE

Modify This Plan

"Need Content here about modifying your plan"

Customize This Plan

House Plan Features

Suited for a back view
Upstairs Master
Eating bar Nook / breakfast
Family room Main Floor laundry Formal dining room Formal living room
Covered front porch

Reviews

How Much Will It Cost To Build?

Wondering what it will actually cost to bring this home to life? Get an instant, customized estimate based on your chosen plan and location.

GET MY COST TO BUILD ESTIMATE

Modify This Plan

Need changes to the layout or features? Our team can modify any plan to match your vision.

Customize This Plan

House Plan Features

Suited for a back view
Upstairs Master
Eating bar Nook / breakfast
Family room Main Floor laundry Formal dining room Formal living room
Covered front porch

Need Some Quick Tips Or Advice?

We want to help you design the house of your dreams as best as we can. If you can't find the answers you're looking for here, get in touch with our licensed architect or a designer!