Country House Plans - 3 Bed, 2 Bath, 2006 Sq Ft | Plan 30-434 | Monster House Plans

New plans now available on

dreambook-head-logo See all available plans
SHARE ON

All plans are copyrighted by the individual designer.

Photographs may reflect custom changes that were not included in the original design.

3 Bedroom, 2 Bath Country House Plan #30-434

Plan Purchase Options

Price: $0

Please uncheck first "Purchase MML without any plan package" under MONSTER MATERIAL LIST

Monster Material List
Optional Add-Ons
guaranted-label.png

Best Price Guarantee

*Payment Plans Now
Available Through

img See if you qualify

Floor Plans

What's included?
  • Main Floor

    Reverse

    Clicking the Reverse button does not mean you are ordering your plan reversed. It is for visualization purposes only. You may reverse the plan by ordering under “Optional Add-ons”.

    Main Floor Plan: 30-434
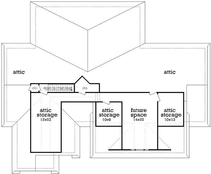
  • Upper/Second Floor

    Reverse

    Clicking the Reverse button does not mean you are ordering your plan reversed. It is for visualization purposes only. You may reverse the plan by ordering under “Optional Add-ons”.

    Upper/Second Floor Plan: 30-434

Rear/Alternate Elevations

  • Rear Elevation

    Reverse

    Clicking the Reverse button does not mean you are ordering your plan reversed. It is for visualization purposes only. You may reverse the plan by ordering under “Optional Add-ons”.

    Rear Elevation Plan: 30-434

House Plan Highlights

With an abundance of pre-planned attic space, this graceful craftsman style home is designed to be expandable as your need for space grows. The main level has two secondary bed rooms, each with their own dressing room and giant size walk-in closets. The secondary bed rooms share a bath and a half bath is conveniently located for guest. The living area is open and spacious with 10’ ceilings in the dining and foyer and cathedral ceilings in the eating area, kitchen and living room. A large glass sliding door provides plenty of light into the living room and easy access to the rear porch. The kitchen is spacious, steps away from the master and it features a large butlers pantry off of the light and airy eating area. The large master suite has cathedral ceilings and a 9’ glass door to access the rear veranda style wrap-a-round porch. The master bath has twin vanities, spa tub, separate shower and a private toilet area. The master also has a giant walk-in closet to house even the largest of wardrobes. The garage features one bay especially designed for oversize pickup trucks and there is ample storage space nearby. The conveniently located stairwell leads to the pre-planned attic space that contains plenty of storage space and some future living space.

This floor plan is found in our Country house plans section

Full Specs and Features

icon Total Living Area

  • Main floor: 2006
  • Bonus: 994
  • Porches: 884
  • Total Finished Sq. Ft.: 2006

icon Beds/Baths

  • Bedrooms: 3
  • Full Baths: 2
  • Half Baths: 1

icon Garage

  • Garage: 634
  • Garage Stalls: 2

icon Levels

  • 1 story

Dimension

  • Width: 76' 0"
  • Depth: 62' 0"
  • Height: 25' 6"

Roof slope

  • 9:12 (primary)

Walls (exterior)

  • 2"x4"

Exterior Finish

  • Combination

Roof Framing

  • Stick Frame

Foundation Options

  • Slab Standard With Plan

How Much Will It Cost To Build?

Wondering what it will actually cost to bring this home to life? Get an instant, customized estimate based on your chosen plan and location.

GET MY COST TO BUILD ESTIMATE

Modify This Plan

"Need Content here about modifying your plan"

Customize This Plan

House Plan Features

Suited for corner lots
Split bedrooms Teen suite/Jack & Jill bath
Island Walk-in pantry Eating bar
Great room Open concept floor plan No formal living/dining
Covered front porch Covered rear porch
Vaulted/Volume/Dramatic ceilings Photos Available
Workshop Side-entry garage

Reviews

How Much Will It Cost To Build?

Wondering what it will actually cost to bring this home to life? Get an instant, customized estimate based on your chosen plan and location.

GET MY COST TO BUILD ESTIMATE

Modify This Plan

Need changes to the layout or features? Our team can modify any plan to match your vision.

Customize This Plan

House Plan Features

Suited for corner lots
Split bedrooms Teen suite/Jack & Jill bath
Island Walk-in pantry Eating bar
Great room Open concept floor plan No formal living/dining
Covered front porch Covered rear porch
Vaulted/Volume/Dramatic ceilings Photos Available
Workshop Side-entry garage

Need Some Quick Tips Or Advice?

We want to help you design the house of your dreams as best as we can. If you can't find the answers you're looking for here, get in touch with our licensed architect or a designer!