Country House Plans - 4 Bed, 2 Bath, 2044 Sq Ft | Plan 7-323 | Monster House Plans

New plans now available on

dreambook-head-logo See all available plans
SHARE ON

All plans are copyrighted by the individual designer.

Photographs may reflect custom changes that were not included in the original design.

4 Bedroom, 2 Bath Country House Plan #7-323

Plan Purchase Options

Price: $0

Please uncheck first "Purchase MML without any plan package" under MONSTER MATERIAL LIST

Monster Material List
Optional Add-Ons
guaranted-label.png

Best Price Guarantee

*Payment Plans Now
Available Through

img See if you qualify

Floor Plans

What's included?
  • Main Floor

    Reverse

    Clicking the Reverse button does not mean you are ordering your plan reversed. It is for visualization purposes only. You may reverse the plan by ordering under “Optional Add-ons”.

    Main Floor Plan: 7-323
  • Upper/Second Floor

    Reverse

    Clicking the Reverse button does not mean you are ordering your plan reversed. It is for visualization purposes only. You may reverse the plan by ordering under “Optional Add-ons”.

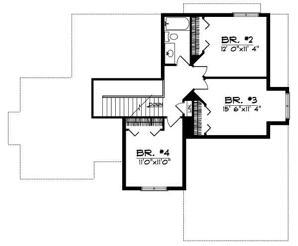
    Upper/Second Floor Plan: 7-323

Rear/Alternate Elevations

  • Rear Elevation

    Reverse

    Clicking the Reverse button does not mean you are ordering your plan reversed. It is for visualization purposes only. You may reverse the plan by ordering under “Optional Add-ons”.

    Rear Elevation Plan: 7-323

House Plan Highlights

Matchstick details lend a sophisticated country flavor to this four-bedroom two-story home. Inside a formal dining room opens off the tile foyer and features a lovely window seat. The spacious great room offers a center fireplace and enough windows to let in lots of natural light. A well-organized kitchen features a sizable pantry and an eating bar designed for light meals and snacks. The kitchen is open to the breakfast nook which leads outdoors. Many amenities enhance the main-floor master suite including a garden tub a walk-in closet and linen storage. Three second-floor bedrooms share a full bath and a two-car garage laundry area and half bath complete the home.

This floor plan is found in our Country house plans section

Full Specs and Features

icon Total Living Area

  • Main floor: 1365
  • Upper floor: 679
  • Total Finished Sq. Ft.: 2044

icon Beds/Baths

  • Bedrooms: 4
  • Full Baths: 2
  • Half Baths: 1

icon Garage

  • Garage: 444
  • Garage Stalls: 2

icon Levels

  • 2 stories

Dimension

  • Width: 54' 4"
  • Depth: 46' 0"
  • Height: 29' 6"

Roof slope

  • 8:12 (primary)
  • 10:12 (secondary)

Walls (exterior)

  • 2"x6"

Ceiling heights

  • 8' (Main)
    8' (Upper)

Foundation Options

  • Basement Standard With Plan
  • Crawlspace $415
  • Slab $415

How Much Will It Cost To Build?

Wondering what it will actually cost to bring this home to life? Get an instant, customized estimate based on your chosen plan and location.

GET MY COST TO BUILD ESTIMATE

Modify This Plan

"Need Content here about modifying your plan"

Customize This Plan

House Plan Features

Suited for a back view
Main floor Master
Island Eating bar Nook / breakfast
Great room Main Floor laundry Open concept floor plan Formal dining room
Covered front porch Covered rear porch Screened porch/sunroom
Vaulted/Volume/Dramatic ceilings
Side-entry garage

Reviews

How Much Will It Cost To Build?

Wondering what it will actually cost to bring this home to life? Get an instant, customized estimate based on your chosen plan and location.

GET MY COST TO BUILD ESTIMATE

Modify This Plan

Need changes to the layout or features? Our team can modify any plan to match your vision.

Customize This Plan

House Plan Features

Suited for a back view
Main floor Master
Island Eating bar Nook / breakfast
Great room Main Floor laundry Open concept floor plan Formal dining room
Covered front porch Covered rear porch Screened porch/sunroom
Vaulted/Volume/Dramatic ceilings
Side-entry garage

Need Some Quick Tips Or Advice?

We want to help you design the house of your dreams as best as we can. If you can't find the answers you're looking for here, get in touch with our licensed architect or a designer!