Country House Plans - 4 Bed, 2 Bath, 2236 Sq Ft | Plan 7-486 | Monster House Plans

New plans now available on

dreambook-head-logo See all available plans
SHARE ON

All plans are copyrighted by the individual designer.

Photographs may reflect custom changes that were not included in the original design.

4 Bedroom, 2 Bath Country House Plan #7-486

Plan Purchase Options

Price: $0

Please uncheck first "Purchase MML without any plan package" under MONSTER MATERIAL LIST

Monster Material List
Optional Add-Ons
guaranted-label.png

Best Price Guarantee

*Payment Plans Now
Available Through

img See if you qualify

Floor Plans

What's included?
  • Main Floor

    Reverse

    Clicking the Reverse button does not mean you are ordering your plan reversed. It is for visualization purposes only. You may reverse the plan by ordering under “Optional Add-ons”.

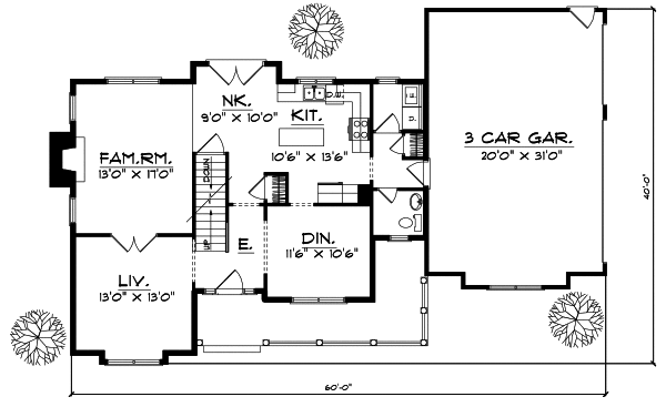
    Main Floor Plan: 7-486
  • Upper/Second Floor

    Reverse

    Clicking the Reverse button does not mean you are ordering your plan reversed. It is for visualization purposes only. You may reverse the plan by ordering under “Optional Add-ons”.

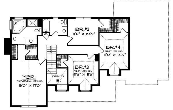
    Upper/Second Floor Plan: 7-486

Rear/Alternate Elevations

  • Rear Elevation

    Reverse

    Clicking the Reverse button does not mean you are ordering your plan reversed. It is for visualization purposes only. You may reverse the plan by ordering under “Optional Add-ons”.

    Rear Elevation Plan: 7-486

House Plan Highlights

This captivating 2-story 4-bedroom home is part of our Farmhouse Collection and is sure to turn you head. This home invites you with its covered front porch with accenting columns. The Foyer of this home gives you a 2-story ceiling along with stairs to the second floor and access to the Living and Dining Rooms. To the left of the Foyer you can enjoy a living room with double doors that open to the Family Room. The Family Room gives you the comfort of a fireplace surrounded by windows and windows that overlook the rear of the home. From the Family Room you can enter the KitchenNook area. The Kitchen has an island and the Nook has double doors that open to the back yard. Also from the Kitchen you can access the Dining Room and small hallway where you can find a half-bath Laundry Room coat closet and access to the 3-stall garage. If you took the stairs to the second floor of this home you will find all four bedrooms. In Bedrooms 3 and 4 you are sure to enjoy the tray ceilings and walk-in closets. In the Master Bedroom the cathedral ceiling arch window amount of closet space and elaborate Master Bath will capture you.

This floor plan is found in our Country house plans section

Full Specs and Features

icon Total Living Area

  • Main floor: 1065
  • Upper floor: 1171
  • Total Finished Sq. Ft.: 2236

icon Beds/Baths

  • Bedrooms: 4
  • Full Baths: 2
  • Half Baths: 1

icon Garage

  • Garage: 620
  • Garage Stalls: 3

icon Levels

  • 2 stories

Dimension

  • Width: 60' 0"
  • Depth: 40' 0"
  • Height: 28' 1"

Roof slope

  • 10:12 (primary)

Walls (exterior)

  • 2"x6"

Ceiling heights

  • 8' (Main)
    8' (Upper)

Foundation Options

  • Basement Standard With Plan
  • Crawlspace $415
  • Slab $415

How Much Will It Cost To Build?

Wondering what it will actually cost to bring this home to life? Get an instant, customized estimate based on your chosen plan and location.

GET MY COST TO BUILD ESTIMATE

Modify This Plan

"Need Content here about modifying your plan"

Customize This Plan

House Plan Features

Suited for a down-sloping lot Suited for a narrow lot
Split bedrooms
Eating bar
Hobby / rec-room Open concept floor plan No formal living/dining
Covered rear porch Screened porch/sunroom
Vaulted/Volume/Dramatic ceilings

Reviews

How Much Will It Cost To Build?

Wondering what it will actually cost to bring this home to life? Get an instant, customized estimate based on your chosen plan and location.

GET MY COST TO BUILD ESTIMATE

Modify This Plan

Need changes to the layout or features? Our team can modify any plan to match your vision.

Customize This Plan

House Plan Features

Suited for a down-sloping lot Suited for a narrow lot
Split bedrooms
Eating bar
Hobby / rec-room Open concept floor plan No formal living/dining
Covered rear porch Screened porch/sunroom
Vaulted/Volume/Dramatic ceilings

Need Some Quick Tips Or Advice?

We want to help you design the house of your dreams as best as we can. If you can't find the answers you're looking for here, get in touch with our licensed architect or a designer!