Country House Plans - 4 Bed, 2 Bath, 2299 Sq Ft | Plan 17-189 | Monster House Plans

New plans now available on

dreambook-head-logo See all available plans
  • MEMORIAL DAY SALE! - 15% OFF Most Plans

    Some exceptions apply. Prices as marked.

SHARE ON

All plans are copyrighted by the individual designer.

Photographs may reflect custom changes that were not included in the original design.

4 Bedroom, 2 Bath Country House Plan #17-189

Plan Purchase Options

Price: $0

Please uncheck first "Purchase MML without any plan package" under MONSTER MATERIAL LIST

Monster Material List
Optional Add-Ons
guaranted-label.png

Best Price Guarantee

*Payment Plans Now
Available Through

img See if you qualify

Floor Plans

What's included?
  • Main Floor

    Reverse

    Clicking the Reverse button does not mean you are ordering your plan reversed. It is for visualization purposes only. You may reverse the plan by ordering under “Optional Add-ons”.

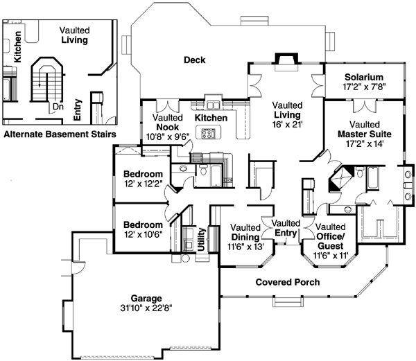
    Main Floor Plan: 17-189

Rear/Alternate Elevations

  • Rear Elevation

    Reverse

    Clicking the Reverse button does not mean you are ordering your plan reversed. It is for visualization purposes only. You may reverse the plan by ordering under “Optional Add-ons”.

    Rear Elevation Plan: 17-189

House Plan Highlights

Covered porch wraps around dining room entry officeguest suite in this country home plan. Kitchen open to vaulted nook and living room with fireplace. Luxurious master suite has dual walk-in closet direct solarium access.Gabled dormers and a railed porch give a country flavor to this design. This single-story family home could be adapted for wheelchair accessibility without much trouble.Family living centers around a living room with a fireplace. French doors open onto a deck at the left and a solarium on the right and more light streams in through windows that flank the fireplace. A lofty vaulted ceiling makes this bright space feel larger than it is.The kitchen is spacious enough for multiple cooks to work without bumping elbows. An eating bar and work island add to the already ample counter space and a walk-in pantry provides plenty of storage for canned goods and staple foods. The counter closest to the dining room is outfitted with a built-in food warmer.Potted plants will thrive in the richly illuminated eating nook. It has skylights windows on one side and French doors on another.Bay windows expand the front-facing rooms. The dining room has a built-in hutch. The other room could be a home office guest room den or studio. Both have vaulted ceilings and feature overhead dormers.A dual-compartment bathroom serves the master suite and the guest room. Shower toilet and a sink are in the outer section while the private inner section contains the tub two basins and a huge walk-in closet. Another two-part bathroom serves the two secondary bedrooms.Laundry facilities are tucked in a pass-through space that connects the house to a three-car garage with room for storage and a workbench.

This floor plan is found in our Country house plans section

Full Specs and Features

icon Total Living Area

  • Main floor: 2299
  • Bonus: 140
  • Total Finished Sq. Ft.: 2299

icon Beds/Baths

  • Bedrooms: 4
  • Full Baths: 2

icon Garage

  • Garage: 780
  • Garage Stalls: 3

icon Levels

  • 1 story

Dimension

  • Width: 77' 0"
  • Depth: 67' 0"
  • Height: 23' 10"

Roof slope

  • 6:12 (primary)

Walls (exterior)

  • 2"x6"

Ceiling heights

  • 9' (Main)

Foundation Options

  • Basement $515
  • Crawlspace Standard With Plan
  • Slab $395

How Much Will It Cost To Build?

Wondering what it will actually cost to bring this home to life? Get an instant, customized estimate based on your chosen plan and location.

GET MY COST TO BUILD ESTIMATE

Modify This Plan

"Need Content here about modifying your plan"

Customize This Plan

House Plan Features

Suited for a back view
Guest suite Split bedrooms
Island Walk-in pantry Eating bar Nook / breakfast
Family room Formal dining room Den / office / computer
Covered front porch Wrap-around porch Screened porch/sunroom
Vaulted/Volume/Dramatic ceilings
Oversized garage (3+)

Reviews

How Much Will It Cost To Build?

Wondering what it will actually cost to bring this home to life? Get an instant, customized estimate based on your chosen plan and location.

GET MY COST TO BUILD ESTIMATE

Modify This Plan

Need changes to the layout or features? Our team can modify any plan to match your vision.

Customize This Plan

House Plan Features

Suited for a back view
Guest suite Split bedrooms
Island Walk-in pantry Eating bar Nook / breakfast
Family room Formal dining room Den / office / computer
Covered front porch Wrap-around porch Screened porch/sunroom
Vaulted/Volume/Dramatic ceilings
Oversized garage (3+)

Need Some Quick Tips Or Advice?

We want to help you design the house of your dreams as best as we can. If you can't find the answers you're looking for here, get in touch with our licensed architect or a designer!