Country House Plans - 4 Bed, 3 Bath, 2365 Sq Ft | Plan 77-334 | Monster House Plans

New plans now available on

dreambook-head-logo See all available plans
SHARE ON

All plans are copyrighted by the individual designer.

Photographs may reflect custom changes that were not included in the original design.

4 Bedroom, 3 Bath Country House Plan #77-334

Plan Purchase Options

Price: $0

Please uncheck first "Purchase MML without any plan package" under MONSTER MATERIAL LIST

Monster Material List
Optional Add-Ons
guaranted-label.png

Best Price Guarantee

*Payment Plans Now
Available Through

img See if you qualify

Floor Plans

What's included?
  • Main Floor

    Reverse

    Clicking the Reverse button does not mean you are ordering your plan reversed. It is for visualization purposes only. You may reverse the plan by ordering under “Optional Add-ons”.

    Main Floor Plan: 77-334
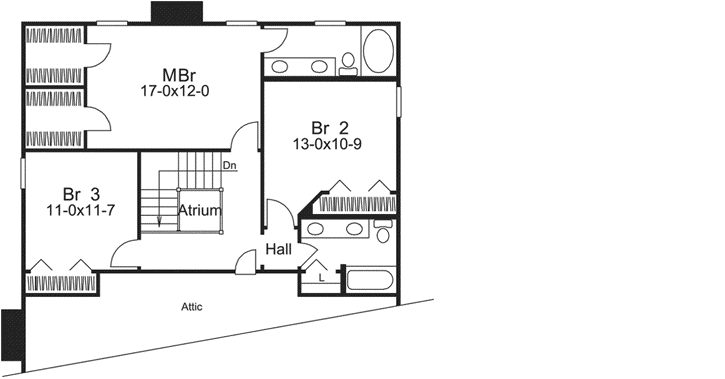
  • Upper/Second Floor

    Reverse

    Clicking the Reverse button does not mean you are ordering your plan reversed. It is for visualization purposes only. You may reverse the plan by ordering under “Optional Add-ons”.

    Upper/Second Floor Plan: 77-334

Rear/Alternate Elevations

  • Rear Elevation

    Reverse

    Clicking the Reverse button does not mean you are ordering your plan reversed. It is for visualization purposes only. You may reverse the plan by ordering under “Optional Add-ons”.

    Rear Elevation Plan: 77-334

House Plan Highlights

Covered Patio With Bar And Sauna2365 total square feet of living areaSpecial featuresA winding staircase is central to this homes carefully designed interior and leads to the spacious bedrooms on the second floorSkylights a vaulted ceiling and a walk-in bar and sauna room are features of the covered and uncovered rear patios that can be viewed from both the kitchen and breakfast area An extra room on the first floor is perfect for a private study or guest bedroom with bath and walk-in closet4 bedrooms 3 12 baths 2-car garageCrawl space foundation1477 square feet on the first floor and 888 square feet on the second floor

This floor plan is found in our Country house plans section

Full Specs and Features

icon Total Living Area

  • Main floor: 1477
  • Upper floor: 888
  • Porches: 380
  • Total Finished Sq. Ft.: 2365

icon Beds/Baths

  • Bedrooms: 4
  • Full Baths: 3
  • Half Baths: 1

icon Garage

  • Garage: 474
  • Garage Stalls: 2

icon Levels

  • 2 stories

Dimension

  • Width: 67' 0"
  • Depth: 44' 0"
  • Height: 25' 0"

Roof slope

  • 6:12 (primary)
  • 8:12 (secondary)

Walls (exterior)

  • 2"x4"

Ceiling heights

  • 9' (Main)
    8' (Upper)

Foundation Options

  • Crawlspace Standard With Plan

How Much Will It Cost To Build?

Wondering what it will actually cost to bring this home to life? Get an instant, customized estimate based on your chosen plan and location.

GET MY COST TO BUILD ESTIMATE

Modify This Plan

"Need Content here about modifying your plan"

Customize This Plan

House Plan Features

Suited for a back view
Upstairs Master Guest suite
Eating bar Nook / breakfast Hearth room
Main Floor laundry Formal dining room Formal living room Den / office / computer
Covered front porch Covered rear porch

Reviews

How Much Will It Cost To Build?

Wondering what it will actually cost to bring this home to life? Get an instant, customized estimate based on your chosen plan and location.

GET MY COST TO BUILD ESTIMATE

Modify This Plan

Need changes to the layout or features? Our team can modify any plan to match your vision.

Customize This Plan

House Plan Features

Suited for a back view
Upstairs Master Guest suite
Eating bar Nook / breakfast Hearth room
Main Floor laundry Formal dining room Formal living room Den / office / computer
Covered front porch Covered rear porch

Need Some Quick Tips Or Advice?

We want to help you design the house of your dreams as best as we can. If you can't find the answers you're looking for here, get in touch with our licensed architect or a designer!