Country House Plans - 4 Bed, 3 Bath, 2373 Sq Ft | Plan 12-743 | Monster House Plans

New plans now available on

dreambook-head-logo See all available plans
SHARE ON

All plans are copyrighted by the individual designer.

Photographs may reflect custom changes that were not included in the original design.

4 Bedroom, 3 Bath Country House Plan #12-743

Plan Purchase Options

Price: $0

Please uncheck first "Purchase MML without any plan package" under MONSTER MATERIAL LIST

Monster Material List
Optional Add-Ons
guaranted-label.png

Best Price Guarantee

*Payment Plans Now
Available Through

img See if you qualify

Floor Plans

What's included?
  • Main Floor

    Reverse

    Clicking the Reverse button does not mean you are ordering your plan reversed. It is for visualization purposes only. You may reverse the plan by ordering under “Optional Add-ons”.

    Main Floor Plan: 12-743
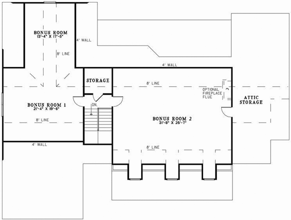
  • Bonus Floor

    Reverse

    Clicking the Reverse button does not mean you are ordering your plan reversed. It is for visualization purposes only. You may reverse the plan by ordering under “Optional Add-ons”.

    Bonus Floor Plan: 12-743

Rear/Alternate Elevations

  • Rear Elevation

    Reverse

    Clicking the Reverse button does not mean you are ordering your plan reversed. It is for visualization purposes only. You may reverse the plan by ordering under “Optional Add-ons”.

    Rear Elevation Plan: 12-743

House Plan Highlights

This spectacular split bedroom design blends the warmth of country living with classic southern tradition in a detailed porch with round columns on stone pillars. The spacious great room has a built-in media center, fireplace and wall of windows leading to a breakfast room/kitchen combination sharing a handy breakfast bar. The large master suite accesses a column lined rear porch and has a private bath featuring a corner whirlpool bath, makeup area and large walk-in closet. Three additional bedrooms with two shared bathrooms complete the main level. Upstairs, youпїЅll find several bonus rooms with creative ceilings and dormer windows.

This floor plan is found in our Country house plans section

Full Specs and Features

icon Total Living Area

  • Main floor: 2373
  • Bonus: 687
  • Porches: 580
  • Total Finished Sq. Ft.: 2373

icon Beds/Baths

  • Bedrooms: 4
  • Full Baths: 3

icon Garage

  • Garage: 866
  • Garage Stalls: 3

icon Levels

  • 1 story

Dimension

  • Width: 76' 10"
  • Depth: 59' 2"
  • Height: 26' 3"

Roof slope

  • 10:12 (primary)

Walls (exterior)

  • 2"x4"

Ceiling heights

  • 9' (Main)
    8' (Upper)

Foundation Options

  • Basement $299
  • Daylight basement $399
  • Crawlspace Standard With Plan
  • Slab Standard With Plan

How Much Will It Cost To Build?

Wondering what it will actually cost to bring this home to life? Get an instant, customized estimate based on your chosen plan and location.

GET MY COST TO BUILD ESTIMATE

Modify This Plan

"Need Content here about modifying your plan"

Customize This Plan

House Plan Features

Suited for corner lots Suited for a back view
Split bedrooms Teen suite/Jack & Jill bath
Eating bar Nook / breakfast
Bonus room Great room Open concept floor plan Formal dining room Den / office / computer
Covered front porch Covered rear porch Grilling porch/outdoor kitchen
Oversized garage (3+) Side-entry garage

Reviews

How Much Will It Cost To Build?

Wondering what it will actually cost to bring this home to life? Get an instant, customized estimate based on your chosen plan and location.

GET MY COST TO BUILD ESTIMATE

Modify This Plan

Need changes to the layout or features? Our team can modify any plan to match your vision.

Customize This Plan

House Plan Features

Suited for corner lots Suited for a back view
Split bedrooms Teen suite/Jack & Jill bath
Eating bar Nook / breakfast
Bonus room Great room Open concept floor plan Formal dining room Den / office / computer
Covered front porch Covered rear porch Grilling porch/outdoor kitchen
Oversized garage (3+) Side-entry garage

Need Some Quick Tips Or Advice?

We want to help you design the house of your dreams as best as we can. If you can't find the answers you're looking for here, get in touch with our licensed architect or a designer!