Country House Plans - 4 Bed, 3 Bath, 2534 Sq Ft | Plan 35-394 | Monster House Plans

New plans now available on

dreambook-head-logo See all available plans
SHARE ON

All plans are copyrighted by the individual designer.

Photographs may reflect custom changes that were not included in the original design.

4 Bedroom, 3 Bath Country House Plan #35-394

Plan Purchase Options

Price: $0

Please uncheck first "Purchase MML without any plan package" under MONSTER MATERIAL LIST

Monster Material List
Optional Add-Ons
guaranted-label.png

Best Price Guarantee

*Payment Plans Now
Available Through

img See if you qualify

Floor Plans

What's included?
  • Main Floor

    Reverse

    Clicking the Reverse button does not mean you are ordering your plan reversed. It is for visualization purposes only. You may reverse the plan by ordering under “Optional Add-ons”.

    Main Floor Plan: 35-394
  • Upper/Second Floor

    Reverse

    Clicking the Reverse button does not mean you are ordering your plan reversed. It is for visualization purposes only. You may reverse the plan by ordering under “Optional Add-ons”.

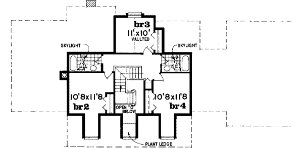
    Upper/Second Floor Plan: 35-394

House Plan Highlights

A home in the country, this design offers delightful details on its exterior: a trio of dormers, shuttered windows and a covered front porch. The vaulted foyer is brightened by a second-story dormer and is flanked by the living and dining rooms. A corner fireplace warms the living room. The gourmet kitchen offers a center prep island, a convenient butler's pantry and an attached breakfast room with sliding glass doors to the rear garden. A vaulted family room with a fireplace is separated from the breakfast room by a half-wall. The master bedroom remains on the first floor for privacy. It features a large walk-in closet and a bath with a whirlpool tub. Three family bedrooms share two skylit baths on the second floor. Bedroom 3 has a vaulted ceiling.

This floor plan is found in our Country house plans section

Full Specs and Features

icon Total Living Area

  • Main floor: 1722
  • Upper floor: 812
  • Total Finished Sq. Ft.: 2534

icon Beds/Baths

  • Bedrooms: 4
  • Full Baths: 3
  • Half Baths: 1

icon Garage

  • Garage: 660
  • Garage Stalls: 2

icon Levels

  • 2 stories

Dimension

  • Width: 84' 6"
  • Depth: 40' 6"
  • Height: 30' 0"

Roof slope

  • 12:12 (primary)

Walls (exterior)

  • 2"x6"

Ceiling heights

  • 9' (Main)

Foundation Options

  • Basement Standard With Plan
  • Walk-out basement $425
  • Crawlspace Standard With Plan
  • Slab $295

How Much Will It Cost To Build?

Wondering what it will actually cost to bring this home to life? Get an instant, customized estimate based on your chosen plan and location.

GET MY COST TO BUILD ESTIMATE

Modify This Plan

"Need Content here about modifying your plan"

Customize This Plan

House Plan Features

Suited for corner lots
Main floor Master
Island Butler's pantry Eating bar Nook / breakfast Hearth room
Family room Main Floor laundry Open concept floor plan Formal dining room Formal living room
Covered front porch
Vaulted/Volume/Dramatic ceilings
Workshop Side-entry garage

Reviews

How Much Will It Cost To Build?

Wondering what it will actually cost to bring this home to life? Get an instant, customized estimate based on your chosen plan and location.

GET MY COST TO BUILD ESTIMATE

Modify This Plan

Need changes to the layout or features? Our team can modify any plan to match your vision.

Customize This Plan

House Plan Features

Suited for corner lots
Main floor Master
Island Butler's pantry Eating bar Nook / breakfast Hearth room
Family room Main Floor laundry Open concept floor plan Formal dining room Formal living room
Covered front porch
Vaulted/Volume/Dramatic ceilings
Workshop Side-entry garage

Need Some Quick Tips Or Advice?

We want to help you design the house of your dreams as best as we can. If you can't find the answers you're looking for here, get in touch with our licensed architect or a designer!