Country House Plans - 4 Bed, 3 Bath, 2628 Sq Ft | Plan 85-119 | Monster House Plans

New plans now available on

dreambook-head-logo See all available plans
SHARE ON

All plans are copyrighted by the individual designer.

Photographs may reflect custom changes that were not included in the original design.

Design Comments

Plans include a multiple build license. Additional foundations available for $175

4 Bedroom, 3 Bath Country House Plan #85-119

Plan Purchase Options

Price: $0

Please uncheck first "Purchase MML without any plan package" under MONSTER MATERIAL LIST

Monster Material List
Optional Add-Ons
guaranted-label.png

Best Price Guarantee

*Payment Plans Now
Available Through

img See if you qualify

Floor Plans

What's included?
  • Main Floor

    Reverse

    Clicking the Reverse button does not mean you are ordering your plan reversed. It is for visualization purposes only. You may reverse the plan by ordering under “Optional Add-ons”.

    Main Floor Plan: 85-119
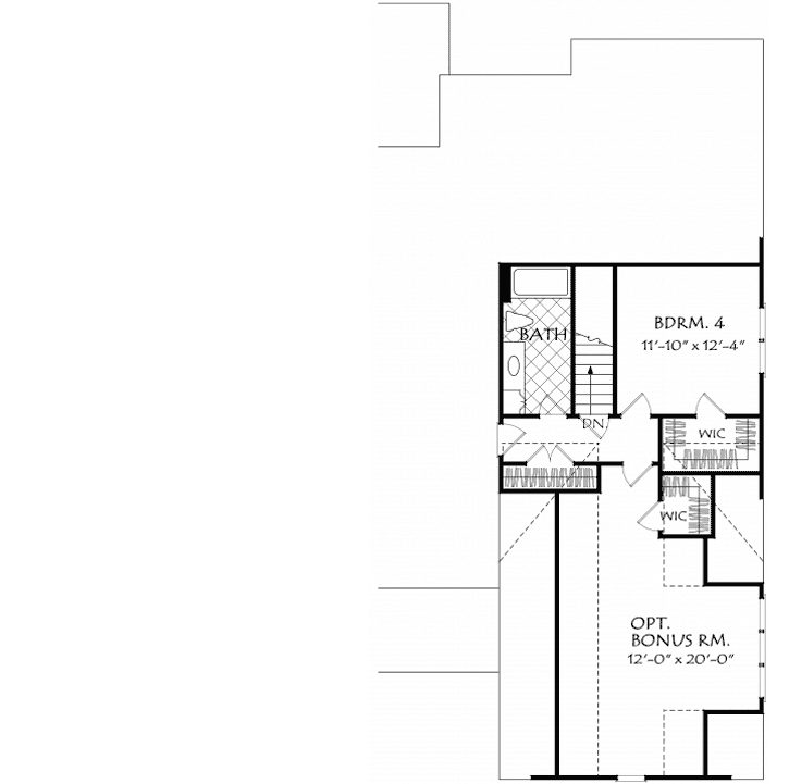
  • Upper/Second Floor

    Reverse

    Clicking the Reverse button does not mean you are ordering your plan reversed. It is for visualization purposes only. You may reverse the plan by ordering under “Optional Add-ons”.

    Upper/Second Floor Plan: 85-119

House Plan Highlights

Large forward facing gables and multiple siding textures blend harmoniously to create an inviting façade. Stone pedestals with double columns anchor a large front porch perfect for rocking chairs and friendly conversation. Upon entering the foyer this design defines "open concept" with a large family size Great Room open to the kitchen and eating spaces. The master suite is luxurious and provides the owners with privacy and the needed features to recharge after a busy schedule. The secondary bedrooms share a hall bath and have ample closet space. The mudroom provides cabinetry for organizing book bags, boots and coats and is connected to the laundry room. The upper floor is includes a full bath, fourth bedroom and large bonus area each with walk-in-closets.

This floor plan is found in our Country house plans section

Full Specs and Features

icon Total Living Area

  • Main floor: 2269
  • Upper floor: 359
  • Basement: 2269
  • Bonus: 376
  • Total Finished Sq. Ft.: 2628

icon Beds/Baths

  • Bedrooms: 4
  • Full Baths: 3
  • Half Baths: 1

icon Garage

  • Garage: 525
  • Garage Stalls: 2

icon Levels

  • 2 stories

Dimension

  • Width: 61' 0"
  • Depth: 62' 0"
  • Height: 27' 0"

Roof slope

  • 10:12 (primary)

Walls (exterior)

  • 2"x4"

Ceiling heights

  • 9' (Main)
    8' (Upper)

Foundation Options

  • Crawlspace Standard With Plan

How Much Will It Cost To Build?

Wondering what it will actually cost to bring this home to life? Get an instant, customized estimate based on your chosen plan and location.

GET MY COST TO BUILD ESTIMATE

Modify This Plan

"Need Content here about modifying your plan"

Customize This Plan

House Plan Features

Suited for corner lots
Guest suite Split bedrooms
Island Walk-in pantry Eating bar Nook / breakfast
Bonus room Great room Open concept floor plan Mud room Formal dining room Unfinished/future space
Covered front porch Covered rear porch
Vaulted/Volume/Dramatic ceilings
Side-entry garage

Reviews

How Much Will It Cost To Build?

Wondering what it will actually cost to bring this home to life? Get an instant, customized estimate based on your chosen plan and location.

GET MY COST TO BUILD ESTIMATE

Modify This Plan

Need changes to the layout or features? Our team can modify any plan to match your vision.

Customize This Plan

House Plan Features

Suited for corner lots
Guest suite Split bedrooms
Island Walk-in pantry Eating bar Nook / breakfast
Bonus room Great room Open concept floor plan Mud room Formal dining room Unfinished/future space
Covered front porch Covered rear porch
Vaulted/Volume/Dramatic ceilings
Side-entry garage

Need Some Quick Tips Or Advice?

We want to help you design the house of your dreams as best as we can. If you can't find the answers you're looking for here, get in touch with our licensed architect or a designer!