Country House Plans - 4 Bed, 2 Bath, 2694 Sq Ft | Plan 77-272 | Monster House Plans

New plans now available on

dreambook-head-logo See all available plans
SHARE ON

All plans are copyrighted by the individual designer.

Photographs may reflect custom changes that were not included in the original design.

4 Bedroom, 2 Bath Country House Plan #77-272

Plan Purchase Options

Price: $0

Please uncheck first "Purchase MML without any plan package" under MONSTER MATERIAL LIST

Monster Material List
Optional Add-Ons
guaranted-label.png

Best Price Guarantee

*Payment Plans Now
Available Through

img See if you qualify

Floor Plans

What's included?
  • Main Floor

    Reverse

    Clicking the Reverse button does not mean you are ordering your plan reversed. It is for visualization purposes only. You may reverse the plan by ordering under “Optional Add-ons”.

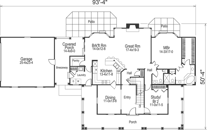
    Main Floor Plan: 77-272
  • Upper/Second Floor

    Reverse

    Clicking the Reverse button does not mean you are ordering your plan reversed. It is for visualization purposes only. You may reverse the plan by ordering under “Optional Add-ons”.

    Upper/Second Floor Plan: 77-272

Rear/Alternate Elevations

  • Rear Elevation

    Reverse

    Clicking the Reverse button does not mean you are ordering your plan reversed. It is for visualization purposes only. You may reverse the plan by ordering under “Optional Add-ons”.

    Rear Elevation Plan: 77-272

House Plan Highlights

Breezeway And Patios Showcase Country Home2694 total square feet of living areaSpecial featuresThe charming great room with flanking windows and fireplace is open to the breakfast room and kitchenThe lovely kitchen has an eating bar and adjacent breakfast room with a spacious walk-in pantry bay window and large laundry roomA luxurious bath huge walk-in closet and nearby room perfect for a study or nursery are some of the amenities of the master bedroomThe two-story entry staircase guides guests to the second floor family and game room area4 bedrooms 2 12 baths 2-car side entry garageBasement foundation1912 square feet on the first floor and 782 square feet on the second floor

This floor plan is found in our Country house plans section

Full Specs and Features

icon Total Living Area

  • Main floor: 1912
  • Upper floor: 782
  • Basement: 1884
  • Porches: 792
  • Total Finished Sq. Ft.: 2694

icon Beds/Baths

  • Bedrooms: 4
  • Full Baths: 2
  • Half Baths: 1

icon Garage

  • Garage: 591
  • Garage Stalls: 2

icon Levels

  • 2 stories

Dimension

  • Width: 93' 4"
  • Depth: 50' 4"
  • Height: 31' 3"

Roof slope

  • 10:12 (primary)
  • 12:12 (secondary)

Walls (exterior)

  • 2"x4"

Ceiling heights

  • 11' (Main)
    9' (Upper)

Foundation Options

  • Basement Standard With Plan

How Much Will It Cost To Build?

Wondering what it will actually cost to bring this home to life? Get an instant, customized estimate based on your chosen plan and location.

GET MY COST TO BUILD ESTIMATE

Modify This Plan

"Need Content here about modifying your plan"

Customize This Plan

House Plan Features

Suited for corner lots Suited for a back view
Main floor Master
Walk-in pantry Eating bar Nook / breakfast
Hobby / rec-room Great room Main Floor laundry Open concept floor plan Formal dining room Den / office / computer
Covered front porch Covered rear porch Wrap-around porch
Photos Available
Side-entry garage

Reviews

How Much Will It Cost To Build?

Wondering what it will actually cost to bring this home to life? Get an instant, customized estimate based on your chosen plan and location.

GET MY COST TO BUILD ESTIMATE

Modify This Plan

Need changes to the layout or features? Our team can modify any plan to match your vision.

Customize This Plan

House Plan Features

Suited for corner lots Suited for a back view
Main floor Master
Walk-in pantry Eating bar Nook / breakfast
Hobby / rec-room Great room Main Floor laundry Open concept floor plan Formal dining room Den / office / computer
Covered front porch Covered rear porch Wrap-around porch
Photos Available
Side-entry garage

Need Some Quick Tips Or Advice?

We want to help you design the house of your dreams as best as we can. If you can't find the answers you're looking for here, get in touch with our licensed architect or a designer!