Country House Plans - 5 Bed, 5 Bath, 2698 Sq Ft | Plan 4-211 | Monster House Plans

New plans now available on

dreambook-head-logo See all available plans
SHARE ON

All plans are copyrighted by the individual designer.

Photographs may reflect custom changes that were not included in the original design.

5 Bedroom, 5 Bath Country House Plan #4-211

Plan Purchase Options

Price: $0

Please uncheck first "Purchase MML without any plan package" under MONSTER MATERIAL LIST

Optional Add-Ons
guaranted-label.png

Best Price Guarantee

*Payment Plans Now
Available Through

img See if you qualify

Floor Plans

What's included?
  • Main Floor

    Reverse

    Clicking the Reverse button does not mean you are ordering your plan reversed. It is for visualization purposes only. You may reverse the plan by ordering under “Optional Add-ons”.

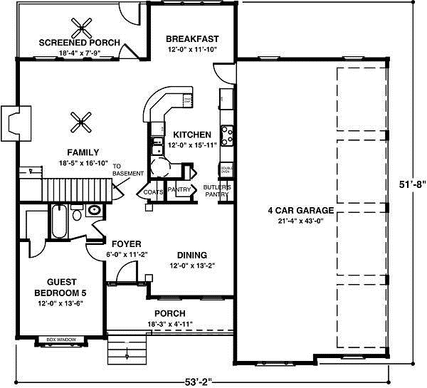
    Main Floor Plan: 4-211
  • Upper/Second Floor

    Reverse

    Clicking the Reverse button does not mean you are ordering your plan reversed. It is for visualization purposes only. You may reverse the plan by ordering under “Optional Add-ons”.

    Upper/Second Floor Plan: 4-211

House Plan Highlights

A quaint front porch welcomes you to this spacious and carefully designed two story home with 5 bedrooms and 5 baths. You will discover an unusual abundance of features in an affordable 2698 square feet.

Step inside to a spacious foyer which provides direct access to an elegant dining area and a comfortable guest suite. Beyond, you will find a grand two story family room which is open to the kitchen and breakfast area. We have also provided an enormous 4 car garage for todayпїЅs пїЅmobileпїЅ familiesпїЅallowing plenty of room for the familyпїЅs recreational пїЅtoysпїЅ.

Upstairs you will find 3 bedrooms, each with a private bath and abundant closet space, plus a grand master suite. The master features a vaulted ceiling and a his and hers walk-in closet with an expansion area available to virtually triple its size. The his and hers baths feature a vaulted ceiling with a radiused window above to provide plenty of light.

Lower level ceiling heights are 9пїЅ, except for the family room which is 18пїЅ. The upper level ceilings are 8пїЅ high except for the vaulted master areas.

This floor plan is found in our Country house plans section

Full Specs and Features

icon Total Living Area

  • Main floor: 1244
  • Upper floor: 1454
  • Total Finished Sq. Ft.: 2698

icon Beds/Baths

  • Bedrooms: 5
  • Full Baths: 5

icon Garage

  • Garage Stalls: 4

icon Levels

  • 2 stories

Dimension

  • Width: 53' 2"
  • Depth: 51' 8"
  • Height: 31' 0"

Roof slope

  • 8:12 (primary)
  • 10:12 (secondary)

Walls (exterior)

  • 2"x4"

Ceiling heights

  • 9' (Main)
    8' (Upper)

Foundation Options

  • Basement Standard With Plan
  • Crawlspace $350
  • Slab $350

How Much Will It Cost To Build?

Wondering what it will actually cost to bring this home to life? Get an instant, customized estimate based on your chosen plan and location.

GET MY COST TO BUILD ESTIMATE

Modify This Plan

"Need Content here about modifying your plan"

Customize This Plan

House Plan Features

Suited for corner lots Suited for a back view
Upstairs Master Guest suite Teen suite/Jack & Jill bath
Walk-in pantry Butler's pantry Eating bar Nook / breakfast
Family room Upstairs laundry Loft / balcony Library Formal dining room Unfinished/future space
Covered front porch Covered rear porch Screened porch/sunroom
Vaulted/Volume/Dramatic ceilings
Oversized garage (3+) Side-entry garage

Reviews

How Much Will It Cost To Build?

Wondering what it will actually cost to bring this home to life? Get an instant, customized estimate based on your chosen plan and location.

GET MY COST TO BUILD ESTIMATE

Modify This Plan

Need changes to the layout or features? Our team can modify any plan to match your vision.

Customize This Plan

House Plan Features

Suited for corner lots Suited for a back view
Upstairs Master Guest suite Teen suite/Jack & Jill bath
Walk-in pantry Butler's pantry Eating bar Nook / breakfast
Family room Upstairs laundry Loft / balcony Library Formal dining room Unfinished/future space
Covered front porch Covered rear porch Screened porch/sunroom
Vaulted/Volume/Dramatic ceilings
Oversized garage (3+) Side-entry garage

Need Some Quick Tips Or Advice?

We want to help you design the house of your dreams as best as we can. If you can't find the answers you're looking for here, get in touch with our licensed architect or a designer!