Country House Plans - 4 Bed, 3 Bath, 3033 Sq Ft | Plan 7-688 | Monster House Plans

New plans now available on

dreambook-head-logo See all available plans
SHARE ON

All plans are copyrighted by the individual designer.

Photographs may reflect custom changes that were not included in the original design.

4 Bedroom, 3 Bath Country House Plan #7-688

Plan Purchase Options

Price: $0

Please uncheck first "Purchase MML without any plan package" under MONSTER MATERIAL LIST

Monster Material List
Optional Add-Ons
guaranted-label.png

Best Price Guarantee

*Payment Plans Now
Available Through

img See if you qualify

Floor Plans

What's included?
  • Main Floor

    Reverse

    Clicking the Reverse button does not mean you are ordering your plan reversed. It is for visualization purposes only. You may reverse the plan by ordering under “Optional Add-ons”.

    Main Floor Plan: 7-688
  • Upper/Second Floor

    Reverse

    Clicking the Reverse button does not mean you are ordering your plan reversed. It is for visualization purposes only. You may reverse the plan by ordering under “Optional Add-ons”.

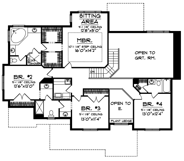
    Upper/Second Floor Plan: 7-688

Rear/Alternate Elevations

  • Rear Elevation

    Reverse

    Clicking the Reverse button does not mean you are ordering your plan reversed. It is for visualization purposes only. You may reverse the plan by ordering under “Optional Add-ons”.

    Rear Elevation Plan: 7-688

House Plan Highlights

A large porch perfect for the swing youve always dreamed of invites you into this country two-story charmer. A two-story ceiling greets you as you enter and continues into the great room directly ahead where youll discover a cozy fireplace flanked by built-in cabinets. The kitchen will be remembered for its eat-in island and spacious walk-in pantry while the adjacent nook will be noted for its cathedral ceilings and windows on three sides. The formal dining room is located to the left of the entry and is detailed with an arched opening flanked with graceful columns. The den is located off the right of the entry and welcomes you inside with double French doors. Upstairs the master suite pampers with step ceilings and a separate sitting room in the bedroom his and hers walk-in closets and a corner Jacuzzi tub. Two bedrooms share a Jack and Jill bathroom while a third bedroom has a private bath and walk-in closet. Finally the laundry room is located upstairs by the bedrooms for easy access.

This floor plan is found in our Country house plans section

Full Specs and Features

icon Total Living Area

  • Main floor: 1479
  • Upper floor: 1554
  • Total Finished Sq. Ft.: 3033

icon Beds/Baths

  • Bedrooms: 4
  • Full Baths: 3
  • Half Baths: 1

icon Garage

  • Garage: 778
  • Garage Stalls: 3

icon Levels

  • 2 stories

Dimension

  • Width: 61' 0"
  • Depth: 45' 0"
  • Height: 31' 10"

Roof slope

  • 12:12 (primary)
  • 8:12 (secondary)

Walls (exterior)

  • 2"x6"

Ceiling heights

  • 9' (Main)
    9' (Upper)

Foundation Options

  • Basement Standard With Plan
  • Crawlspace $415
  • Slab $415

How Much Will It Cost To Build?

Wondering what it will actually cost to bring this home to life? Get an instant, customized estimate based on your chosen plan and location.

GET MY COST TO BUILD ESTIMATE

Modify This Plan

"Need Content here about modifying your plan"

Customize This Plan

House Plan Features

Suited for corner lots Suited for a back view
Split bedrooms Teen suite/Jack & Jill bath
Island Walk-in pantry Eating bar Nook / breakfast
Great room Mud room Formal dining room Den / office / computer
Covered front porch Covered rear porch Screened porch/sunroom
Oversized garage (3+) Side-entry garage

Reviews

How Much Will It Cost To Build?

Wondering what it will actually cost to bring this home to life? Get an instant, customized estimate based on your chosen plan and location.

GET MY COST TO BUILD ESTIMATE

Modify This Plan

Need changes to the layout or features? Our team can modify any plan to match your vision.

Customize This Plan

House Plan Features

Suited for corner lots Suited for a back view
Split bedrooms Teen suite/Jack & Jill bath
Island Walk-in pantry Eating bar Nook / breakfast
Great room Mud room Formal dining room Den / office / computer
Covered front porch Covered rear porch Screened porch/sunroom
Oversized garage (3+) Side-entry garage

Need Some Quick Tips Or Advice?

We want to help you design the house of your dreams as best as we can. If you can't find the answers you're looking for here, get in touch with our licensed architect or a designer!