Country House Plans - 4 Bed, 4 Bath, 3126 Sq Ft | Plan 7-890 | Monster House Plans

New plans now available on

dreambook-head-logo See all available plans
  • MEMORIAL DAY SALE! - 15% OFF Most Plans

    Some exceptions apply. Prices as marked.

SHARE ON

All plans are copyrighted by the individual designer.

Photographs may reflect custom changes that were not included in the original design.

Design Comments

1,563 sq. ft. per unit Duplex

4 Bedroom, 4 Bath Country House Plan #7-890

Plan Purchase Options

Price: $0

Please uncheck first "Purchase MML without any plan package" under MONSTER MATERIAL LIST

Monster Material List
Optional Add-Ons
guaranted-label.png

Best Price Guarantee

*Payment Plans Now
Available Through

img See if you qualify

Floor Plans

What's included?
  • Main Floor

    Reverse

    Clicking the Reverse button does not mean you are ordering your plan reversed. It is for visualization purposes only. You may reverse the plan by ordering under “Optional Add-ons”.

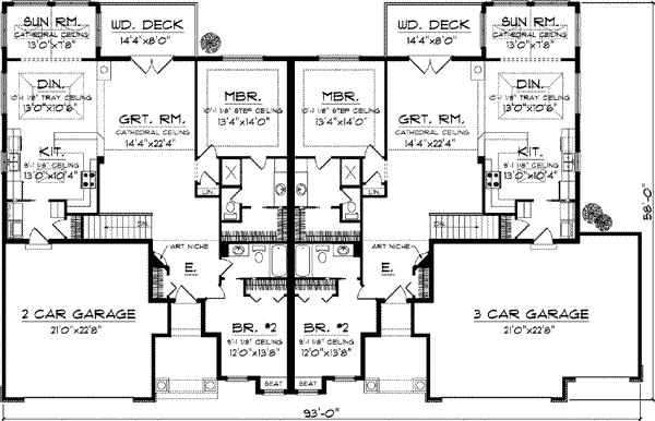
    Main Floor Plan: 7-890

Rear/Alternate Elevations

  • Rear Elevation

    Reverse

    Clicking the Reverse button does not mean you are ordering your plan reversed. It is for visualization purposes only. You may reverse the plan by ordering under “Optional Add-ons”.

    Rear Elevation Plan: 7-890

House Plan Highlights

A careful combination of stone and shingle siding gives this duplex a country flair that will please today's buyer. With two identical units this duplex has been designed to maximize living space for family living. The kitchen features a breakfast bar that accesses the great room and adjacent dining area and a pocket door that leads to the laundry just off the garage. And you can enjoy your morning coffee in the sunroom with its cathedral ceiling just off the dining area. The master suite pleases with its step ceiling detail and walk-in closet while the second bedroom with direct access to the full bath completes the plan. Additional amenities include a tray ceiling in the dining area a cathedral ceiling in the great room an art niche and a window seat in the second bedroom.

This floor plan is found in our Country house plans section

Full Specs and Features

icon Total Living Area

  • Main floor: 3126
  • Total Finished Sq. Ft.: 3126

icon Beds/Baths

  • Bedrooms: 4
  • Full Baths: 4

icon Garage

  • Garage: 1208
  • Garage Stalls: 5

icon Levels

  • 1 story

Dimension

  • Width: 93' 0"
  • Depth: 58' 0"
  • Height: 21' 0"

Roof slope

  • 8:12 (primary)
  • 6:12 (secondary)

Walls (exterior)

  • 2"x6"

Ceiling heights

  • 9' (Main)

Foundation Options

  • Basement Standard With Plan
  • Crawlspace $695
  • Slab $695

How Much Will It Cost To Build?

Wondering what it will actually cost to bring this home to life? Get an instant, customized estimate based on your chosen plan and location.

GET MY COST TO BUILD ESTIMATE

Modify This Plan

"Need Content here about modifying your plan"

Customize This Plan

House Plan Features

Suited for a back view Suited for a narrow lot
Eating bar
No formal living/dining
Covered front porch

Reviews

How Much Will It Cost To Build?

Wondering what it will actually cost to bring this home to life? Get an instant, customized estimate based on your chosen plan and location.

GET MY COST TO BUILD ESTIMATE

Modify This Plan

Need changes to the layout or features? Our team can modify any plan to match your vision.

Customize This Plan

House Plan Features

Suited for a back view Suited for a narrow lot
Eating bar
No formal living/dining
Covered front porch

Need Some Quick Tips Or Advice?

We want to help you design the house of your dreams as best as we can. If you can't find the answers you're looking for here, get in touch with our licensed architect or a designer!