Country House Plans - 4 Bed, 3 Bath, 3263 Sq Ft | Plan 7-933 | Monster House Plans

New plans now available on

dreambook-head-logo See all available plans
SHARE ON

All plans are copyrighted by the individual designer.

Photographs may reflect custom changes that were not included in the original design.

Design Comments

Great Room & Entry ceilings - 2-Story.

4 Bedroom, 3 Bath Country House Plan #7-933

Plan Purchase Options

Price: $0

Please uncheck first "Purchase MML without any plan package" under MONSTER MATERIAL LIST

Monster Material List
Optional Add-Ons
guaranted-label.png

Best Price Guarantee

*Payment Plans Now
Available Through

img See if you qualify

Floor Plans

What's included?
  • Main Floor

    Reverse

    Clicking the Reverse button does not mean you are ordering your plan reversed. It is for visualization purposes only. You may reverse the plan by ordering under “Optional Add-ons”.

    Main Floor Plan: 7-933
  • Upper/Second Floor

    Reverse

    Clicking the Reverse button does not mean you are ordering your plan reversed. It is for visualization purposes only. You may reverse the plan by ordering under “Optional Add-ons”.

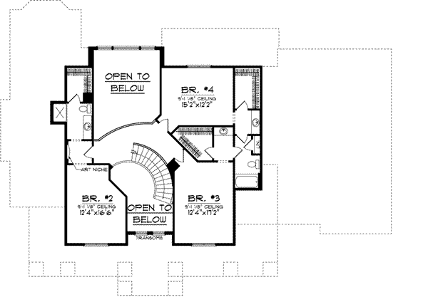
    Upper/Second Floor Plan: 7-933

Rear/Alternate Elevations

  • Rear Elevation

    Reverse

    Clicking the Reverse button does not mean you are ordering your plan reversed. It is for visualization purposes only. You may reverse the plan by ordering under “Optional Add-ons”.

    Rear Elevation Plan: 7-933

House Plan Highlights

A wonderful wrap-around porch defined by graceful columns creates an additional outdoor living space that's perfect for crisp evenings. A two-story ceiling opens to an exquisitely curved staircase that lead you into the living areas of the home. To your left you'll find the formal dining room while to your right you'll see the den with custom built-in shelving. The great room lies beyond the stairs and features a central fireplace flanked by built-in custom cabinets and soaring two-story ceilings. An arched opening flanked by graceful columns leads you to the kitchen and nook area. The master suite lies to the left side of the home and includes a bay window whirlpool tub and spacious walk-in closet. Upstairs you'll find three additional bedrooms each with a private bath and walk-in closet.

This floor plan is found in our Country house plans section

Full Specs and Features

icon Total Living Area

  • Main floor: 2159
  • Upper floor: 1104
  • Total Finished Sq. Ft.: 3263

icon Beds/Baths

  • Bedrooms: 4
  • Full Baths: 3
  • Half Baths: 1

icon Garage

  • Garage: 986
  • Garage Stalls: 3

icon Levels

  • 2 stories

Dimension

  • Width: 82' 4"
  • Depth: 51' 8"
  • Height: 28' 5"

Roof slope

  • 6:12 (primary)
  • 4:12 (secondary)

Walls (exterior)

  • 2"x6"

Ceiling heights

  • 9' (Main)
    9' (Upper)

Foundation Options

  • Basement Standard With Plan
  • Crawlspace $415
  • Slab $415

How Much Will It Cost To Build?

Wondering what it will actually cost to bring this home to life? Get an instant, customized estimate based on your chosen plan and location.

GET MY COST TO BUILD ESTIMATE

Modify This Plan

"Need Content here about modifying your plan"

Customize This Plan

House Plan Features

Suited for corner lots Suited for a back view
Main floor Master Teen suite/Jack & Jill bath
Island Walk-in pantry Butler's pantry Eating bar Nook / breakfast
Great room Main Floor laundry Loft / balcony Open concept floor plan Library Formal dining room Den / office / computer
Covered front porch Covered rear porch Screened porch/sunroom
Vaulted/Volume/Dramatic ceilings
Oversized garage (3+) Side-entry garage

Reviews

How Much Will It Cost To Build?

Wondering what it will actually cost to bring this home to life? Get an instant, customized estimate based on your chosen plan and location.

GET MY COST TO BUILD ESTIMATE

Modify This Plan

Need changes to the layout or features? Our team can modify any plan to match your vision.

Customize This Plan

House Plan Features

Suited for corner lots Suited for a back view
Main floor Master Teen suite/Jack & Jill bath
Island Walk-in pantry Butler's pantry Eating bar Nook / breakfast
Great room Main Floor laundry Loft / balcony Open concept floor plan Library Formal dining room Den / office / computer
Covered front porch Covered rear porch Screened porch/sunroom
Vaulted/Volume/Dramatic ceilings
Oversized garage (3+) Side-entry garage

Need Some Quick Tips Or Advice?

We want to help you design the house of your dreams as best as we can. If you can't find the answers you're looking for here, get in touch with our licensed architect or a designer!