Country House Plans - 6 Bed, 4 Bath, 3674 Sq Ft | Plan 12-767 | Monster House Plans

New plans now available on

dreambook-head-logo See all available plans
SHARE ON

All plans are copyrighted by the individual designer.

Photographs may reflect custom changes that were not included in the original design.

6 Bedroom, 4 Bath Country House Plan #12-767

Plan Purchase Options

Price: $0

Please uncheck first "Purchase MML without any plan package" under MONSTER MATERIAL LIST

Monster Material List
Optional Add-Ons
guaranted-label.png

Best Price Guarantee

*Payment Plans Now
Available Through

img See if you qualify

Floor Plans

What's included?
  • Main Floor

    Reverse

    Clicking the Reverse button does not mean you are ordering your plan reversed. It is for visualization purposes only. You may reverse the plan by ordering under “Optional Add-ons”.

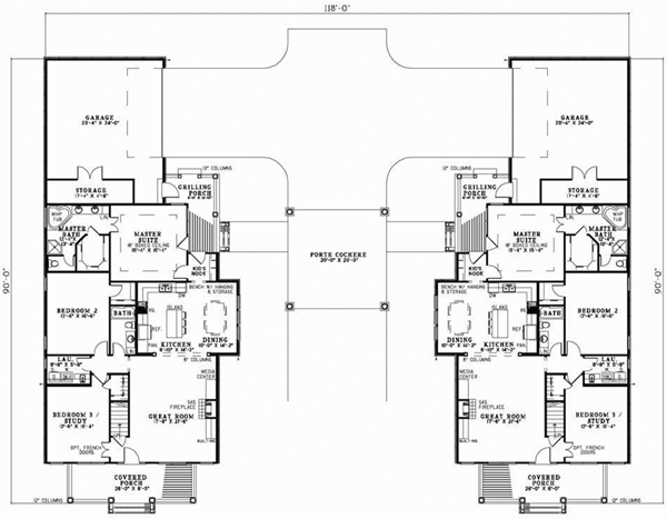
    Main Floor Plan: 12-767
  • Bonus Floor

    Reverse

    Clicking the Reverse button does not mean you are ordering your plan reversed. It is for visualization purposes only. You may reverse the plan by ordering under “Optional Add-ons”.

    Bonus Floor Plan: 12-767

House Plan Highlights

Outside the clean classic lines of this traditional home remind you of evenings spent rocking on the covered front porch as you sipped lemonade. Inside, the home is ready for your modern lifestyle with up to the minute amenities throughout including a main level master suite that includes a 10 foot boxed ceiling. Other features of the master suite are a master bath with a twin vanity, whirlpool bath and a generously sized walk-in closet. The great room with media center and fireplace leads to expanded outdoor living on the grilling porch and covered Port Cochere. Two big downstairs bedrooms share a bathroom. The expansive bonus upstairs is the perfect location for a home theater or game room.

This floor plan is found in our Country house plans section

Full Specs and Features

icon Total Living Area

  • Main floor: 3674
  • Bonus: 798
  • Porches: 418
  • Total Finished Sq. Ft.: 3674

icon Beds/Baths

  • Bedrooms: 6
  • Full Baths: 4

icon Garage

  • Garage: 704
  • Garage Stalls: 4

icon Levels

  • 1 story

Dimension

  • Width: 118' 0"
  • Depth: 90' 0"
  • Height: 26' 0"

Walls (exterior)

  • 2"x4"

Ceiling heights

  • 9' (Main)
    8' (Upper)

Foundation Options

  • Basement $299
  • Daylight basement $399
  • Crawlspace Standard With Plan
  • Slab Standard With Plan

How Much Will It Cost To Build?

Wondering what it will actually cost to bring this home to life? Get an instant, customized estimate based on your chosen plan and location.

GET MY COST TO BUILD ESTIMATE

Modify This Plan

"Need Content here about modifying your plan"

Customize This Plan

House Plan Features

Island Eating bar
Bonus room Great room No formal living/dining Den / office / computer
Covered front porch Covered rear porch Porte Cochere Grilling porch/outdoor kitchen
Vaulted/Volume/Dramatic ceilings
Rear garage Side-entry garage

Reviews

How Much Will It Cost To Build?

Wondering what it will actually cost to bring this home to life? Get an instant, customized estimate based on your chosen plan and location.

GET MY COST TO BUILD ESTIMATE

Modify This Plan

Need changes to the layout or features? Our team can modify any plan to match your vision.

Customize This Plan

House Plan Features

Island Eating bar
Bonus room Great room No formal living/dining Den / office / computer
Covered front porch Covered rear porch Porte Cochere Grilling porch/outdoor kitchen
Vaulted/Volume/Dramatic ceilings
Rear garage Side-entry garage

Need Some Quick Tips Or Advice?

We want to help you design the house of your dreams as best as we can. If you can't find the answers you're looking for here, get in touch with our licensed architect or a designer!