Country House Plans - 4 Bed, 3 Bath, 3820 Sq Ft | Plan 12-563 | Monster House Plans

New plans now available on

dreambook-head-logo See all available plans
SHARE ON

All plans are copyrighted by the individual designer.

Photographs may reflect custom changes that were not included in the original design.

4 Bedroom, 3 Bath Country House Plan #12-563

Plan Purchase Options

Price: $0

Please uncheck first "Purchase MML without any plan package" under MONSTER MATERIAL LIST

Monster Material List
Optional Add-Ons
guaranted-label.png

Best Price Guarantee

*Payment Plans Now
Available Through

img See if you qualify

Floor Plans

What's included?
  • Main Floor

    Reverse

    Clicking the Reverse button does not mean you are ordering your plan reversed. It is for visualization purposes only. You may reverse the plan by ordering under “Optional Add-ons”.

    Main Floor Plan: 12-563
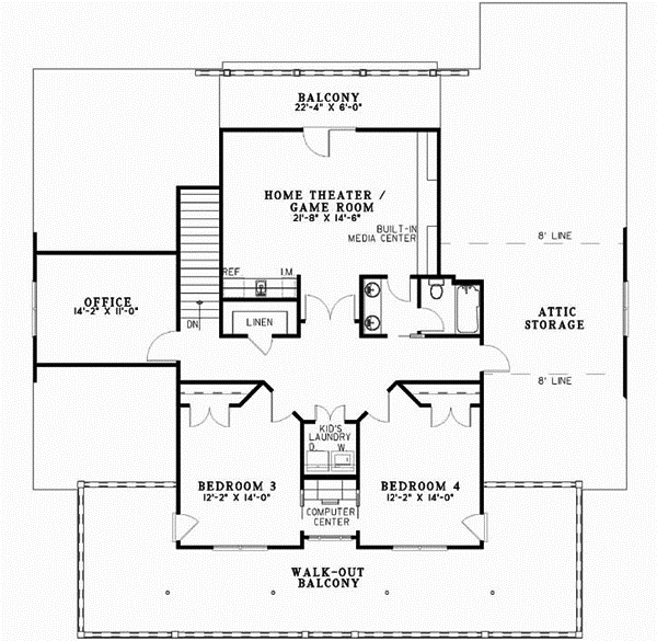
  • Upper/Second Floor

    Reverse

    Clicking the Reverse button does not mean you are ordering your plan reversed. It is for visualization purposes only. You may reverse the plan by ordering under “Optional Add-ons”.

    Upper/Second Floor Plan: 12-563

Rear/Alternate Elevations

  • Rear Elevation

    Reverse

    Clicking the Reverse button does not mean you are ordering your plan reversed. It is for visualization purposes only. You may reverse the plan by ordering under “Optional Add-ons”.

    Rear Elevation Plan: 12-563

House Plan Highlights

A southern traditional style home with handicap accessible features describes this home. Imagine welcoming friends and family on the full length front porch with beautiful columns. Inside, the feeling of grandeur is evident with the spacious great room, with convenient computer center nearby. A charming wrap around window seat in the breakfast room provides conversation over coffee. Your master suite features a personal exercise or hobby room. Upstairs, you'll discover the children's bedrooms, an office and home theater room for weekly showings.

This floor plan is found in our Country house plans section

Full Specs and Features

icon Total Living Area

  • Main floor: 2484
  • Upper floor: 1336
  • Porches: 1019
  • Total Finished Sq. Ft.: 3820

icon Beds/Baths

  • Bedrooms: 4
  • Full Baths: 3
  • Half Baths: 1

icon Garage

  • Garage: 1015
  • Garage Stalls: 3

icon Levels

  • 2 stories

Dimension

  • Width: 65' 6"
  • Depth: 108' 6"
  • Height: 32' 2"

Roof slope

  • 10:12 (primary)

Walls (exterior)

  • 2"x4"

Ceiling heights

  • 9' (Main)
    9' (Upper)

Foundation Options

  • Basement $299
  • Daylight basement $399
  • Crawlspace Standard With Plan
  • Slab Standard With Plan

How Much Will It Cost To Build?

Wondering what it will actually cost to bring this home to life? Get an instant, customized estimate based on your chosen plan and location.

GET MY COST TO BUILD ESTIMATE

Modify This Plan

"Need Content here about modifying your plan"

Customize This Plan

House Plan Features

Suited for corner lots
Main floor Master Guest suite Master sitting area/Nursery
Walk-in pantry Eating bar Nook / breakfast
Hobby / rec-room Great room Gym / exercise room Upstairs laundry Main Floor laundry Media room Loft / balcony Formal dining room Den / office / computer
Covered front porch Covered rear porch Screened porch/sunroom Breezeway
Oversized garage (3+) Rear garage Side-entry garage

Reviews

How Much Will It Cost To Build?

Wondering what it will actually cost to bring this home to life? Get an instant, customized estimate based on your chosen plan and location.

GET MY COST TO BUILD ESTIMATE

Modify This Plan

Need changes to the layout or features? Our team can modify any plan to match your vision.

Customize This Plan

House Plan Features

Suited for corner lots
Main floor Master Guest suite Master sitting area/Nursery
Walk-in pantry Eating bar Nook / breakfast
Hobby / rec-room Great room Gym / exercise room Upstairs laundry Main Floor laundry Media room Loft / balcony Formal dining room Den / office / computer
Covered front porch Covered rear porch Screened porch/sunroom Breezeway
Oversized garage (3+) Rear garage Side-entry garage

Need Some Quick Tips Or Advice?

We want to help you design the house of your dreams as best as we can. If you can't find the answers you're looking for here, get in touch with our licensed architect or a designer!