Country House Plans - 4 Bed, 3 Bath, 3935 Sq Ft | Plan 7-1126 | Monster House Plans

New plans now available on

dreambook-head-logo See all available plans
SHARE ON

All plans are copyrighted by the individual designer.

Photographs may reflect custom changes that were not included in the original design.

Design Comments

Entry 2-Story, Grt Rm 12' Flat, Hearth Rm/Din Rm/Kitchen 10' Flat

4 Bedroom, 3 Bath Country House Plan #7-1126

Plan Purchase Options

Price: $0

Please uncheck first "Purchase MML without any plan package" under MONSTER MATERIAL LIST

Monster Material List
Optional Add-Ons
guaranted-label.png

Best Price Guarantee

*Payment Plans Now
Available Through

img See if you qualify

Floor Plans

What's included?
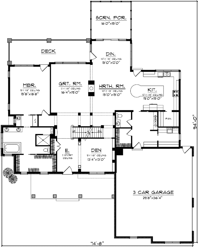
  • Main Floor

    Reverse

    Clicking the Reverse button does not mean you are ordering your plan reversed. It is for visualization purposes only. You may reverse the plan by ordering under “Optional Add-ons”.

    Main Floor Plan: 7-1126
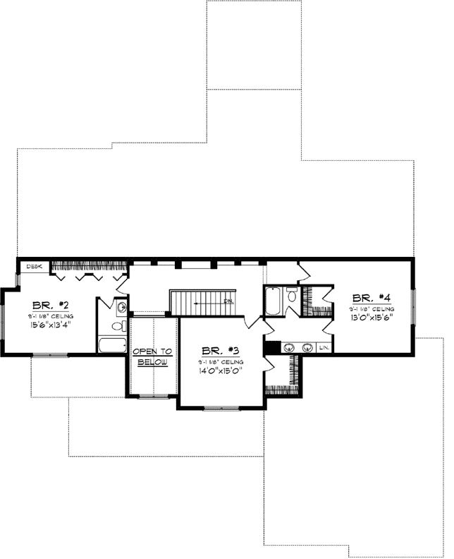
  • Upper/Second Floor

    Reverse

    Clicking the Reverse button does not mean you are ordering your plan reversed. It is for visualization purposes only. You may reverse the plan by ordering under “Optional Add-ons”.

    Upper/Second Floor Plan: 7-1126

Rear/Alternate Elevations

  • Rear Elevation

    Reverse

    Clicking the Reverse button does not mean you are ordering your plan reversed. It is for visualization purposes only. You may reverse the plan by ordering under “Optional Add-ons”.

    Rear Elevation Plan: 7-1126

House Plan Highlights

If you like to sit out front and watch the traffic go buy or enjoy a cup of coffee and the morning paper youll love the size of the porch on this traditional two-story. As you enter the home youll notice a den to the right that is flanked with gracious columns. The main living area of the home is directly ahead where a large great room hearth room kitchen and dining area create an open concept floor plan perfect for just about any size family. The main floor master is located to the left of the home and pampers with a large walk-in closet Jacuzzi tub and dual sinks. Upstairs youll enjoy three additional bedrooms each with either a private bath or access to a Jack and Jill bathroom. A three-stall side-load garage completes the home.

This floor plan is found in our Country house plans section

Full Specs and Features

icon Total Living Area

  • Main floor: 2721
  • Upper floor: 1214
  • Porches: 556
  • Total Finished Sq. Ft.: 3935

icon Beds/Baths

  • Bedrooms: 4
  • Full Baths: 3

icon Garage

  • Garage: 1075
  • Garage Stalls: 3

icon Levels

  • 2 stories

Dimension

  • Width: 74' 8"
  • Depth: 94' 0"
  • Height: 33' 8"

Roof slope

  • 10:12 (primary)
  • 10:12 (secondary)

Walls (exterior)

  • 2"x6"

Ceiling heights

  • 9' (Main)

Foundation Options

  • Basement Standard With Plan
  • Crawlspace $415
  • Slab $415

How Much Will It Cost To Build?

Wondering what it will actually cost to bring this home to life? Get an instant, customized estimate based on your chosen plan and location.

GET MY COST TO BUILD ESTIMATE

Modify This Plan

"Need Content here about modifying your plan"

Customize This Plan

House Plan Features

Suited for a back view Suited for a side-sloping lot Suited for a down-sloping lot
Upstairs Master Guest suite Teen suite/Jack & Jill bath
Island Walk-in pantry Eating bar
Family room Great room Main Floor laundry Open concept floor plan No formal living/dining
Covered front porch Wrap-around porch Screened porch/sunroom
Vaulted/Volume/Dramatic ceilings Safe / gun room

Reviews

How Much Will It Cost To Build?

Wondering what it will actually cost to bring this home to life? Get an instant, customized estimate based on your chosen plan and location.

GET MY COST TO BUILD ESTIMATE

Modify This Plan

Need changes to the layout or features? Our team can modify any plan to match your vision.

Customize This Plan

House Plan Features

Suited for a back view Suited for a side-sloping lot Suited for a down-sloping lot
Upstairs Master Guest suite Teen suite/Jack & Jill bath
Island Walk-in pantry Eating bar
Family room Great room Main Floor laundry Open concept floor plan No formal living/dining
Covered front porch Wrap-around porch Screened porch/sunroom
Vaulted/Volume/Dramatic ceilings Safe / gun room

Need Some Quick Tips Or Advice?

We want to help you design the house of your dreams as best as we can. If you can't find the answers you're looking for here, get in touch with our licensed architect or a designer!