Country House Plans - 6 Bed, 5 Bath, 4623 Sq Ft | Plan 12-1130 | Monster House Plans

New plans now available on

dreambook-head-logo See all available plans
SHARE ON

All plans are copyrighted by the individual designer.

Photographs may reflect custom changes that were not included in the original design.

6 Bedroom, 5 Bath Country House Plan #12-1130

Plan Purchase Options

Price: $0

Please uncheck first "Purchase MML without any plan package" under MONSTER MATERIAL LIST

Monster Material List
Optional Add-Ons
guaranted-label.png

Best Price Guarantee

*Payment Plans Now
Available Through

img See if you qualify

Floor Plans

What's included?
  • Main Floor

    Reverse

    Clicking the Reverse button does not mean you are ordering your plan reversed. It is for visualization purposes only. You may reverse the plan by ordering under “Optional Add-ons”.

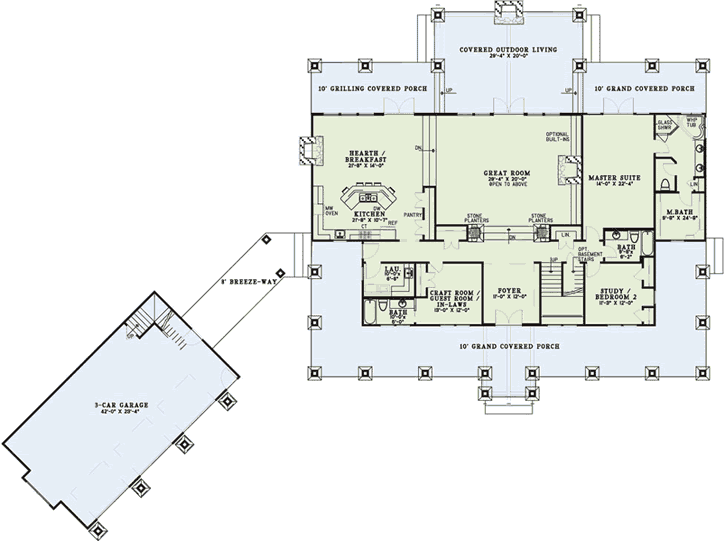
    Main Floor Plan: 12-1130
  • Upper/Second Floor

    Reverse

    Clicking the Reverse button does not mean you are ordering your plan reversed. It is for visualization purposes only. You may reverse the plan by ordering under “Optional Add-ons”.

    Upper/Second Floor Plan: 12-1130

Rear/Alternate Elevations

  • Rear Elevation

    Reverse

    Clicking the Reverse button does not mean you are ordering your plan reversed. It is for visualization purposes only. You may reverse the plan by ordering under “Optional Add-ons”.

    Rear Elevation Plan: 12-1130

House Plan Highlights

This rustic plan offers plenty for the family and for entertaining loved ones throughout the year. The massive wrap-around covered porch is lined with stone based columns. Once inside the foyer, beautiful stone planters flank a couple of stairs that lead down to the great room. The great room has a fireplace and optional built-ins and French doors that open to a huge covered outdoor living area that features a fireplace. The kitchen has a large angled island bar, pantry, and is open to the hearth room that also has a fireplace and access to a covered grilling porch. The master suite has plenty of room and French doors opening to another covered grilling porch. And the master bath features a corner glass shower and a corner whirlpool tub and a large walk-in closet. There’s also a study/bedroom with an adjacent full bathroom and a craft room/guest room with a full bathroom on the first floor. Upstairs the grand balcony overlooks the great room. Bedrooms 3, 4, and 5 each have walk-in closets and bedroom bedroom3 has a private full bathroom. The large game room/home theater is sure to entertain and has a convenient half bathroom.

This floor plan is found in our Country house plans section

Full Specs and Features

icon Total Living Area

  • Main floor: 2942
  • Upper floor: 1681
  • Bonus: 705
  • Porches: 2513
  • Total Finished Sq. Ft.: 4623

icon Beds/Baths

  • Bedrooms: 6
  • Full Baths: 5
  • Half Baths: 1

icon Garage

  • Garage: 1042
  • Garage Stalls: 3

icon Levels

  • 2 stories

Dimension

  • Width: 139' 2"
  • Depth: 102' 2"

Roof slope

  • 8:12 (primary)
  • 3:12 (secondary)

Walls (exterior)

  • 2"x4"

Ceiling heights

  • 9' (Main)
    9' (Upper)

Foundation Options

  • Basement $299
  • Daylight basement $399
  • Crawlspace Standard With Plan
  • Slab Standard With Plan

How Much Will It Cost To Build?

Wondering what it will actually cost to bring this home to life? Get an instant, customized estimate based on your chosen plan and location.

GET MY COST TO BUILD ESTIMATE

Modify This Plan

"Need Content here about modifying your plan"

Customize This Plan

House Plan Features

Suited for a back view
Main floor Master Guest suite Teen suite/Jack & Jill bath
Island Eating bar Nook / breakfast Hearth room
Bonus room Great room Main Floor laundry Media room Loft / balcony Open concept floor plan No formal living/dining Den / office / computer
Covered front porch Covered rear porch Wrap-around porch Breezeway
Vaulted/Volume/Dramatic ceilings Photos Available
Oversized garage (3+) Detached garage

Reviews

How Much Will It Cost To Build?

Wondering what it will actually cost to bring this home to life? Get an instant, customized estimate based on your chosen plan and location.

GET MY COST TO BUILD ESTIMATE

Modify This Plan

Need changes to the layout or features? Our team can modify any plan to match your vision.

Customize This Plan

House Plan Features

Suited for a back view
Main floor Master Guest suite Teen suite/Jack & Jill bath
Island Eating bar Nook / breakfast Hearth room
Bonus room Great room Main Floor laundry Media room Loft / balcony Open concept floor plan No formal living/dining Den / office / computer
Covered front porch Covered rear porch Wrap-around porch Breezeway
Vaulted/Volume/Dramatic ceilings Photos Available
Oversized garage (3+) Detached garage

Need Some Quick Tips Or Advice?

We want to help you design the house of your dreams as best as we can. If you can't find the answers you're looking for here, get in touch with our licensed architect or a designer!