Country House Plans - 1 Bed, 1 Bath, 647 Sq Ft | Plan 77-168 | Monster House Plans

New plans now available on

dreambook-head-logo See all available plans
SHARE ON

All plans are copyrighted by the individual designer.

Photographs may reflect custom changes that were not included in the original design.

1 Bedroom, 1 Bath Country House Plan #77-168

Plan Purchase Options

Price: $0

Please uncheck first "Purchase MML without any plan package" under MONSTER MATERIAL LIST

Monster Material List
Optional Add-Ons
guaranted-label.png

Best Price Guarantee

*Payment Plans Now
Available Through

img See if you qualify

Floor Plans

What's included?
  • Main Floor

    Reverse

    Clicking the Reverse button does not mean you are ordering your plan reversed. It is for visualization purposes only. You may reverse the plan by ordering under “Optional Add-ons”.

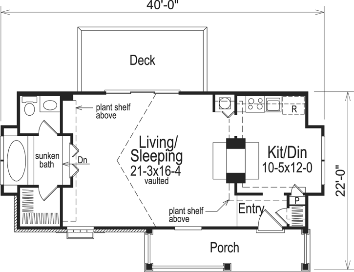
    Main Floor Plan: 77-168

Rear/Alternate Elevations

  • Rear Elevation

    Reverse

    Clicking the Reverse button does not mean you are ordering your plan reversed. It is for visualization purposes only. You may reverse the plan by ordering under “Optional Add-ons”.

    Rear Elevation Plan: 77-168

House Plan Highlights

Sensational Cottage Retreat647 total square feet of living areaSpecial featuresA roomy vaulted kitchen has a bayed dining area and fireplace The spacious vaulted room for livingsleeping has plant shelves on each end a stone fireplace and wide glass doors to the deck Step down into the sunken vaulted bath featuring a 6'-0 whirlpool tub-in-a-bay with shelves at each end for storageA large Palladian window adorns each end of the cottage maintaining a cheerful atmosphere throughout1 livingsleeping room 1 bathCrawl space foundation

This floor plan is found in our Country house plans section

Full Specs and Features

icon Total Living Area

  • Main floor: 647
  • Porches: 103
  • Total Finished Sq. Ft.: 647

icon Beds/Baths

  • Bedrooms: 1
  • Full Baths: 1

icon Levels

  • 1 story

Dimension

  • Width: 36' 0"
  • Depth: 22' 0"
  • Height: 17' 6"

Roof slope

  • 10:12 (primary)
  • 5:12 (secondary)

Walls (exterior)

  • 2"x4"

Ceiling heights

  • 8' (Main)

Foundation Options

  • Crawlspace Standard With Plan
  • Slab $250

How Much Will It Cost To Build?

Wondering what it will actually cost to bring this home to life? Get an instant, customized estimate based on your chosen plan and location.

GET MY COST TO BUILD ESTIMATE

Modify This Plan

"Need Content here about modifying your plan"

Customize This Plan

House Plan Features

Suited for a narrow lot Suited For A Vacation Home
In-law quarters/apartment
Open concept floor plan No formal living/dining
Covered front porch

Reviews

How Much Will It Cost To Build?

Wondering what it will actually cost to bring this home to life? Get an instant, customized estimate based on your chosen plan and location.

GET MY COST TO BUILD ESTIMATE

Modify This Plan

Need changes to the layout or features? Our team can modify any plan to match your vision.

Customize This Plan

House Plan Features

Suited for a narrow lot Suited For A Vacation Home
In-law quarters/apartment
Open concept floor plan No formal living/dining
Covered front porch

Need Some Quick Tips Or Advice?

We want to help you design the house of your dreams as best as we can. If you can't find the answers you're looking for here, get in touch with our licensed architect or a designer!