Craftsman House Plans - 3 Bed, 2 Bath, 1565 Sq Ft | Plan 7-943 | Monster House Plans

New plans now available on

dreambook-head-logo See all available plans
SHARE ON

All plans are copyrighted by the individual designer.

Photographs may reflect custom changes that were not included in the original design.

3 Bedroom, 2 Bath Craftsman House Plan #7-943

Plan Purchase Options

Price: $0

Please uncheck first "Purchase MML without any plan package" under MONSTER MATERIAL LIST

Monster Material List
Optional Add-Ons
guaranted-label.png

Best Price Guarantee

*Payment Plans Now
Available Through

img See if you qualify

Floor Plans

What's included?
  • Main Floor

    Reverse

    Clicking the Reverse button does not mean you are ordering your plan reversed. It is for visualization purposes only. You may reverse the plan by ordering under “Optional Add-ons”.

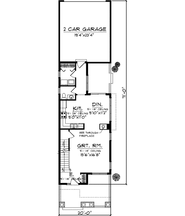
    Main Floor Plan: 7-943
  • Upper/Second Floor

    Reverse

    Clicking the Reverse button does not mean you are ordering your plan reversed. It is for visualization purposes only. You may reverse the plan by ordering under “Optional Add-ons”.

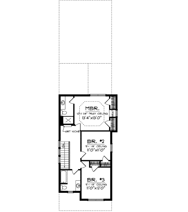
    Upper/Second Floor Plan: 7-943

Rear/Alternate Elevations

  • Rear Elevation

    Reverse

    Clicking the Reverse button does not mean you are ordering your plan reversed. It is for visualization purposes only. You may reverse the plan by ordering under “Optional Add-ons”.

    Rear Elevation Plan: 7-943

House Plan Highlights

Craftsman detailing highlights this practical alley-load two-story home. Making use of every square foot of space this plan was carefully designed to include a kitchen dining room and great room combination that blend together to create a comfortable daily living area. Amenities include nine-foot ceilings throughout both levels a see-through fireplace and kitchen island. The bedrooms are located on the second floor and include a master suite with tray ceiling dual closets and a window seat. Two additional bedrooms and a full bath complete the home. Access to the two-stall garage is out the back of the home beyond the laundry room.

This floor plan is found in our Craftsman house plans section

Full Specs and Features

icon Total Living Area

  • Main floor: 800
  • Upper floor: 765
  • Total Finished Sq. Ft.: 1565

icon Beds/Baths

  • Bedrooms: 3
  • Full Baths: 2
  • Half Baths: 1

icon Garage

  • Garage: 475
  • Garage Stalls: 2

icon Levels

  • 2 stories

Dimension

  • Width: 20' 0"
  • Depth: 71' 0"
  • Height: 30' 6"

Roof slope

  • 8:12 (primary)
  • 10:12 (secondary)

Walls (exterior)

  • 2"x6"

Ceiling heights

  • 9' (Main)
    9' (Upper)

Foundation Options

  • Basement Standard With Plan
  • Crawlspace $415
  • Slab $415

How Much Will It Cost To Build?

Wondering what it will actually cost to bring this home to life? Get an instant, customized estimate based on your chosen plan and location.

GET MY COST TO BUILD ESTIMATE

Modify This Plan

"Need Content here about modifying your plan"

Customize This Plan

House Plan Features

Suited for a back view
Split bedrooms
Island Walk-in pantry Eating bar
Great room Open concept floor plan No formal living/dining
Covered front porch
Vaulted/Volume/Dramatic ceilings

Reviews

How Much Will It Cost To Build?

Wondering what it will actually cost to bring this home to life? Get an instant, customized estimate based on your chosen plan and location.

GET MY COST TO BUILD ESTIMATE

Modify This Plan

Need changes to the layout or features? Our team can modify any plan to match your vision.

Customize This Plan

House Plan Features

Suited for a back view
Split bedrooms
Island Walk-in pantry Eating bar
Great room Open concept floor plan No formal living/dining
Covered front porch
Vaulted/Volume/Dramatic ceilings

Need Some Quick Tips Or Advice?

We want to help you design the house of your dreams as best as we can. If you can't find the answers you're looking for here, get in touch with our licensed architect or a designer!