Craftsman House Plans - 3 Bed, 2 Bath, 1883 Sq Ft | Plan 7-322 | Monster House Plans

New plans now available on

dreambook-head-logo See all available plans
SHARE ON

All plans are copyrighted by the individual designer.

Photographs may reflect custom changes that were not included in the original design.

3 Bedroom, 2 Bath Craftsman House Plan #7-322

Plan Purchase Options

Price: $0

Please uncheck first "Purchase MML without any plan package" under MONSTER MATERIAL LIST

Monster Material List
Optional Add-Ons
guaranted-label.png

Best Price Guarantee

*Payment Plans Now
Available Through

img See if you qualify

Floor Plans

What's included?
  • Main Floor

    Reverse

    Clicking the Reverse button does not mean you are ordering your plan reversed. It is for visualization purposes only. You may reverse the plan by ordering under “Optional Add-ons”.

    Main Floor Plan: 7-322
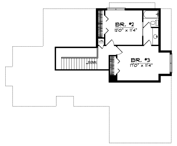
  • Upper/Second Floor

    Reverse

    Clicking the Reverse button does not mean you are ordering your plan reversed. It is for visualization purposes only. You may reverse the plan by ordering under “Optional Add-ons”.

    Upper/Second Floor Plan: 7-322

Rear/Alternate Elevations

  • Rear Elevation

    Reverse

    Clicking the Reverse button does not mean you are ordering your plan reversed. It is for visualization purposes only. You may reverse the plan by ordering under “Optional Add-ons”.

    Rear Elevation Plan: 7-322

House Plan Highlights

Pillars gables shingles and other elements of the Craftsman style will make this home a welcome addition to any neighborhood. A formal dining room and a spacious great room flank the entry. In the great room a fireplace adds cheer to any gathering. The U-shaped kitchen features a snack bar a large pantry and an adjacent nook with rear-yard access. Located on the first floor for privacy the master suite is designed to pamper. Complete with a walk-in closet and a sumptuous bath this room guarantees relaxation. Two bedrooms upstairs share a private bath with a separated vanity that will add ease to busy mornings. This plan also features a two-car garage laundry room and a half bath.

This floor plan is found in our Craftsman house plans section

Full Specs and Features

icon Total Living Area

  • Main floor: 1365
  • Upper floor: 518
  • Total Finished Sq. Ft.: 1883

icon Beds/Baths

  • Bedrooms: 3
  • Full Baths: 2
  • Half Baths: 1

icon Garage

  • Garage: 426
  • Garage Stalls: 2

icon Levels

  • 2 stories

Dimension

  • Width: 54' 4"
  • Depth: 46' 0"
  • Height: 28' 0"

Roof slope

  • 7:12 (primary)
  • 9:12 (secondary)

Walls (exterior)

  • 2"x6"

Ceiling heights

  • 8' (Main)
    8' (Upper)

Foundation Options

  • Basement Standard With Plan
  • Crawlspace $415
  • Slab $415

How Much Will It Cost To Build?

Wondering what it will actually cost to bring this home to life? Get an instant, customized estimate based on your chosen plan and location.

GET MY COST TO BUILD ESTIMATE

Modify This Plan

"Need Content here about modifying your plan"

Customize This Plan

House Plan Features

Suited for a back view Suited for a narrow lot
Upstairs Master
Nook / breakfast
Family room Open concept floor plan Formal dining room Formal living room
Covered front porch
Vaulted/Volume/Dramatic ceilings

Reviews

How Much Will It Cost To Build?

Wondering what it will actually cost to bring this home to life? Get an instant, customized estimate based on your chosen plan and location.

GET MY COST TO BUILD ESTIMATE

Modify This Plan

Need changes to the layout or features? Our team can modify any plan to match your vision.

Customize This Plan

House Plan Features

Suited for a back view Suited for a narrow lot
Upstairs Master
Nook / breakfast
Family room Open concept floor plan Formal dining room Formal living room
Covered front porch
Vaulted/Volume/Dramatic ceilings

Need Some Quick Tips Or Advice?

We want to help you design the house of your dreams as best as we can. If you can't find the answers you're looking for here, get in touch with our licensed architect or a designer!