Craftsman House Plans - 3 Bed, 2 Bath, 2522 Sq Ft | Plan 85-221 | Monster House Plans

New plans now available on

dreambook-head-logo See all available plans
SHARE ON

All plans are copyrighted by the individual designer.

Photographs may reflect custom changes that were not included in the original design.

Design Comments

Plans include a multiple build license. Additional foundations available for $175

3 Bedroom, 2 Bath Craftsman House Plan #85-221

Plan Purchase Options

Price: $0

Please uncheck first "Purchase MML without any plan package" under MONSTER MATERIAL LIST

Monster Material List
Optional Add-Ons
guaranted-label.png

Best Price Guarantee

*Payment Plans Now
Available Through

img See if you qualify

Floor Plans

What's included?
  • Main Floor

    Reverse

    Clicking the Reverse button does not mean you are ordering your plan reversed. It is for visualization purposes only. You may reverse the plan by ordering under “Optional Add-ons”.

    Main Floor Plan: 85-221
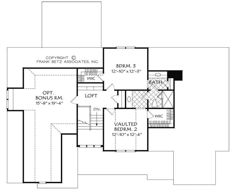
  • Upper/Second Floor

    Reverse

    Clicking the Reverse button does not mean you are ordering your plan reversed. It is for visualization purposes only. You may reverse the plan by ordering under “Optional Add-ons”.

    Upper/Second Floor Plan: 85-221

House Plan Highlights

The Craftsman style has been popular for many years and is as desirable now more than ever. This design is a modern example of the Craftsman style combining authentic details with modern amenities. Steeply pitched gables with brackets, mixed materials like stone and sidings along with double columns on pedestals all define the style. The main floor is anchored by a large family room with built-in cabinetry and a warming fireplace. The island kitchen is open and well equipped. The flex room is just that- a multi-purpose space that can be a formal dining room, living room or media space. The master suite is rearward to take advantage of views and natural light. The free standing soaking tub is the focal point of a well-appointed bathroom. The upper floor has a tech center at the top of the stairs, perfect for computers, games or homework. The secondary bedrooms share a compartmentalized bathroom. The large bonus room has many uses for the occupants to choose.

This floor plan is found in our Craftsman house plans section

Full Specs and Features

icon Total Living Area

  • Main floor: 1866
  • Upper floor: 656
  • Basement: 1866
  • Bonus: 525
  • Total Finished Sq. Ft.: 2522

icon Beds/Baths

  • Bedrooms: 3
  • Full Baths: 2
  • Half Baths: 1

icon Garage

  • Garage: 514
  • Garage Stalls: 2

icon Levels

  • 2 stories

Dimension

  • Width: 66' 0"
  • Depth: 56' 0"
  • Height: 26' 6"

Roof slope

  • 12:12 (primary)

Walls (exterior)

  • 2"x4"

Ceiling heights

  • 9' (Main)
    8' (Upper)

Exterior Finish

  • Combination

Roof Framing

  • Stick Frame

Foundation Options

  • Walk-out basement Standard With Plan

How Much Will It Cost To Build?

Wondering what it will actually cost to bring this home to life? Get an instant, customized estimate based on your chosen plan and location.

GET MY COST TO BUILD ESTIMATE

Modify This Plan

"Need Content here about modifying your plan"

Customize This Plan

House Plan Features

Suited for corner lots
Main floor Master Teen suite/Jack & Jill bath
Walk-in pantry Eating bar
Bonus room Family room Main Floor laundry Open concept floor plan Mud room No formal living/dining Unfinished/future space Flex Space
Covered front porch Covered rear porch
Vaulted/Volume/Dramatic ceilings Photos Available 3D Model Available
Side-entry garage

Reviews

How Much Will It Cost To Build?

Wondering what it will actually cost to bring this home to life? Get an instant, customized estimate based on your chosen plan and location.

GET MY COST TO BUILD ESTIMATE

Modify This Plan

Need changes to the layout or features? Our team can modify any plan to match your vision.

Customize This Plan

House Plan Features

Suited for corner lots
Main floor Master Teen suite/Jack & Jill bath
Walk-in pantry Eating bar
Bonus room Family room Main Floor laundry Open concept floor plan Mud room No formal living/dining Unfinished/future space Flex Space
Covered front porch Covered rear porch
Vaulted/Volume/Dramatic ceilings Photos Available 3D Model Available
Side-entry garage

Need Some Quick Tips Or Advice?

We want to help you design the house of your dreams as best as we can. If you can't find the answers you're looking for here, get in touch with our licensed architect or a designer!