Craftsman House Plans - 3 Bed, 2 Bath, 2792 Sq Ft | Plan 38-274 | Monster House Plans

New plans now available on

dreambook-head-logo See all available plans
SHARE ON

All plans are copyrighted by the individual designer.

Photographs may reflect custom changes that were not included in the original design.

3 Bedroom, 2 Bath Craftsman House Plan #38-274

Plan Purchase Options

Price: $0

Please uncheck first "Purchase MML without any plan package" under MONSTER MATERIAL LIST

Monster Material List
Optional Add-Ons
guaranted-label.png

Best Price Guarantee

*Payment Plans Now
Available Through

img See if you qualify

Floor Plans

What's included?
  • Main Floor

    Reverse

    Clicking the Reverse button does not mean you are ordering your plan reversed. It is for visualization purposes only. You may reverse the plan by ordering under “Optional Add-ons”.

    Main Floor Plan: 38-274
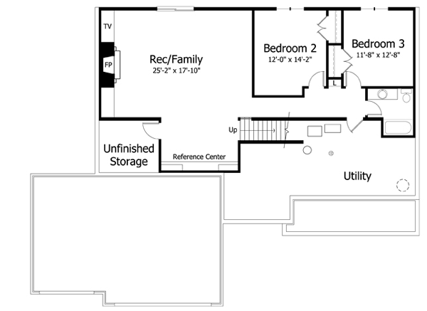
  • Lower Floor

    Reverse

    Clicking the Reverse button does not mean you are ordering your plan reversed. It is for visualization purposes only. You may reverse the plan by ordering under “Optional Add-ons”.

    Lower Floor Plan: 38-274

House Plan Highlights

Without losing the integrity of the design, this beautiful plan was carefully thought throughout to keep 'cost to build' in mind. This house has various amenities such as, gas fireplace, walk in pantry, separate master shower, built-ins and a spacious owners suite. With an open floor plan, the great room, kitchen, breakfast and owner's suite take advantage of the view to the backyard. The plan comes with 3 alternate fronts (traditional, country and craftsman) and 3 foundation options to meet most lot needs (full basement, daylight basement and full walkout). Similar plans ranging in number of bedrooms and square footage are also available in this series.

This floor plan is found in our Craftsman house plans section

Full Specs and Features

icon Total Living Area

  • Main floor: 1700
  • Lower Floor: 1092
  • Basement: 608
  • Total Finished Sq. Ft.: 2792

icon Beds/Baths

  • Bedrooms: 3
  • Full Baths: 2
  • Half Baths: 1

icon Garage

  • Garage: 670
  • Garage Stalls: 3

icon Levels

  • 1 story

Dimension

  • Width: 64' 8"
  • Depth: 52' 8"
  • Height: 24' 0"

Roof slope

  • 9:12 (primary)

Walls (exterior)

  • 2"x6"

Ceiling heights

  • 9' (Main)

Foundation Options

  • Basement $400
  • Daylight basement $400
  • Walk-out basement $400
  • Crawlspace Standard With Plan
  • Slab $400

How Much Will It Cost To Build?

Wondering what it will actually cost to bring this home to life? Get an instant, customized estimate based on your chosen plan and location.

GET MY COST TO BUILD ESTIMATE

Modify This Plan

"Need Content here about modifying your plan"

Customize This Plan

House Plan Features

Suited for a back view Suited for a down-sloping lot
Island Walk-in pantry Eating bar Nook / breakfast
Hobby / rec-room Great room Open concept floor plan Formal dining room
Covered front porch
Photos Available
Oversized garage (3+)

Reviews

How Much Will It Cost To Build?

Wondering what it will actually cost to bring this home to life? Get an instant, customized estimate based on your chosen plan and location.

GET MY COST TO BUILD ESTIMATE

Modify This Plan

Need changes to the layout or features? Our team can modify any plan to match your vision.

Customize This Plan

House Plan Features

Suited for a back view Suited for a down-sloping lot
Island Walk-in pantry Eating bar Nook / breakfast
Hobby / rec-room Great room Open concept floor plan Formal dining room
Covered front porch
Photos Available
Oversized garage (3+)

Need Some Quick Tips Or Advice?

We want to help you design the house of your dreams as best as we can. If you can't find the answers you're looking for here, get in touch with our licensed architect or a designer!