Craftsman House Plans - 4 Bed, 2 Bath, 3450 Sq Ft | Plan 7-1226 | Monster House Plans

New plans now available on

dreambook-head-logo See all available plans
SHARE ON

All plans are copyrighted by the individual designer.

Photographs may reflect custom changes that were not included in the original design.

Design Comments

Entry 2 Story, Great Rm 2 Story, Din Rm 10', Nook 10' Step, Kitch 10' Step, Hearth 10' Step.

4 Bedroom, 2 Bath Craftsman House Plan #7-1226

Plan Purchase Options

Price: $0

Please uncheck first "Purchase MML without any plan package" under MONSTER MATERIAL LIST

Monster Material List
Optional Add-Ons
guaranted-label.png

Best Price Guarantee

*Payment Plans Now
Available Through

img See if you qualify

Floor Plans

What's included?
  • Main Floor

    Reverse

    Clicking the Reverse button does not mean you are ordering your plan reversed. It is for visualization purposes only. You may reverse the plan by ordering under “Optional Add-ons”.

    Main Floor Plan: 7-1226
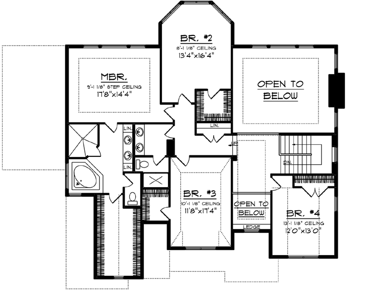
  • Upper/Second Floor

    Reverse

    Clicking the Reverse button does not mean you are ordering your plan reversed. It is for visualization purposes only. You may reverse the plan by ordering under “Optional Add-ons”.

    Upper/Second Floor Plan: 7-1226

Rear/Alternate Elevations

  • Rear Elevation

    Reverse

    Clicking the Reverse button does not mean you are ordering your plan reversed. It is for visualization purposes only. You may reverse the plan by ordering under “Optional Add-ons”.

    Rear Elevation Plan: 7-1226

House Plan Highlights

This full two-story boasts just under 3500 square feet and promises plenty of space.A formal dining room lies to the left of the two-story entry and a den with double French doors lies to the right.The kitchen nook and hearth room all boast step ceilings while the great room features a full two-story view.The open-concept floor plan provides plenty of room for entertaining.The master is located on the second floor and includes a step ceiling massive walk-in closet and Jacuzzi tub.Three additional bedrooms and a full bath are also located on the second level.Impressive views of the entry and great room below are enjoyed from upstairs.A three-stall split-load garage completes the home.

This floor plan is found in our Craftsman house plans section

Full Specs and Features

icon Total Living Area

  • Main floor: 1796
  • Upper floor: 1654
  • Basement: 1796
  • Porches: 165
  • Total Finished Sq. Ft.: 3450

icon Beds/Baths

  • Bedrooms: 4
  • Full Baths: 2
  • Half Baths: 1

icon Garage

  • Garage: 711
  • Garage Stalls: 3

icon Levels

  • 2 stories

Dimension

  • Width: 66' 0"
  • Depth: 55' 6"
  • Height: 33' 3"

Roof slope

  • 12:12 (primary)
  • 8:12 (secondary)

Walls (exterior)

  • 2"x6"

Ceiling heights

  • 9' (Main)
    8' (Upper)
    8' (Lower)

Exterior Finish

  • Combination

Roof Framing

  • Truss

Foundation Options

  • Basement Standard With Plan
  • Crawlspace $415
  • Slab $415

How Much Will It Cost To Build?

Wondering what it will actually cost to bring this home to life? Get an instant, customized estimate based on your chosen plan and location.

GET MY COST TO BUILD ESTIMATE

Modify This Plan

"Need Content here about modifying your plan"

Customize This Plan

House Plan Features

Suited for corner lots Suited for a back view Suited for a down-sloping lot
Upstairs Master Teen suite/Jack & Jill bath
Island Walk-in pantry Eating bar
Family room Main Floor laundry Loft / balcony Library Formal dining room Formal living room
Covered front porch Covered rear porch Wrap-around porch Screened porch/sunroom
Vaulted/Volume/Dramatic ceilings
Oversized garage (3+) Side-entry garage

Reviews

How Much Will It Cost To Build?

Wondering what it will actually cost to bring this home to life? Get an instant, customized estimate based on your chosen plan and location.

GET MY COST TO BUILD ESTIMATE

Modify This Plan

Need changes to the layout or features? Our team can modify any plan to match your vision.

Customize This Plan

House Plan Features

Suited for corner lots Suited for a back view Suited for a down-sloping lot
Upstairs Master Teen suite/Jack & Jill bath
Island Walk-in pantry Eating bar
Family room Main Floor laundry Loft / balcony Library Formal dining room Formal living room
Covered front porch Covered rear porch Wrap-around porch Screened porch/sunroom
Vaulted/Volume/Dramatic ceilings
Oversized garage (3+) Side-entry garage

Need Some Quick Tips Or Advice?

We want to help you design the house of your dreams as best as we can. If you can't find the answers you're looking for here, get in touch with our licensed architect or a designer!