Craftsman House Plans - 4 Bed, 3 Bath, 4105 Sq Ft | Plan 7-1264 | Monster House Plans

New plans now available on

dreambook-head-logo See all available plans
SHARE ON

All plans are copyrighted by the individual designer.

Photographs may reflect custom changes that were not included in the original design.

Design Comments

Great. Rm. 2 Story Cathedral.

4 Bedroom, 3 Bath Craftsman House Plan #7-1264

Plan Purchase Options

Price: $0

Please uncheck first "Purchase MML without any plan package" under MONSTER MATERIAL LIST

Monster Material List
Optional Add-Ons
guaranted-label.png

Best Price Guarantee

*Payment Plans Now
Available Through

img See if you qualify

Floor Plans

What's included?
  • Main Floor

    Reverse

    Clicking the Reverse button does not mean you are ordering your plan reversed. It is for visualization purposes only. You may reverse the plan by ordering under “Optional Add-ons”.

    Main Floor Plan: 7-1264
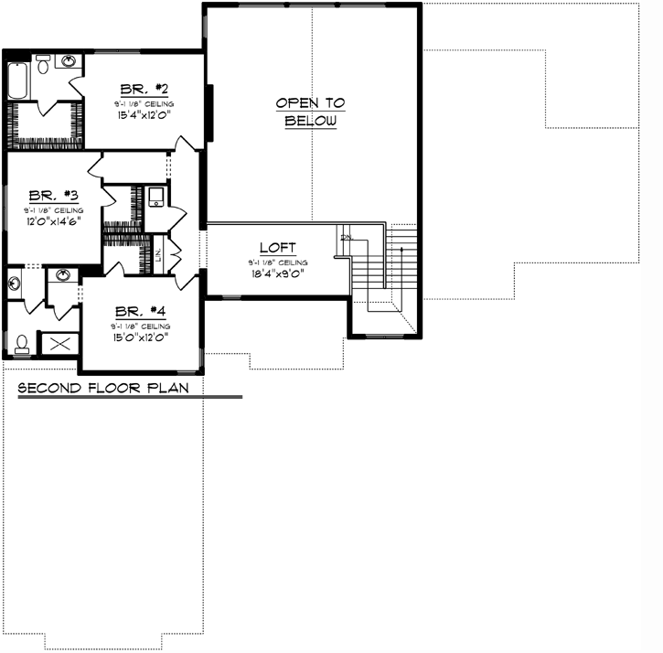
  • Upper/Second Floor

    Reverse

    Clicking the Reverse button does not mean you are ordering your plan reversed. It is for visualization purposes only. You may reverse the plan by ordering under “Optional Add-ons”.

    Upper/Second Floor Plan: 7-1264

Rear/Alternate Elevations

  • Rear Elevation

    Reverse

    Clicking the Reverse button does not mean you are ordering your plan reversed. It is for visualization purposes only. You may reverse the plan by ordering under “Optional Add-ons”.

    Rear Elevation Plan: 7-1264

House Plan Highlights

Massive columns define the entry of this Craftsman style home drawing you in.Youll be impressed with the cathedral ceiling found in the great room that is directly ahead as you enter the home.A see-through fireplace defines the great room from the kitchen and dining area without impeding sight lines.A spacious walk-in pantry is hidden behind the kitchen for easy access.The main floor master includes 10 ceilings in the bedroom a spacious walk-in closet with center island and Jacuzzi tub.Three additional bedrooms two of which share a Jack-and-Jill bathroom are located on the second floor. The other bedroom enjoys a private bath while they all have walk-in closets.A loft is located on the second level and is perfect for a computer nook or private reading area.A three-stall side-load garage completes the home.

This floor plan is found in our Craftsman house plans section

Full Specs and Features

icon Total Living Area

  • Main floor: 2864
  • Upper floor: 1241
  • Porches: 442
  • Total Finished Sq. Ft.: 4105

icon Beds/Baths

  • Bedrooms: 4
  • Full Baths: 3
  • Half Baths: 1

icon Garage

  • Garage: 903
  • Garage Stalls: 3

icon Levels

  • 2 stories

Dimension

  • Width: 81' 8"
  • Depth: 83' 0"
  • Height: 32' 8"

Roof slope

  • 10:12 (primary)
  • 8:12 (secondary)

Walls (exterior)

  • 2"x6"

Ceiling heights

  • 10' (Main)
    9' (Upper)

Exterior Finish

  • Combination

Roof Framing

  • Truss

Foundation Options

  • Basement Standard With Plan
  • Crawlspace $415
  • Slab $415

How Much Will It Cost To Build?

Wondering what it will actually cost to bring this home to life? Get an instant, customized estimate based on your chosen plan and location.

GET MY COST TO BUILD ESTIMATE

Modify This Plan

"Need Content here about modifying your plan"

Customize This Plan

House Plan Features

Suited for a back view Suited for a down-sloping lot Zero lot-line
Island Eating bar
Family room Great room Open concept floor plan No formal living/dining Den / office / computer

Reviews

How Much Will It Cost To Build?

Wondering what it will actually cost to bring this home to life? Get an instant, customized estimate based on your chosen plan and location.

GET MY COST TO BUILD ESTIMATE

Modify This Plan

Need changes to the layout or features? Our team can modify any plan to match your vision.

Customize This Plan

House Plan Features

Suited for a back view Suited for a down-sloping lot Zero lot-line
Island Eating bar
Family room Great room Open concept floor plan No formal living/dining Den / office / computer

Need Some Quick Tips Or Advice?

We want to help you design the house of your dreams as best as we can. If you can't find the answers you're looking for here, get in touch with our licensed architect or a designer!