Early American House Plans - 3 Bed, 2 Bath, 2265 Sq Ft | Plan 35-380 | Monster House Plans

New plans now available on

dreambook-head-logo See all available plans
  • MEMORIAL DAY SALE! - 15% OFF Most Plans

    Some exceptions apply. Prices as marked.

All plans are copyrighted by the individual designer.

Photographs may reflect custom changes that were not included in the original design.

3 Bedroom, 2 Bath Early American House Plan #35-380

Plan Purchase Options

Price: $0

Please uncheck first "Purchase MML without any plan package" under MONSTER MATERIAL LIST

Monster Material List
Optional Add-Ons
guaranted-label.png

Best Price Guarantee

*Payment Plans Now
Available Through

img See if you qualify

Floor Plans

What's included?
  • Main Floor

    Reverse

    Clicking the Reverse button does not mean you are ordering your plan reversed. It is for visualization purposes only. You may reverse the plan by ordering under “Optional Add-ons”.

    Main Floor Plan: 35-380
  • Upper/Second Floor

    Reverse

    Clicking the Reverse button does not mean you are ordering your plan reversed. It is for visualization purposes only. You may reverse the plan by ordering under “Optional Add-ons”.

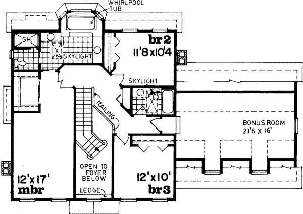
    Upper/Second Floor Plan: 35-380

House Plan Highlights

Timeless Style
Classic in its timeless style, this home offers shuttered windows and a covered porch on the outside and an up-to-date floor plan on the inside. The center foyer is brightened by a second-story window and opens to a tray ceiling in both the living room and dining room. The dining room also offers a window seat in a box window, while the living room features a fireplace. Across the foyer, a den provides a place for quiet study. Another fireplace warms the family room, which has sliding glass doors to the rear patio. The kitchen and breakfast bay include a built-in desk and a corner pantry. Upstairs, two family bedrooms share a skylit bath and balcony overlook to the foyer. The master bedroom has a walk-in closet and a private skylit bath. A bonus room offers an additional 356 square feet of unfinished space.

This floor plan is found in our Early American house plans section

Full Specs and Features

icon Total Living Area

  • Main floor: 1196
  • Upper floor: 1069
  • Bonus: 430
  • Total Finished Sq. Ft.: 2265

icon Beds/Baths

  • Bedrooms: 3
  • Full Baths: 2
  • Half Baths: 1

icon Garage

  • Garage: 528
  • Garage Stalls: 2

icon Levels

  • 2 stories

Dimension

  • Width: 57' 0"
  • Depth: 40' 0"
  • Height: 32' 0"

Roof slope

  • 8:12 (primary)
  • 12:12 (secondary)

Walls (exterior)

  • 2"x6"

Ceiling heights

  • 9' (Main)
    8' (Upper)

Foundation Options

  • Basement Standard With Plan
  • Walk-out basement $425
  • Crawlspace Standard With Plan
  • Slab $295

How Much Will It Cost To Build?

Wondering what it will actually cost to bring this home to life? Get an instant, customized estimate based on your chosen plan and location.

GET MY COST TO BUILD ESTIMATE

Modify This Plan

"Need Content here about modifying your plan"

Customize This Plan

House Plan Features

Suited for corner lots
Upstairs Master
Walk-in pantry Nook / breakfast Hearth room
Bonus room Family room Great room Main Floor laundry Open concept floor plan No formal living/dining Den / office / computer
Vaulted/Volume/Dramatic ceilings
Side-entry garage

Reviews

How Much Will It Cost To Build?

Wondering what it will actually cost to bring this home to life? Get an instant, customized estimate based on your chosen plan and location.

GET MY COST TO BUILD ESTIMATE

Modify This Plan

Need changes to the layout or features? Our team can modify any plan to match your vision.

Customize This Plan

House Plan Features

Suited for corner lots
Upstairs Master
Walk-in pantry Nook / breakfast Hearth room
Bonus room Family room Great room Main Floor laundry Open concept floor plan No formal living/dining Den / office / computer
Vaulted/Volume/Dramatic ceilings
Side-entry garage

Need Some Quick Tips Or Advice?

We want to help you design the house of your dreams as best as we can. If you can't find the answers you're looking for here, get in touch with our licensed architect or a designer!