Early American House Plan - 4 Bedrooms, 2 Bath, 2295 Sq Ft Plan 18-378

New plans now available on

dreambook-head-logo See all available plans

All plans are copyrighted by the individual designer.

Photographs may reflect custom changes that were not included in the original design.

4 Bedroom, 2 Bath Early American House Plan #18-378

Plan Purchase Options

Price: $0

Please uncheck first "Purchase MML without any plan package" under MONSTER MATERIAL LIST

Monster Material List
Optional Add-Ons
guaranted-label.png

Best Price Guarantee

*Payment Plans Now
Available Through

img See if you qualify

Floor Plans

What's included?
  • Main Floor

    Reverse

    Clicking the Reverse button does not mean you are ordering your plan reversed. It is for visualization purposes only. You may reverse the plan by ordering under “Optional Add-ons”.

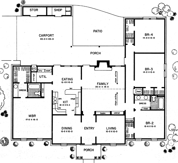
    Main Floor Plan: 18-378

House Plan Highlights

Full Specs and Features

icon Total Living Area

  • Main floor: 2295
  • Porches: 201
  • Total Finished Sq. Ft.: 2295

icon Beds/Baths

  • Bedrooms: 4
  • Full Baths: 2

icon Garage

  • Garage: 485
  • Garage Stalls: 2

icon Levels

  • 1 story

Dimension

  • Width: 62' 10"
  • Depth: 62' 5"

Roof slope

  • 7:12 (primary)
  • 6:12 (secondary)

Walls (exterior)

  • 2"x4"

Ceiling heights

  • 8' (Main)

Foundation Options

  • Crawlspace Standard With Plan
  • Slab Standard With Plan

How Much Will It Cost To Build?

"Need content here about cost to build est."

Buy My Cost To Build Estimate

Modify This Plan

"Need Content here about modifying your plan"

Customize This Plan

House Plan Features

Suited for corner lots
Split bedrooms Teen suite/Jack & Jill bath
Eating bar Nook / breakfast
Family room Formal dining room Formal living room
Covered rear porch
Vaulted/Volume/Dramatic ceilings
Carport

Reviews

How Much Will It Cost To Build?

Wondering what it’ll actually cost to bring your dream home to life? Get a clear, customized estimate based on your chosen plan and location.

Buy My Cost To Build Estimate

Modify This Plan

Need changes to the layout or features? Our team can modify any plan to match your vision.

Customize This Plan

House Plan Features

Suited for corner lots
Split bedrooms Teen suite/Jack & Jill bath
Eating bar Nook / breakfast
Family room Formal dining room Formal living room
Covered rear porch
Vaulted/Volume/Dramatic ceilings
Carport

Need Some Quick Tips Or Advice?

We want to help you design the house of your dreams as best as we can. If you can't find the answers you're looking for here, get in touch with our licensed architect or a designer!