Early American House Plans - 3 Bed, 2 Bath, 2324 Sq Ft | Plan 35-250 | Monster House Plans

New plans now available on

dreambook-head-logo See all available plans

All plans are copyrighted by the individual designer.

Photographs may reflect custom changes that were not included in the original design.

3 Bedroom, 2 Bath Early American House Plan #35-250

Plan Purchase Options

Price: $0

Please uncheck first "Purchase MML without any plan package" under MONSTER MATERIAL LIST

Monster Material List
Optional Add-Ons
guaranted-label.png

Best Price Guarantee

*Payment Plans Now
Available Through

img See if you qualify

Floor Plans

What's included?
  • Main Floor

    Reverse

    Clicking the Reverse button does not mean you are ordering your plan reversed. It is for visualization purposes only. You may reverse the plan by ordering under “Optional Add-ons”.

    Main Floor Plan: 35-250
  • Upper/Second Floor

    Reverse

    Clicking the Reverse button does not mean you are ordering your plan reversed. It is for visualization purposes only. You may reverse the plan by ordering under “Optional Add-ons”.

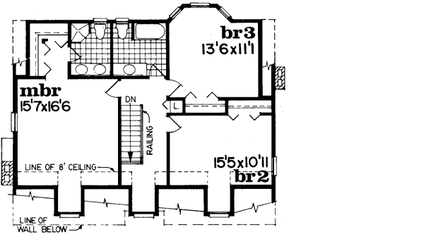
    Upper/Second Floor Plan: 35-250

House Plan Highlights

Cape Cod Styling
With overtones of Cape Cod styling, this lovely design presents dormer windows and shutters. The foyer opens to a spacious living room and dining room on the left and a den on the right. Because the den has an adjacent powder room, it might make a fine guest room. The fireplace warms both the living room and the family room, which features a bay window and backyard access. Between the two living spaces sits a U-shaped kitchen with abundant counter space. An open-railed stair leads to a gallery on the second floor. On the right, two family bedrooms share a full bath. On the left is the owners suite with a private bath and walk-in closet. Note the dormer in the two front bedrooms and the bay window in Bedroom 3.

This floor plan is found in our Early American house plans section

Full Specs and Features

icon Total Living Area

  • Main floor: 1260
  • Upper floor: 1064
  • Total Finished Sq. Ft.: 2324

icon Beds/Baths

  • Bedrooms: 3
  • Full Baths: 2
  • Half Baths: 1

icon Garage

  • Garage: 528
  • Garage Stalls: 2

icon Levels

  • 2 stories

Dimension

  • Width: 62' 0"
  • Depth: 33' 10"
  • Height: 31' 0"

Roof slope

  • 12:12 (primary)
  • 6:12 (secondary)

Walls (exterior)

  • 2"x6"

Ceiling heights

  • 9' (Main)
    8' (Upper)

Foundation Options

  • Basement Standard With Plan
  • Walk-out basement $425
  • Crawlspace $295
  • Slab $295

How Much Will It Cost To Build?

Wondering what it will actually cost to bring this home to life? Get an instant, customized estimate based on your chosen plan and location.

GET MY COST TO BUILD ESTIMATE

Modify This Plan

"Need Content here about modifying your plan"

Customize This Plan

House Plan Features

Upstairs Master
Family room Main Floor laundry Formal dining room Formal living room

Reviews

How Much Will It Cost To Build?

Wondering what it will actually cost to bring this home to life? Get an instant, customized estimate based on your chosen plan and location.

GET MY COST TO BUILD ESTIMATE

Modify This Plan

Need changes to the layout or features? Our team can modify any plan to match your vision.

Customize This Plan

House Plan Features

Upstairs Master
Family room Main Floor laundry Formal dining room Formal living room

Need Some Quick Tips Or Advice?

We want to help you design the house of your dreams as best as we can. If you can't find the answers you're looking for here, get in touch with our licensed architect or a designer!