English Country House Plans - 3 Bed, 2 Bath, 1747 Sq Ft | Plan 12-492 | Monster House Plans

New plans now available on

dreambook-head-logo See all available plans

All plans are copyrighted by the individual designer.

Photographs may reflect custom changes that were not included in the original design.

3 Bedroom, 2 Bath English Country House Plan #12-492

Plan Purchase Options

Price: $0

Please uncheck first "Purchase MML without any plan package" under MONSTER MATERIAL LIST

Monster Material List
Optional Add-Ons
guaranted-label.png

Best Price Guarantee

*Payment Plans Now
Available Through

img See if you qualify

Floor Plans

What's included?
  • Main Floor

    Reverse

    Clicking the Reverse button does not mean you are ordering your plan reversed. It is for visualization purposes only. You may reverse the plan by ordering under “Optional Add-ons”.

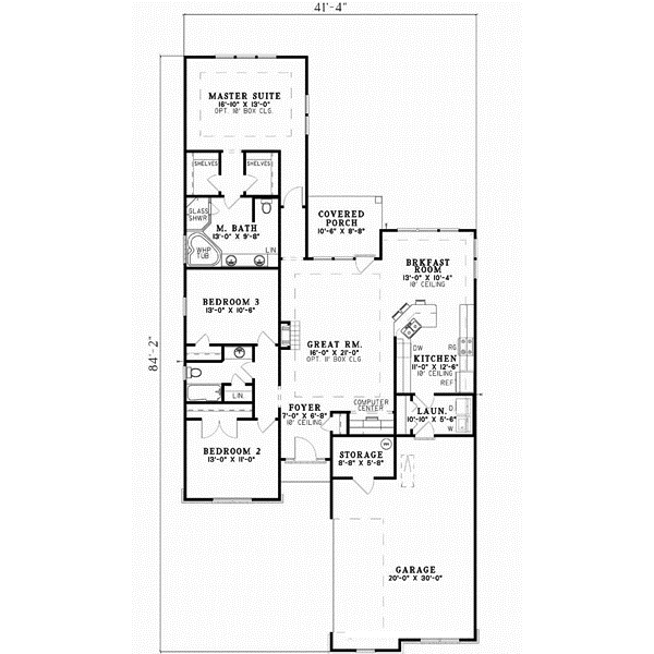
    Main Floor Plan: 12-492

House Plan Highlights

This crafty design combines a rustic exterior with an elegant interior. Ten-foot ceilings and an abundance of windows enhance the family areas for plenty of natural lighting. The Breakfast Room and Kitchen are combined and enjoy a bar counter for additional seating. A large laundry room with pantry is located between the kitchen and garage access for convenience. On the opposite side of the home are two bedrooms, a full bath and a luxurious Master Suite with 10? boxed ceiling, his and her walk in closets and large bathroom with glass shower, whirlpool tub and double vanity.

This floor plan is found in our English Country house plans section

Full Specs and Features

icon Total Living Area

  • Main floor: 1747
  • Porches: 111
  • Total Finished Sq. Ft.: 1747

icon Beds/Baths

  • Bedrooms: 3
  • Full Baths: 2

icon Garage

  • Garage: 649
  • Garage Stalls: 2

icon Levels

  • 1 story

Dimension

  • Width: 41' 4"
  • Depth: 84' 2"
  • Height: 23' 3"

Roof slope

  • 12:12 (primary)
  • 10:12 (secondary)

Walls (exterior)

  • 2"x4"

Ceiling heights

  • 9' (Main)

Foundation Options

  • Basement $299
  • Daylight basement $399
  • Crawlspace Standard With Plan
  • Slab Standard With Plan

How Much Will It Cost To Build?

Wondering what it will actually cost to bring this home to life? Get an instant, customized estimate based on your chosen plan and location.

GET MY COST TO BUILD ESTIMATE

Modify This Plan

"Need Content here about modifying your plan"

Customize This Plan

House Plan Features

Suited for corner lots Suited for a back view Suited for a narrow lot
Eating bar
Great room No formal living/dining
Covered rear porch
Vaulted/Volume/Dramatic ceilings
Side-entry garage

Reviews

How Much Will It Cost To Build?

Wondering what it will actually cost to bring this home to life? Get an instant, customized estimate based on your chosen plan and location.

GET MY COST TO BUILD ESTIMATE

Modify This Plan

Need changes to the layout or features? Our team can modify any plan to match your vision.

Customize This Plan

House Plan Features

Suited for corner lots Suited for a back view Suited for a narrow lot
Eating bar
Great room No formal living/dining
Covered rear porch
Vaulted/Volume/Dramatic ceilings
Side-entry garage

Need Some Quick Tips Or Advice?

We want to help you design the house of your dreams as best as we can. If you can't find the answers you're looking for here, get in touch with our licensed architect or a designer!