European House Plans - 3 Bed, 2 Bath, 1764 Sq Ft | Plan 12-392 | Monster House Plans

New plans now available on

dreambook-head-logo See all available plans
SHARE ON

All plans are copyrighted by the individual designer.

Photographs may reflect custom changes that were not included in the original design.

3 Bedroom, 2 Bath European House Plan #12-392

Plan Purchase Options

Price: $0

Please uncheck first "Purchase MML without any plan package" under MONSTER MATERIAL LIST

Monster Material List
Optional Add-Ons
guaranted-label.png

Best Price Guarantee

*Payment Plans Now
Available Through

img See if you qualify

Floor Plans

What's included?
  • Main Floor

    Reverse

    Clicking the Reverse button does not mean you are ordering your plan reversed. It is for visualization purposes only. You may reverse the plan by ordering under “Optional Add-ons”.

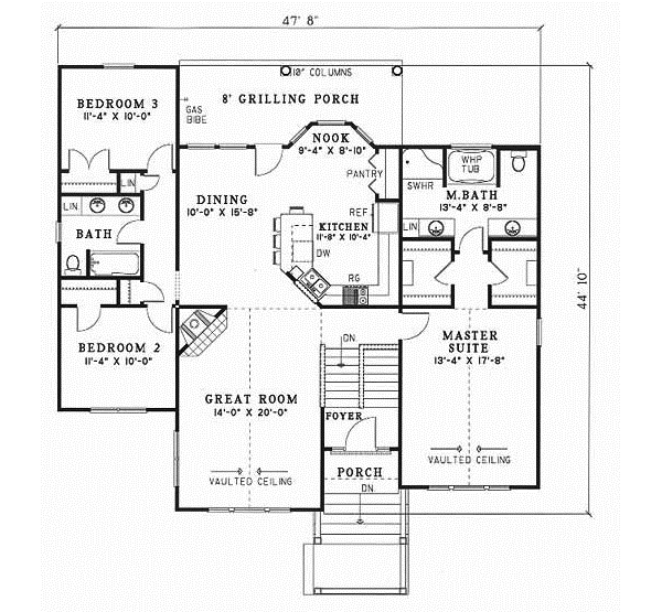
    Main Floor Plan: 12-392
  • Lower Floor

    Reverse

    Clicking the Reverse button does not mean you are ordering your plan reversed. It is for visualization purposes only. You may reverse the plan by ordering under “Optional Add-ons”.

    Lower Floor Plan: 12-392

House Plan Highlights

A life of leisure awaits you in this stylish, split bedroom home. A romantic corner fireplace and vaulted ceiling welcome you to an impressive great room. The U-shaped kitchen serves the nearby breakfast bay and dining room. A large grilling porch adorned with decorative columns is ideal for enjoying the outdoors while entertaining friends and family. A lavish master suite showcases a vaulted ceiling, his and her walk-in closets, separate sink vanities and a whirlpool tub. The bonus area downstairs offers plenty of options for future expansion.

This floor plan is found in our European house plans section

Full Specs and Features

icon Total Living Area

  • Main floor: 1661
  • Lower Floor: 103
  • Porches: 181
  • Total Finished Sq. Ft.: 1764

icon Beds/Baths

  • Bedrooms: 3
  • Full Baths: 2

icon Garage

  • Garage: 777
  • Garage Stalls: 2

icon Levels

  • split entry

Dimension

  • Width: 47' 8"
  • Depth: 44' 10"
  • Height: 32' 1"

Roof slope

  • 10:12 (primary)
  • 10:12 (secondary)

Walls (exterior)

  • 2"x4"

Ceiling heights

  • 9' (Main)

Foundation Options

  • Basement $299
  • Daylight basement $399
  • Crawlspace Standard With Plan
  • Slab Standard With Plan

How Much Will It Cost To Build?

Wondering what it will actually cost to bring this home to life? Get an instant, customized estimate based on your chosen plan and location.

GET MY COST TO BUILD ESTIMATE

Modify This Plan

"Need Content here about modifying your plan"

Customize This Plan

House Plan Features

Suited for a back view Suited for a side-sloping lot Suited for an up-sloping lot Suited for a narrow lot
Split bedrooms
Eating bar Nook / breakfast
Great room Open concept floor plan No formal living/dining Unfinished/future space
Covered rear porch Grilling porch/outdoor kitchen
Vaulted/Volume/Dramatic ceilings
Garage under

Reviews

How Much Will It Cost To Build?

Wondering what it will actually cost to bring this home to life? Get an instant, customized estimate based on your chosen plan and location.

GET MY COST TO BUILD ESTIMATE

Modify This Plan

Need changes to the layout or features? Our team can modify any plan to match your vision.

Customize This Plan

House Plan Features

Suited for a back view Suited for a side-sloping lot Suited for an up-sloping lot Suited for a narrow lot
Split bedrooms
Eating bar Nook / breakfast
Great room Open concept floor plan No formal living/dining Unfinished/future space
Covered rear porch Grilling porch/outdoor kitchen
Vaulted/Volume/Dramatic ceilings
Garage under

Need Some Quick Tips Or Advice?

We want to help you design the house of your dreams as best as we can. If you can't find the answers you're looking for here, get in touch with our licensed architect or a designer!