European House Plans - 4 Bed, 4 Bath, 3423 Sq Ft | Plan 63-550 | Monster House Plans

New plans now available on

dreambook-head-logo See all available plans
SHARE ON

All plans are copyrighted by the individual designer.

Photographs may reflect custom changes that were not included in the original design.

4 Bedroom, 4 Bath European House Plan #63-550

Plan Purchase Options

Price: $0

Please uncheck first "Purchase MML without any plan package" under MONSTER MATERIAL LIST

Monster Material List
Optional Add-Ons
guaranted-label.png

Best Price Guarantee

*Payment Plans Now
Available Through

img See if you qualify

Floor Plans

What's included?
  • Main Floor

    Reverse

    Clicking the Reverse button does not mean you are ordering your plan reversed. It is for visualization purposes only. You may reverse the plan by ordering under “Optional Add-ons”.

    Main Floor Plan: 63-550
  • Upper/Second Floor

    Reverse

    Clicking the Reverse button does not mean you are ordering your plan reversed. It is for visualization purposes only. You may reverse the plan by ordering under “Optional Add-ons”.

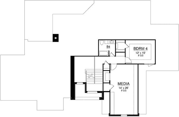
    Upper/Second Floor Plan: 63-550

House Plan Highlights

  • This four-bedroom luxury house plan has a lot to offer, including a perfect guest room or in-law suite on the first floor.
  • As you walk into this elegant home plan the foyer separates the master suite from the rest of the home.
  • A family bedroom with trey ceiling, full bath, and walk-in closet a and half bath sit in the hallway to the left of the foyer.
  • Beyond is the luxurious master suite with trey ceiling and a luxurious master bath, complete with his and hers vanities, separate shower and tub, and a large wardrobe with built-ins.
  • Access to the outdoor lounge from the master suite enhance the ability to enjoy the outdoors in your own quiet space.
  • Centrally located is the family room with trey ceiling, dramatic fireplace, and built-ins.
  • Double French doors lead to the covered patio outside, and a wall of windows help to bring the sunshine in.
  • A modern state-of-the-art kitchen boasts a built-in pantry, plenty of granite countertops, modern lighting, and a free-standing center island.
  • A large, curved breakfast bar seamlessly separates the kitchen from the cozy breakfast room and family room.
  • From the breakfast room you have access to a third bedroom with trey ceiling, walk-in closet, and full bath that is perfect for in-laws or as a guest suite.
  • A one-car, front entry garage that's close to this third bedroom connects with a two-car side-entry garage.
  • Upstairs, a fourth bedroom with walk-in closet and full bath shares space with a large media room.
  • You'll want to look at this luxury home plan and explore all it has to offer.

This floor plan is found in our European house plans section

Full Specs and Features

icon Total Living Area

  • Main floor: 2663
  • Upper floor: 7600
  • Porches: 496
  • Total Finished Sq. Ft.: 3423

icon Beds/Baths

  • Bedrooms: 4
  • Full Baths: 4

icon Garage

  • Garage: 918
  • Garage Stalls: 3

icon Levels

  • 2 stories

Dimension

  • Width: 91' 0"
  • Depth: 59' 0"
  • Height: 32' 0"

Ceiling heights

  • 9' (Main)
    8' (Upper)

Exterior Finish

  • Brick

Foundation Options

  • Slab Standard With Plan

How Much Will It Cost To Build?

Wondering what it will actually cost to bring this home to life? Get an instant, customized estimate based on your chosen plan and location.

GET MY COST TO BUILD ESTIMATE

Modify This Plan

"Need Content here about modifying your plan"

Customize This Plan

House Plan Features

Suited for corner lots Suited for a back view
Main floor Master
Island Walk-in pantry Eating bar Nook / breakfast
Family room Main Floor laundry Media room
Covered rear porch
Photos Available
Oversized garage (3+) Side-entry garage

Reviews

How Much Will It Cost To Build?

Wondering what it will actually cost to bring this home to life? Get an instant, customized estimate based on your chosen plan and location.

GET MY COST TO BUILD ESTIMATE

Modify This Plan

Need changes to the layout or features? Our team can modify any plan to match your vision.

Customize This Plan

House Plan Features

Suited for corner lots Suited for a back view
Main floor Master
Island Walk-in pantry Eating bar Nook / breakfast
Family room Main Floor laundry Media room
Covered rear porch
Photos Available
Oversized garage (3+) Side-entry garage

Need Some Quick Tips Or Advice?

We want to help you design the house of your dreams as best as we can. If you can't find the answers you're looking for here, get in touch with our licensed architect or a designer!