European House Plans - 4 Bed, 1 Bath, 3609 Sq Ft | Plan 7-808 | Monster House Plans

New plans now available on

dreambook-head-logo See all available plans
SHARE ON

All plans are copyrighted by the individual designer.

Photographs may reflect custom changes that were not included in the original design.

4 Bedroom, 1 Bath European House Plan #7-808

Plan Purchase Options

Price: $0

Please uncheck first "Purchase MML without any plan package" under MONSTER MATERIAL LIST

Monster Material List
Optional Add-Ons
guaranted-label.png

Best Price Guarantee

*Payment Plans Now
Available Through

img See if you qualify

Floor Plans

What's included?
  • Main Floor

    Reverse

    Clicking the Reverse button does not mean you are ordering your plan reversed. It is for visualization purposes only. You may reverse the plan by ordering under “Optional Add-ons”.

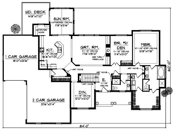
    Main Floor Plan: 7-808
  • Lower Floor

    Reverse

    Clicking the Reverse button does not mean you are ordering your plan reversed. It is for visualization purposes only. You may reverse the plan by ordering under “Optional Add-ons”.

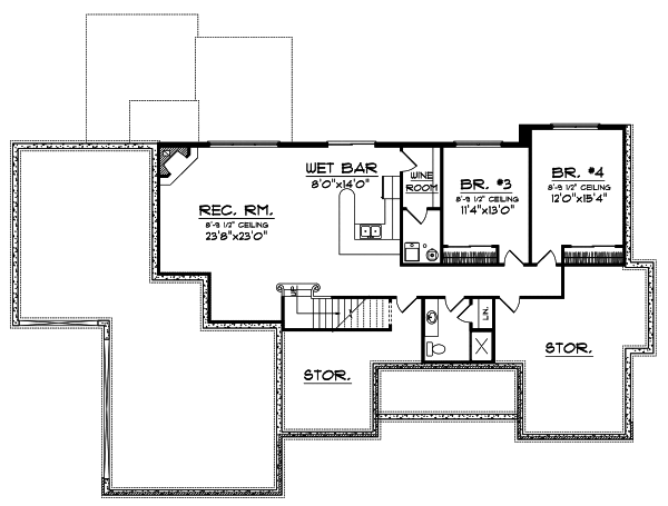
    Lower Floor Plan: 7-808

Rear/Alternate Elevations

  • Rear Elevation

    Reverse

    Clicking the Reverse button does not mean you are ordering your plan reversed. It is for visualization purposes only. You may reverse the plan by ordering under “Optional Add-ons”.

    Rear Elevation Plan: 7-808

House Plan Highlights

This sprawling beauty gets its charm from the European countryside. You'll love spending quiet evenings enjoying the spacious porch that's defined by graceful columns. Inside the impressive great room features a fireplace flanked by built-ins and an expansive wall of windows that offer an impressive view to the back yard. The kitchen pleases with its walk-in pantry and unique breakfast bar that offers a view of the fireplace in the great room. An adjacent sunroom is the perfect place to enjoy the morning paper. The bedroom wing is found on the right side of the home and features a master with step ceiling large walk-in closet dual sinks and easy access to the attached laundry room. A second bedroom is located next to the master. Other amenities include a formal dining room art niches and built-in computer nook. In the lower level you'll enjoy a spacious recreation room complete with wet bar two additional bedrooms and a three-quarter bathroom.

This floor plan is found in our European house plans section

Full Specs and Features

icon Total Living Area

  • Main floor: 2269
  • Lower Floor: 1340
  • Total Finished Sq. Ft.: 3609

icon Beds/Baths

  • Bedrooms: 4
  • Full Baths: 1
  • Half Baths: 2

icon Garage

  • Garage: 973
  • Garage Stalls: 3

icon Levels

  • 1 story

Dimension

  • Width: 84' 2"
  • Depth: 60' 0"
  • Height: 24' 1"

Roof slope

  • 8:12 (primary)
  • 8:12 (secondary)

Walls (exterior)

  • 2"x6"

Ceiling heights

  • 9' (Main)

Foundation Options

  • Daylight basement Standard With Plan
  • Crawlspace $415
  • Slab $415

How Much Will It Cost To Build?

Wondering what it will actually cost to bring this home to life? Get an instant, customized estimate based on your chosen plan and location.

GET MY COST TO BUILD ESTIMATE

Modify This Plan

"Need Content here about modifying your plan"

Customize This Plan

House Plan Features

Suited for a back view
Main floor Master Teen suite/Jack & Jill bath
Island Walk-in pantry Eating bar
Great room Main Floor laundry Open concept floor plan No formal living/dining Den / office / computer
Screened porch/sunroom
Vaulted/Volume/Dramatic ceilings
Side-entry garage

Reviews

How Much Will It Cost To Build?

Wondering what it will actually cost to bring this home to life? Get an instant, customized estimate based on your chosen plan and location.

GET MY COST TO BUILD ESTIMATE

Modify This Plan

Need changes to the layout or features? Our team can modify any plan to match your vision.

Customize This Plan

House Plan Features

Suited for a back view
Main floor Master Teen suite/Jack & Jill bath
Island Walk-in pantry Eating bar
Great room Main Floor laundry Open concept floor plan No formal living/dining Den / office / computer
Screened porch/sunroom
Vaulted/Volume/Dramatic ceilings
Side-entry garage

Need Some Quick Tips Or Advice?

We want to help you design the house of your dreams as best as we can. If you can't find the answers you're looking for here, get in touch with our licensed architect or a designer!