European House Plans - 4 Bed, 3 Bath, 3657 Sq Ft | Plan 77-196 | Monster House Plans

New plans now available on

dreambook-head-logo See all available plans
SHARE ON

All plans are copyrighted by the individual designer.

Photographs may reflect custom changes that were not included in the original design.

4 Bedroom, 3 Bath European House Plan #77-196

Plan Purchase Options

Price: $0

Please uncheck first "Purchase MML without any plan package" under MONSTER MATERIAL LIST

Monster Material List
Optional Add-Ons
guaranted-label.png

Best Price Guarantee

*Payment Plans Now
Available Through

img See if you qualify

Floor Plans

What's included?
  • Main Floor

    Reverse

    Clicking the Reverse button does not mean you are ordering your plan reversed. It is for visualization purposes only. You may reverse the plan by ordering under “Optional Add-ons”.

    Main Floor Plan: 77-196
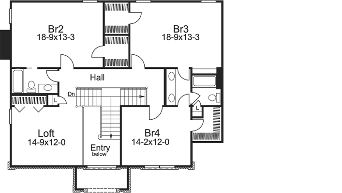
  • Upper/Second Floor

    Reverse

    Clicking the Reverse button does not mean you are ordering your plan reversed. It is for visualization purposes only. You may reverse the plan by ordering under “Optional Add-ons”.

    Upper/Second Floor Plan: 77-196

Rear/Alternate Elevations

  • Rear Elevation

    Reverse

    Clicking the Reverse button does not mean you are ordering your plan reversed. It is for visualization purposes only. You may reverse the plan by ordering under “Optional Add-ons”.

    Rear Elevation Plan: 77-196

House Plan Highlights

Stately Elegance3657 total square feet of living areaSpecial featuresA dramatic two-story front entry features a stylish niche a convenient powder room and French doors leading to the private parlorThe state-of-the-art kitchen includes a large walk-in pantry a breakfast island a computer center and a 40' vista looking through the family room that includes a walk-in wet barThe vaulted master bath features marble steps and Roman columns leading to a majestic-sized whirlpool tub surrounded by a marble deck and grand-scale Palladian windowThe second floor is comprised of a Jack and Jill bath hall bath loft area and huge bedrooms 4 bedrooms 3 12 baths 3-car side entry garage Basement foundation2202 square feet on the first floor and 1455 square feet on the second floor

This floor plan is found in our European house plans section

Full Specs and Features

icon Total Living Area

  • Main floor: 2202
  • Upper floor: 1455
  • Basement: 2172
  • Porches: 46
  • Total Finished Sq. Ft.: 3657

icon Beds/Baths

  • Bedrooms: 4
  • Full Baths: 3
  • Half Baths: 1

icon Garage

  • Garage: 658
  • Garage Stalls: 1

icon Levels

  • 2 stories

Dimension

  • Width: 61' 0"
  • Depth: 73' 0"
  • Height: 33' 0"

Roof slope

  • 9:12 (primary)
  • 12:12 (secondary)

Walls (exterior)

  • 2"x4"

Ceiling heights

  • 8' (Main)
    8' (Upper)

Foundation Options

  • Basement Standard With Plan

How Much Will It Cost To Build?

Wondering what it will actually cost to bring this home to life? Get an instant, customized estimate based on your chosen plan and location.

GET MY COST TO BUILD ESTIMATE

Modify This Plan

"Need Content here about modifying your plan"

Customize This Plan

House Plan Features

Suited for corner lots Suited for a back view
Main floor Master Teen suite/Jack & Jill bath
Island Walk-in pantry Eating bar Nook / breakfast
Family room Main Floor laundry Loft / balcony Open concept floor plan Formal dining room Den / office / computer
Oversized garage (3+) Side-entry garage

Reviews

How Much Will It Cost To Build?

Wondering what it will actually cost to bring this home to life? Get an instant, customized estimate based on your chosen plan and location.

GET MY COST TO BUILD ESTIMATE

Modify This Plan

Need changes to the layout or features? Our team can modify any plan to match your vision.

Customize This Plan

House Plan Features

Suited for corner lots Suited for a back view
Main floor Master Teen suite/Jack & Jill bath
Island Walk-in pantry Eating bar Nook / breakfast
Family room Main Floor laundry Loft / balcony Open concept floor plan Formal dining room Den / office / computer
Oversized garage (3+) Side-entry garage

Need Some Quick Tips Or Advice?

We want to help you design the house of your dreams as best as we can. If you can't find the answers you're looking for here, get in touch with our licensed architect or a designer!