European House Plans - 4 Bed, 3 Bath, 4163 Sq Ft | Plan 7-1106 | Monster House Plans

New plans now available on

dreambook-head-logo See all available plans
SHARE ON

All plans are copyrighted by the individual designer.

Photographs may reflect custom changes that were not included in the original design.

Design Comments

Entry/Great Rm ceilings - 2-Story

4 Bedroom, 3 Bath European House Plan #7-1106

Plan Purchase Options

Price: $0

Please uncheck first "Purchase MML without any plan package" under MONSTER MATERIAL LIST

Monster Material List
Optional Add-Ons
guaranted-label.png

Best Price Guarantee

*Payment Plans Now
Available Through

img See if you qualify

Floor Plans

What's included?
  • Main Floor

    Reverse

    Clicking the Reverse button does not mean you are ordering your plan reversed. It is for visualization purposes only. You may reverse the plan by ordering under “Optional Add-ons”.

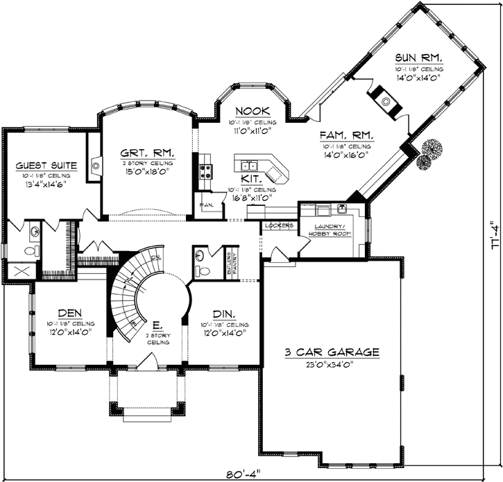
    Main Floor Plan: 7-1106
  • Upper/Second Floor

    Reverse

    Clicking the Reverse button does not mean you are ordering your plan reversed. It is for visualization purposes only. You may reverse the plan by ordering under “Optional Add-ons”.

    Upper/Second Floor Plan: 7-1106

Rear/Alternate Elevations

  • Rear Elevation

    Reverse

    Clicking the Reverse button does not mean you are ordering your plan reversed. It is for visualization purposes only. You may reverse the plan by ordering under “Optional Add-ons”.

    Rear Elevation Plan: 7-1106

House Plan Highlights

A dramatic spiral staircase creates a grand entry with plenty of room for greeting guests. To the right of the entry lies a formal dining room while a den is found to your left. The Two-story round wall of windows in the great room continues the dramatic statement of this home. A large chef's kitchen to the left includes a breakfast bar that overlooks an angled familysunroom combo as well as a walk-in pantry and easy access to the dining room. A main floor guest suite is found on the left side of the home in the back and includes a private bath and walk-in closet. Mom won't be disappointed with the second floor master suite with spacious bathroom that includes a Jacuzzi tub and doors to a front balcony and large walk-in closet. Two additional bedrooms that enjoy a Jack and Jill bath complete the second floor. A side load garage is found to the right of the home.

This floor plan is found in our European house plans section

Full Specs and Features

icon Total Living Area

  • Main floor: 2599
  • Upper floor: 1564
  • Porches: 92
  • Total Finished Sq. Ft.: 4163

icon Beds/Baths

  • Bedrooms: 4
  • Full Baths: 3
  • Half Baths: 1

icon Garage

  • Garage: 792
  • Garage Stalls: 3

icon Levels

  • 2 stories

Dimension

  • Width: 80' 4"
  • Depth: 77' 4"
  • Height: 35' 6"

Roof slope

  • 12:12 (primary)
  • 9:12 (secondary)

Walls (exterior)

  • 2"x6"

Ceiling heights

  • 10' (Main)
    8' (Upper)

Foundation Options

  • Basement Standard With Plan
  • Crawlspace $415
  • Slab $415

How Much Will It Cost To Build?

Wondering what it will actually cost to bring this home to life? Get an instant, customized estimate based on your chosen plan and location.

GET MY COST TO BUILD ESTIMATE

Modify This Plan

"Need Content here about modifying your plan"

Customize This Plan

House Plan Features

Suited for a back view
Main floor Master Teen suite/Jack & Jill bath
Island Walk-in pantry Eating bar Nook / breakfast Hearth room
Great room Formal dining room
Covered rear porch
Circular / dual staircases Vaulted/Volume/Dramatic ceilings
Oversized garage (3+) Side-entry garage

Reviews

How Much Will It Cost To Build?

Wondering what it will actually cost to bring this home to life? Get an instant, customized estimate based on your chosen plan and location.

GET MY COST TO BUILD ESTIMATE

Modify This Plan

Need changes to the layout or features? Our team can modify any plan to match your vision.

Customize This Plan

House Plan Features

Suited for a back view
Main floor Master Teen suite/Jack & Jill bath
Island Walk-in pantry Eating bar Nook / breakfast Hearth room
Great room Formal dining room
Covered rear porch
Circular / dual staircases Vaulted/Volume/Dramatic ceilings
Oversized garage (3+) Side-entry garage

Need Some Quick Tips Or Advice?

We want to help you design the house of your dreams as best as we can. If you can't find the answers you're looking for here, get in touch with our licensed architect or a designer!