European House Plans - 3 Bed, 3 Bath, 4532 Sq Ft | Plan 12-176 | Monster House Plans

New plans now available on

dreambook-head-logo See all available plans
SHARE ON

All plans are copyrighted by the individual designer.

Photographs may reflect custom changes that were not included in the original design.

3 Bedroom, 3 Bath European House Plan #12-176

Plan Purchase Options

Price: $0

Please uncheck first "Purchase MML without any plan package" under MONSTER MATERIAL LIST

Monster Material List
Optional Add-Ons
guaranted-label.png

Best Price Guarantee

*Payment Plans Now
Available Through

img See if you qualify

Floor Plans

What's included?
  • Main Floor

    Reverse

    Clicking the Reverse button does not mean you are ordering your plan reversed. It is for visualization purposes only. You may reverse the plan by ordering under “Optional Add-ons”.

    Main Floor Plan: 12-176
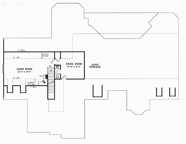
  • Upper/Second Floor

    Reverse

    Clicking the Reverse button does not mean you are ordering your plan reversed. It is for visualization purposes only. You may reverse the plan by ordering under “Optional Add-ons”.

    Upper/Second Floor Plan: 12-176

Rear/Alternate Elevations

  • Rear Elevation

    Reverse

    Clicking the Reverse button does not mean you are ordering your plan reversed. It is for visualization purposes only. You may reverse the plan by ordering under “Optional Add-ons”.

    Rear Elevation Plan: 12-176

House Plan Highlights

Enter through the brick arched entry of this home to find an elegant design where entertaining family and friends is fun and easy. Enjoy the coziness of the hearth room when family visits for the holiday. After the party ends, you'll find comfort in the privacy on your secluded master suite with a sitting area or relax in your soothing whirlpool bath. Beautiful French doors welcome you to the lanai where mornings and afternoons are best enjoyed. Upstairs, you can start each day by exercising or end the day by entertaining in the game room.

This floor plan is found in our European house plans section

Full Specs and Features

icon Total Living Area

  • Main floor: 3732
  • Upper floor: 800
  • Porches: 636
  • Total Finished Sq. Ft.: 4532

icon Beds/Baths

  • Bedrooms: 3
  • Full Baths: 3
  • Half Baths: 1

icon Garage

  • Garage: 810
  • Garage Stalls: 3

icon Levels

  • 2 stories

Dimension

  • Width: 96' 10"
  • Depth: 75' 10"

Roof slope

  • 10:12 (primary)

Walls (exterior)

  • 2"x4"

Ceiling heights

  • 10' (Main)
    8' (Upper)

Foundation Options

  • Basement $299
  • Daylight basement $399
  • Crawlspace Standard With Plan
  • Slab Standard With Plan

How Much Will It Cost To Build?

Wondering what it will actually cost to bring this home to life? Get an instant, customized estimate based on your chosen plan and location.

GET MY COST TO BUILD ESTIMATE

Modify This Plan

"Need Content here about modifying your plan"

Customize This Plan

House Plan Features

Suited for corner lots Suited for a back view
Main floor Master Split bedrooms Master sitting area/Nursery
Island Walk-in pantry Eating bar Nook / breakfast Hearth room
Family room Hobby / rec-room Gym / exercise room Main Floor laundry Den / office / computer
Covered rear porch
Vaulted/Volume/Dramatic ceilings
Oversized garage (3+) Side-entry garage

Reviews

How Much Will It Cost To Build?

Wondering what it will actually cost to bring this home to life? Get an instant, customized estimate based on your chosen plan and location.

GET MY COST TO BUILD ESTIMATE

Modify This Plan

Need changes to the layout or features? Our team can modify any plan to match your vision.

Customize This Plan

House Plan Features

Suited for corner lots Suited for a back view
Main floor Master Split bedrooms Master sitting area/Nursery
Island Walk-in pantry Eating bar Nook / breakfast Hearth room
Family room Hobby / rec-room Gym / exercise room Main Floor laundry Den / office / computer
Covered rear porch
Vaulted/Volume/Dramatic ceilings
Oversized garage (3+) Side-entry garage

Need Some Quick Tips Or Advice?

We want to help you design the house of your dreams as best as we can. If you can't find the answers you're looking for here, get in touch with our licensed architect or a designer!