European House Plans - 5 Bed, 3 Bath, 4555 Sq Ft | Plan 7-546 | Monster House Plans

New plans now available on

dreambook-head-logo See all available plans
SHARE ON

All plans are copyrighted by the individual designer.

Photographs may reflect custom changes that were not included in the original design.

5 Bedroom, 3 Bath European House Plan #7-546

Plan Purchase Options

Price: $0

Please uncheck first "Purchase MML without any plan package" under MONSTER MATERIAL LIST

Monster Material List
Optional Add-Ons
guaranted-label.png

Best Price Guarantee

*Payment Plans Now
Available Through

img See if you qualify

Floor Plans

What's included?
  • Main Floor

    Reverse

    Clicking the Reverse button does not mean you are ordering your plan reversed. It is for visualization purposes only. You may reverse the plan by ordering under “Optional Add-ons”.

    Main Floor Plan: 7-546
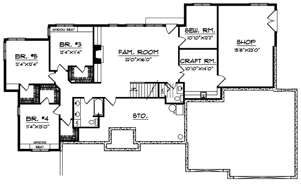
  • Lower Floor

    Reverse

    Clicking the Reverse button does not mean you are ordering your plan reversed. It is for visualization purposes only. You may reverse the plan by ordering under “Optional Add-ons”.

    Lower Floor Plan: 7-546

Rear/Alternate Elevations

  • Rear Elevation

    Reverse

    Clicking the Reverse button does not mean you are ordering your plan reversed. It is for visualization purposes only. You may reverse the plan by ordering under “Optional Add-ons”.

    Rear Elevation Plan: 7-546

House Plan Highlights

This beautiful stucco home combines traditional elements to create a pleasing exterior. Enter under an arched pediment to a formal foyer where columns and arches define the area and introduce the living room and dining at either side. The family room shares a two-sided fireplace with the study and is open to the gourmet island kitchen and the rear sunroom is inviting year-round. A private bath and large walk-in closet complete a generous bedroom in the master suite. Another bedroom on this level is an ideal guestroom as it is on the opposite side of the home from the master suite. The lower level holds three bedrooms an expansive second family room sewing and craft rooms a shop and extra storage.

This floor plan is found in our European house plans section

Full Specs and Features

icon Total Living Area

  • Main floor: 2585
  • Lower Floor: 1970
  • Total Finished Sq. Ft.: 4555

icon Beds/Baths

  • Bedrooms: 5
  • Full Baths: 3
  • Half Baths: 2

icon Garage

  • Garage: 783
  • Garage Stalls: 3

icon Levels

  • 1 story

Dimension

  • Width: 84' 0"
  • Depth: 58' 0"
  • Height: 23' 7"

Roof slope

  • 8:12 (primary)

Walls (exterior)

  • 2"x6"

Ceiling heights

  • 9' (Main)

Foundation Options

  • Daylight basement Standard With Plan
  • Crawlspace $415
  • Slab $415

How Much Will It Cost To Build?

Wondering what it will actually cost to bring this home to life? Get an instant, customized estimate based on your chosen plan and location.

GET MY COST TO BUILD ESTIMATE

Modify This Plan

"Need Content here about modifying your plan"

Customize This Plan

House Plan Features

Suited for corner lots Suited for a back view
Upstairs Master Teen suite/Jack & Jill bath
Island Walk-in pantry Butler's pantry Eating bar Nook / breakfast
Great room Main Floor laundry Open concept floor plan Mud room Formal dining room Den / office / computer
Oversized garage (3+) Side-entry garage

Reviews

How Much Will It Cost To Build?

Wondering what it will actually cost to bring this home to life? Get an instant, customized estimate based on your chosen plan and location.

GET MY COST TO BUILD ESTIMATE

Modify This Plan

Need changes to the layout or features? Our team can modify any plan to match your vision.

Customize This Plan

House Plan Features

Suited for corner lots Suited for a back view
Upstairs Master Teen suite/Jack & Jill bath
Island Walk-in pantry Butler's pantry Eating bar Nook / breakfast
Great room Main Floor laundry Open concept floor plan Mud room Formal dining room Den / office / computer
Oversized garage (3+) Side-entry garage

Need Some Quick Tips Or Advice?

We want to help you design the house of your dreams as best as we can. If you can't find the answers you're looking for here, get in touch with our licensed architect or a designer!