European House Plans - 4 Bed, 3 Bath, 6360 Sq Ft | Plan 7-756 | Monster House Plans

New plans now available on

dreambook-head-logo See all available plans
SHARE ON

All plans are copyrighted by the individual designer.

Photographs may reflect custom changes that were not included in the original design.

4 Bedroom, 3 Bath European House Plan #7-756

Plan Purchase Options

Price: $0

Please uncheck first "Purchase MML without any plan package" under MONSTER MATERIAL LIST

Monster Material List
Optional Add-Ons
guaranted-label.png

Best Price Guarantee

*Payment Plans Now
Available Through

img See if you qualify

Floor Plans

What's included?
  • Main Floor

    Reverse

    Clicking the Reverse button does not mean you are ordering your plan reversed. It is for visualization purposes only. You may reverse the plan by ordering under “Optional Add-ons”.

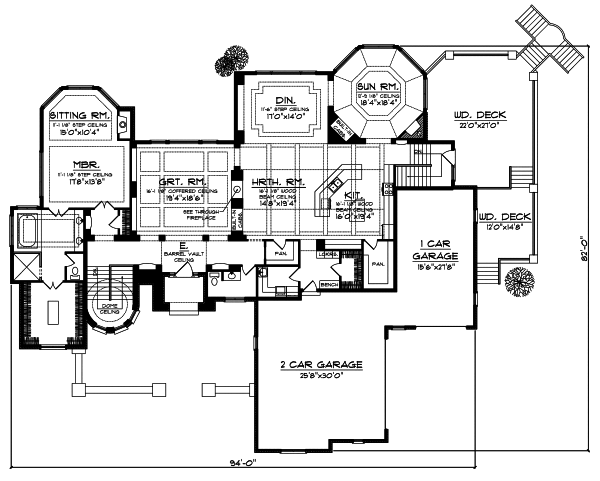
    Main Floor Plan: 7-756
  • Lower Floor

    Reverse

    Clicking the Reverse button does not mean you are ordering your plan reversed. It is for visualization purposes only. You may reverse the plan by ordering under “Optional Add-ons”.

    Lower Floor Plan: 7-756

Rear/Alternate Elevations

  • Rear Elevation

    Reverse

    Clicking the Reverse button does not mean you are ordering your plan reversed. It is for visualization purposes only. You may reverse the plan by ordering under “Optional Add-ons”.

    Rear Elevation Plan: 7-756

House Plan Highlights

This ranch design was crafted to appear as though it has weathered many centuries. From the stone exterior to the intricate ceiling designs buyers are sure to fall in love with this charming ranch design. As you enter you'll love the view through two-story window out the back of the home through the large great room. The kitchen hearth room and dining room flow together to create a comfortable living area while the adjacent octagonal sunroom provides the perfect early morning retreat. The master suite features a separate sitting area compete with fireplace and an extra-large walk-in closet. The entire lower level is finished to include three additional bedrooms a family room a wet bar a recreation room a craft room as well as additional storage.Important Note This home may NOT be built within a 100 mile radius of Des Moines Iowa.

This floor plan is found in our European house plans section

Full Specs and Features

icon Total Living Area

  • Main floor: 3394
  • Lower Floor: 2966
  • Total Finished Sq. Ft.: 6360

icon Beds/Baths

  • Bedrooms: 4
  • Full Baths: 3
  • Half Baths: 2

icon Garage

  • Garage: 1276
  • Garage Stalls: 3

icon Levels

  • 1 story

Dimension

  • Width: 94' 0"
  • Depth: 82' 0"
  • Height: 30' 0"

Roof slope

  • 12:12 (primary)
  • 12:12 (secondary)

Walls (exterior)

  • 2"x6"

Ceiling heights

  • 10' (Main)

Foundation Options

  • Daylight basement Standard With Plan
  • Crawlspace $415
  • Slab $415

How Much Will It Cost To Build?

Wondering what it will actually cost to bring this home to life? Get an instant, customized estimate based on your chosen plan and location.

GET MY COST TO BUILD ESTIMATE

Modify This Plan

"Need Content here about modifying your plan"

Customize This Plan

House Plan Features

Suited for a down-sloping lot Zero lot-line
Island Walk-in pantry Eating bar
Family room Hobby / rec-room Great room Open concept floor plan No formal living/dining Den / office / computer
Covered rear porch
Vaulted/Volume/Dramatic ceilings Photos Available
Side-entry garage

Reviews

How Much Will It Cost To Build?

Wondering what it will actually cost to bring this home to life? Get an instant, customized estimate based on your chosen plan and location.

GET MY COST TO BUILD ESTIMATE

Modify This Plan

Need changes to the layout or features? Our team can modify any plan to match your vision.

Customize This Plan

House Plan Features

Suited for a down-sloping lot Zero lot-line
Island Walk-in pantry Eating bar
Family room Hobby / rec-room Great room Open concept floor plan No formal living/dining Den / office / computer
Covered rear porch
Vaulted/Volume/Dramatic ceilings Photos Available
Side-entry garage

Need Some Quick Tips Or Advice?

We want to help you design the house of your dreams as best as we can. If you can't find the answers you're looking for here, get in touch with our licensed architect or a designer!