European House Plans - 4 Bed, 4 Bath, 6388 Sq Ft | Plan 12-524 | Monster House Plans

New plans now available on

dreambook-head-logo See all available plans
SHARE ON

All plans are copyrighted by the individual designer.

Photographs may reflect custom changes that were not included in the original design.

4 Bedroom, 4 Bath European House Plan #12-524

Plan Purchase Options

Price: $0

Please uncheck first "Purchase MML without any plan package" under MONSTER MATERIAL LIST

Monster Material List
Optional Add-Ons
guaranted-label.png

Best Price Guarantee

*Payment Plans Now
Available Through

img See if you qualify

Floor Plans

What's included?
  • Main Floor

    Reverse

    Clicking the Reverse button does not mean you are ordering your plan reversed. It is for visualization purposes only. You may reverse the plan by ordering under “Optional Add-ons”.

    Main Floor Plan: 12-524
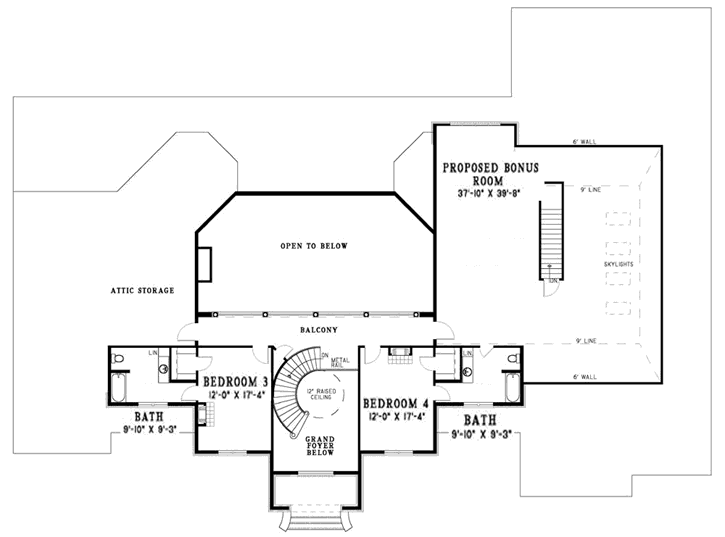
  • Upper/Second Floor

    Reverse

    Clicking the Reverse button does not mean you are ordering your plan reversed. It is for visualization purposes only. You may reverse the plan by ordering under “Optional Add-ons”.

    Upper/Second Floor Plan: 12-524

Rear/Alternate Elevations

  • Rear Elevation

    Reverse

    Clicking the Reverse button does not mean you are ordering your plan reversed. It is for visualization purposes only. You may reverse the plan by ordering under “Optional Add-ons”.

    Rear Elevation Plan: 12-524

House Plan Highlights

This absolutely exquisite design is a dream home come true. A Grand Foyer separates a formal Living Room and Dining Room and has stairs leading to a balcony over looking the enormous great room. The main Master Suite has a large sitting bay, private access to the Study and French door entry to a luxurious Master Bath. Upstairs, placed above the four-car garage, is a large Bonus room with skylights and an additional stairwell to the main floor Hearth Room. The expansive Kitchen adjoins both Breakfast Nook and Hearth room and is located near the second Master Suite for an abundance of options. Fireplaces are placed throughout for warmth while a rear column-lined Lanai is perfect for entertaining as well as pure relaxation.

This floor plan is found in our European house plans section

Full Specs and Features

icon Total Living Area

  • Main floor: 5338
  • Upper floor: 1050
  • Bonus: 1460
  • Porches: 1050
  • Total Finished Sq. Ft.: 6388

icon Beds/Baths

  • Bedrooms: 4
  • Full Baths: 4
  • Half Baths: 2

icon Garage

  • Garage: 1403
  • Garage Stalls: 4

icon Levels

  • 2 stories

Dimension

  • Width: 117' 8"
  • Depth: 84' 8"
  • Height: 36' 4"

Roof slope

  • 10:12 (primary)

Walls (exterior)

  • 2"x4"

Ceiling heights

  • 10' (Main)
    9' (Upper)

Foundation Options

  • Basement $299
  • Daylight basement $399
  • Crawlspace Standard With Plan
  • Slab Standard With Plan

How Much Will It Cost To Build?

Wondering what it will actually cost to bring this home to life? Get an instant, customized estimate based on your chosen plan and location.

GET MY COST TO BUILD ESTIMATE

Modify This Plan

"Need Content here about modifying your plan"

Customize This Plan

House Plan Features

Suited for corner lots Suited for a back view
Main floor Master 2 Master Suites Guest suite Master sitting area/Nursery Teen suite/Jack & Jill bath
Island Walk-in pantry Nook / breakfast Hearth room
Bonus room Great room Gym / exercise room Main Floor laundry Formal dining room Formal living room Den / office / computer Unfinished/future space
Covered rear porch
Grand Entry Circular / dual staircases Vaulted/Volume/Dramatic ceilings
Oversized garage (3+) Side-entry garage

Reviews

How Much Will It Cost To Build?

Wondering what it will actually cost to bring this home to life? Get an instant, customized estimate based on your chosen plan and location.

GET MY COST TO BUILD ESTIMATE

Modify This Plan

Need changes to the layout or features? Our team can modify any plan to match your vision.

Customize This Plan

House Plan Features

Suited for corner lots Suited for a back view
Main floor Master 2 Master Suites Guest suite Master sitting area/Nursery Teen suite/Jack & Jill bath
Island Walk-in pantry Nook / breakfast Hearth room
Bonus room Great room Gym / exercise room Main Floor laundry Formal dining room Formal living room Den / office / computer Unfinished/future space
Covered rear porch
Grand Entry Circular / dual staircases Vaulted/Volume/Dramatic ceilings
Oversized garage (3+) Side-entry garage

Need Some Quick Tips Or Advice?

We want to help you design the house of your dreams as best as we can. If you can't find the answers you're looking for here, get in touch with our licensed architect or a designer!